Seven Pearl

Eladó téglalakás
Sárvár

+ 3 kép 1/6
75 500 000 Ft75.5 M Ft 1 110 294 Ft/m2
2 szoba
68 m2
építés éve:2027

Részletes adatok

Telekméret: 720 m2
Fűtés: Egyéb
Energetikai besorolás: Nem adta meg a hirdető

Az OTP Bank lakáshitel ajánlataFizetett hirdetés

+36 30 849
Sámson Alexandra
InterNest Realty Partners

Érdekel az OTP Bank kedvezményes lakáshitel ajánlata? *

* A kérdésre „Igen” válasz bejelölése esetén, az „Üzenet küldése” gombra kattintva kijelentem, hogy az OTP Bank Nyrt. Adatkezelési tájékoztatójának tartalmát megismertem és tudomásul vettem.

Eladó téglalakás leírása

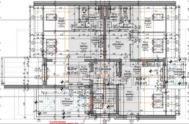
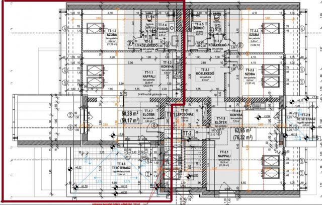
Megvételre kínálunk Sárvár belvárosában épülő 10 lakásos társasházban egy nettó 50 nm alapterületű tetőtéri lakást 18 nm-es tetőterasszal.

A lakást befektetők figyelmébe is ajánljuk: hosszú, illetve rövidtávú kiadásában teljes körű támogatást nyújtunk.

Rövid műszaki adatok:
Falazata Porotherm téglából, tetőszerkezete fa, ácsolt kivitelben, tetőhéjalása hornyolt tetőcseréppel történik.
Nyílászárók: Műanyag tokszerkezet, 3 rétegű hőszigetelő üveggel ellátva
Hőellátás; fűtése: Kondenzációs gázkazán
Melegvíz ellátás: gázüzemű vízmelegítő
Klíma: lakásonként 1 db beépített hűtő-fűtő klíma kerül elhelyezésre
Elrendezés: 1 szoba + amerikai konyhás nappali, fürdő és WC külön helyiségben

A lakásokhoz parkolóhely kötelezően vásárolandó, ennek ára 2,2 millió forint.

Várható átadás: 2027. II. negyedév

Egyéb információkért, műszaki tartalomért hívjon bizalommal.
A társasházban további elérhető ingatlanokról kérjen bővebb tájékoztatást kollégánktól.

Bankfüggetlen pénzügyi szakértő kollégánk minden ügyfelünk részére díjmentes hitel- és támogatásügyintézéssel is rendelkezésre áll.

Igény esetén kollégánk bank-semleges piacvezető hitelekkel, díjmentesen áll az Ön rendelkezésére.

Hirdetés feltöltve: 2025. 11. 09. Utoljára módosítva: 2025. 11. 09.

2 szobás téglalakások ára Sárváron

Ebből az összehasonlításból megtudhatod, hogyan viszonyul a lakás ára a környékbeli téglalakások átlagos árához. Ez nem azt jelenti, hogy ennyivel olcsóbb vagy drágább, mint amennyit a lakás ér, hanem hogy ennyivel tér el a környékbeli átlagtól.

Ennek a m² ára
Sárvár m² ár
1110 e Ft
923 e Ft -20%
Ennek az ára
Sárvár átlagár
75.5 M Ft m Ft
47.6 m Ft -59%

Az ingatlan elhelyezkedése

Cím: Sárvár

Eladó téglalakások a környékről

Eladó téglalakás
Eladó téglalakás

Celldömölk

32.9 M Ft
4 szoba
155 m2
Eladó téglalakás
Eladó téglalakás

Sárvár

44.39 M Ft
1 szoba
38 m2
Eladó téglalakás
Eladó téglalakás

Sárvár

38 M Ft
5 szoba
116 m2
Eladó téglalakás
Eladó téglalakás

Szombathely

71.99 M Ft
120 m2
Eladó téglalakás
Eladó téglalakás

Kőszeg

59.9 M Ft
3 szoba
90 m2
Eladó téglalakás
Eladó téglalakás

Répcelak, Petőfi Sándor utca

37.99 M Ft
3 szoba
78 m2
Eladó téglalakás
Eladó téglalakás

Szombathely

86.73 M Ft
4 szoba
96 m2
Eladó téglalakás
Eladó téglalakás

Sárvár

55.545 M Ft
1 szoba
48 m2
Eladó téglalakás
Eladó téglalakás

Sárvár

50 M Ft
1 + 1 szoba
38 m2
Eladó téglalakás
Eladó téglalakás

Szombathely

38.6 M Ft
43 m2
Eladó téglalakás
Eladó téglalakás

Sitke

13 M Ft
1 szoba
32 m2
Eladó téglalakás
Eladó téglalakás

Sárvár

31.9 M Ft
1 szoba
31 m2
Eladó téglalakás
Eladó téglalakás

Körmend

45 M Ft
5 szoba
96 m2
Eladó téglalakás
Eladó téglalakás

Sárvár

35.9 M Ft
2 szoba
47 m2
Eladó téglalakás
Eladó téglalakás

Kőszeg

46 M Ft
4 szoba
142 m2
Eladó téglalakás
Eladó téglalakás

Sárvár

12.5 M Ft
1 szoba
50 m2
Eladó téglalakás
Eladó téglalakás

Sárvár

45.9 M Ft
2 szoba
48 m2
Eladó téglalakás
Eladó téglalakás

Körmend, Bástya utca

12 M Ft
2 szoba
70 m2
Eladó téglalakás
Eladó téglalakás

Sárvár

56.041 M Ft
3 szoba
53 m2
Eladó téglalakás
Eladó téglalakás

Sárvár

14.9 M Ft
1 szoba
30 m2
Eladó téglalakás
Eladó téglalakás

Szombathely

69 M Ft
4 szoba
112 m2
Eladó téglalakás
Eladó téglalakás

Répcelak, Petőfi Sándor utca

35.7 M Ft
2 szoba
54 m2
Eladó téglalakás
Eladó téglalakás

Répcelak, Petőfi Sándor utca

46.2 M Ft
4 szoba
65 m2
Eladó téglalakás
Eladó téglalakás

Sárvár

53.36 M Ft
1 szoba
46 m2

Falusi CSOK ingatlanok

Eladó családi ház
Eladó családi ház

Vácszentlászló

46 M Ft
41 + 1 szoba
100 m2
Eladó családi ház
Eladó családi ház

Kadarkút

22.9 M Ft
3 szoba
80 m2
Eladó családi ház
Eladó családi ház

Kisköre

35 M Ft
4 szoba
123 m2
Eladó családi ház
Eladó családi ház

Onga

65 M Ft
5 szoba
168 m2
Eladó családi ház
Eladó családi ház

Bogács

79.5 M Ft
6 szoba
180 m2
Eladó családi ház
Eladó családi ház

Csemő

79.8 M Ft
2 szoba
88 m2
Eladó családi ház
Eladó családi ház

Orgovány, Mátyás király utca

16 M Ft
2 szoba
60 m2
Eladó családi ház
Eladó családi ház

Vitnyéd, Petőfi Sándor utca 3

16.71 M Ft
1 + 1 szoba
99 m2