Astora Márvány8

Eladó téglalakás
Sajószentpéter, földszint

+ 16 kép 1/19
20 900 000 Ft20.9 M Ft 387 037 Ft/m2
2 + 1 szoba
54 m2
földszint
építés éve:1960

Részletes adatok

Állapot: Átlagos
Fűtés: Gázkonvektor
Energetikai besorolás: Nem adta meg a hirdető

Az OTP Bank lakáshitel ajánlataFizetett hirdetés

+36 70 393
Czugh Péter
OTP IP Miskolc Corvin 1-3

Érdekel az OTP Bank kedvezményes lakáshitel ajánlata? *

* A kérdésre „Igen” válasz bejelölése esetén, az „Üzenet küldése” gombra kattintva kijelentem, hogy az OTP Bank Nyrt. Adatkezelési tájékoztatójának tartalmát megismertem és tudomásul vettem.

Eladó téglalakás leírása

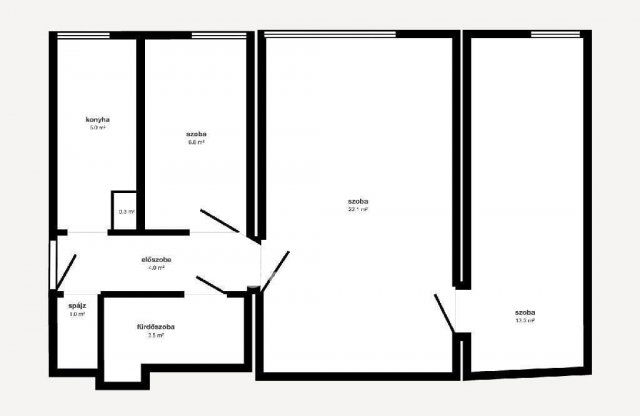
Sajószentpéter, BÉV telepen eladó egy FÖLDSZINTI, 2+fél szobás, 54 nm-es, részben felújított, kívülről SZIGETELT lakás eladó. A lakáshoz egy 4 nm-es önálló, zárható tároló is tartozik. Az otthon melegét 2 szobában gázkonvektorok, egy szobában cserépkályha biztosítja. A társasházban az EU előírásoknak megfelelő gázfelújítást 2025 februárjában elvégezték. A meleg vizet a fürdőszobában gáz átfolyós vízmelegítő, a konyhában villanybojler biztosítja. A bejárati ajtó biztonsági heveder zárral felszerelt. Két szobát új laminált padló, egy szobát hagyományos parketta, egyéb helyiségeket járólap burkol. Közösköltség: 10.000 Ft/hó, ebből 4.000 Ft a felújítási alapba fizetendő, mivel a társasházat a közeljövőben felújítják. OTTHON START PROGRAM igényelhető! Ingatlanirodánk ügyvédi háttérrel, babaváró hitel, CSOK Plusz, OTTHON START 3%-os hitel, valamint kamatkedvezményes hitel ügyintézésével támogatja ügyfelei ingatlanvásárlását! M317067
Érdeklődni: Czugh Péter 70-3934954

Hirdetés feltöltve: 2025. 12. 10. Utoljára módosítva: 2026. 01. 17.

3 szobás téglalakások ára Sajószentpéteren

Ebből az összehasonlításból megtudhatod, hogyan viszonyul a lakás ára a környékbeli téglalakások átlagos árához. Ez nem azt jelenti, hogy ennyivel olcsóbb vagy drágább, mint amennyit a lakás ér, hanem hogy ennyivel tér el a környékbeli átlagtól.

Ennek a m² ára
Sajószentpéter m² ár
387 e Ft
510 e Ft 24%
Ennek az ára
Sajószentpéter átlagár
20.9 M Ft m Ft
33 m Ft 37%

Az ingatlan elhelyezkedése

Cím: Sajószentpéter, földszint

Eladó ingatlanok a környékről

Eladó téglalakás
Eladó téglalakás

Putnok

8.8 M Ft
2 szoba
52 m2
Eladó családi ház
Eladó családi ház

Gönc

70 M Ft
4 szoba
122 m2
Eladó téglalakás
Eladó téglalakás

Miskolc

9.99 M Ft
2 szoba
59 m2
Eladó téglalakás
Eladó téglalakás

Sajószentpéter, Bányász utca

16.5 M Ft
2 szoba
64 m2
Eladó téglalakás
Eladó téglalakás

Miskolc

32.99 M Ft
2 szoba
55 m2
Eladó téglalakás
Eladó téglalakás

Sárospatak, Tompa Mihály utca

23.9 M Ft
2 szoba
62 m2
Eladó téglalakás
Eladó téglalakás

Miskolc

26.9 M Ft
1 + 1 szoba
35 m2
Eladó családi ház
Eladó családi ház

Miskolc

78 M Ft
3 szoba
125 m2
Eladó téglalakás
Eladó téglalakás

Ózd

4.99 M Ft
2 szoba
55 m2
Eladó téglalakás
Eladó téglalakás

Ózd

9.99 M Ft
2 szoba
58 m2
Eladó téglalakás
Eladó téglalakás

Miskolc

69.7 M Ft
3 szoba
60 m2
Eladó családi ház
Eladó családi ház

Tarcal

29.9 M Ft
2 szoba
60 m2
Eladó téglalakás
Eladó téglalakás

Miskolc, Új Diósgyőr, Torontáli utca

19.99 M Ft
2 szoba
49 m2
Eladó téglalakás
Eladó téglalakás

Sajószentpéter

18.499 M Ft
1 + 1 szoba
42 m2
Eladó téglalakás
Eladó téglalakás

Putnok

13.6 M Ft
3 szoba
123 m2
Eladó téglalakás
Eladó téglalakás

Sajószentpéter

13.5 M Ft
1 + 1 szoba
42 m2
Eladó téglalakás
Eladó téglalakás

Sajószentpéter

15.95 M Ft
2 szoba
52 m2
Eladó téglalakás
Eladó téglalakás

Sajószentpéter

20.9 M Ft
2 + 1 szoba
54 m2
Eladó téglalakás
Eladó téglalakás

Kazincbarcika, Egressy Béni út 46

25.5 M Ft
1 + 1 szoba
48 m2
Eladó téglalakás
Eladó téglalakás

Sajószentpéter

15 M Ft
2 szoba
63 m2
Eladó téglalakás
Eladó téglalakás

Sajószentpéter

20.9 M Ft
2 + 1 szoba
54 m2
Eladó téglalakás
Eladó téglalakás

Sajószentpéter

13.5 M Ft
3 + 1 szoba
51 m2
Eladó téglalakás
Eladó téglalakás

Sárospatak

13.9 M Ft
3 szoba
89 m2
Eladó téglalakás
Eladó téglalakás

Ózd

8.9 M Ft
2 szoba
57 m2

Falusi CSOK ingatlanok

Eladó téglalakás
Eladó téglalakás

Kőröshegy

68 M Ft
2 szoba
65 m2
Eladó családi ház
Eladó családi ház

Ceglédbercel

67 M Ft
4 szoba
165 m2
Eladó családi ház
Eladó családi ház

Hercegszántó

7 M Ft
3 szoba
120 m2
Eladó családi ház
Eladó családi ház

Szabadbattyán

67.5 M Ft
5 szoba
180 m2
Eladó családi ház
Eladó családi ház

Somogyhárságy

188.65 M Ft
5 szoba
250 m2
Eladó családi ház
Eladó családi ház

Seregélyes

75 M Ft
6 szoba
160 m2
Eladó családi ház
Eladó családi ház

Bábolna

69.9 M Ft
5 szoba
172 m2
Eladó családi ház
Eladó családi ház

Zengővárkony

28 M Ft
3 szoba
87 m2