Seven Pearl

Eladó téglalakás
Pétfürdő, 2. emelet

Figyelem!

Ez az ingatlan a 2019.07.01-től induló falusi CSOK által támogatott településen található

+ 9 kép 1/12
64 900 000 Ft64.9 M Ft 473 723 Ft/m2
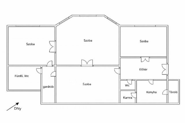
4 + 1 szoba
137 m²
2. emelet
építés éve:1930

Részletes adatok

Állapot: Átlagos
Fűtés: Gázkazán
Emelet: 2. emelet
Energetikai besorolás: Nem adta meg a hirdető

Az OTP Bank lakáshitel ajánlataFizetett hirdetés

+36 30 184
Vukov Gabriella
OTP Ingatlanpont Veszprém

Érdekel az OTP Bank kedvezményes lakáshitel ajánlata? *

* A kérdésre „Igen” válasz bejelölése esetén, az „Üzenet küldése” gombra kattintva kijelentem, hogy az OTP Bank Nyrt. Adatkezelési tájékoztatójának tartalmát megismertem és tudomásul vettem.

Eladó téglalakás leírása

SOK SZOBA, NAGY TEREK!

A 8-as főút mentén, Pétfürdő parkos övezetében eladóvá vált egy tégla lakás 4 egész és egy fél szobával. A konyhát egy kamra egészíti ki, A fürdőszobában van wc is, de a vendégek számára található a lakásban egy extra wc.

A 137m2-es polgári, magas belmagassággal rendelkező ingatlan tehermentes.
A belmagasságnak köszönhetően akár galéria is kialakítható a szobákban.

A társasházon 2025-ben teljes tető-, ereszcsatorna csere történt.
A lakás közös költsége 25.000 Ft/hó. A fűtést gázkazán, a meleg víz ellátást villanybojler biztosítja.

Köszönöm, hogy figyelmével megtisztelte hirdetésemet. Amennyiben felkeltette érdeklődését, vagy további kérdések merülnek fel Önben, várom hívását. Időpont egyeztetése után megtekinthető az ingatlan. Nálunk minden ingatlan megtekintése DÍJMENTES! Az OTP Ingatlanpont teljes körű ügyintézéssel áll az eladók és a vevők szolgálatára. A kínálatunkból választott ingatlan finanszírozásához szükség esetén kedvezményes hitelkonstrukciót ajánlunk. Az adásvételi szerződés megkötéséhez igény szerint megbízható ügyvédi közreműködést biztosítunk és segítséget nyújtunk az adásvételhez kapcsolódó ügyintézéshez.

Hirdetés feltöltve: 2026. 04. 08. Utoljára módosítva: 2026. 04. 08.

Az ingatlan elhelyezkedése

Cím: Pétfürdő, 2. emelet

Eladó ingatlanok a környékről

Pétfürdő
Eladó téglalakás

Pétfürdő

64.9 M Ft
4 + 1 szoba
137 m²
Balatonakarattya
Eladó téglalakás

Balatonakarattya

186.639 M Ft
3 szoba
71 m²
Balatonfűzfő
Eladó téglalakás

Balatonfűzfő

95.9 M Ft
2 szoba
49 m²
Pétfürdő
Eladó téglalakás

Pétfürdő

64.9 M Ft
4 + 1 szoba
137 m²
Balatonalmádi
Eladó nyaraló

Balatonalmádi

95 M Ft
3 szoba
52 m²
Ajka
Eladó téglalakás

Ajka

33.5 M Ft
2 szoba
53 m²
Balatonkenese
Eladó téglalakás

Balatonkenese

84.9 M Ft
1 szoba
42 m²
Balatonakarattya
Eladó téglalakás

Balatonakarattya

176.581 M Ft
2 szoba
67 m²
Sümeg
Eladó családi ház

Sümeg

74.9 M Ft
5 + 2 szoba
168 m²
Balatonakarattya
Eladó téglalakás

Balatonakarattya

163.576 M Ft
2 szoba
62 m²
Balatonfüred
Eladó téglalakás

Balatonfüred

166 M Ft
4 szoba
103 m²
Balatonalmádi
Eladó téglalakás

Balatonalmádi

103 M Ft
2 szoba
47 m²
Káptalantóti
Eladó telek

Káptalantóti

9.5 M Ft
6590 m²
0 m²
Balatonfüred
Eladó téglalakás

Balatonfüred

220 M Ft
3 szoba
67 m²
Pétfürdő
Eladó téglalakás

Pétfürdő

64.999 M Ft
4 szoba
137 m²
Balatonakarattya
Eladó téglalakás

Balatonakarattya

133 M Ft
3 szoba
121 m²
Ajka
Eladó téglalakás

Ajka

41.99 M Ft
2 szoba
54 m²
Balatonfüred
Eladó téglalakás

Balatonfüred

436.916 M Ft
3 szoba
142 m²
Balatonfőkajár
Eladó nyaraló

Balatonfőkajár

25.9 M Ft
1 + 1 szoba
27 m²
Tapolca
Eladó téglalakás

Tapolca

29.5 M Ft
2 szoba
54 m²
Pétfürdő, Berhidai út
Eladó téglalakás

Pétfürdő

28.9 M Ft
3 szoba
63 m²
Balatonakarattya
Eladó téglalakás

Balatonakarattya

211.785 M Ft
3 szoba
81 m²
Veszprém
Eladó családi ház

Veszprém

69.6 M Ft
5 szoba
153 m²
Balatonfüred
Eladó téglalakás

Balatonfüred

435.728 M Ft
3 szoba
148 m²

Falusi CSOK ingatlanok

Balatonszemes
Eladó téglalakás

Balatonszemes

119.9 M Ft
2 szoba
81 m²
Darnózseli
Eladó családi ház

Darnózseli

69.9 M Ft
4 szoba
104 m²
Cserépfalu
Eladó családi ház

Cserépfalu

58 M Ft
4 szoba
143 m²
Tóalmás
Eladó családi ház

Tóalmás

55 M Ft
8 szoba
360 m²
Vasvár
Eladó téglalakás

Vasvár

40.4 M Ft
2 szoba
0 m²
Magyarszék
Eladó családi ház

Magyarszék

48.5 M Ft
3 + 1 szoba
86 m²
Röszke
Eladó családi ház

Röszke

140 M Ft
4 szoba
162 m²
Felgyő
Eladó családi ház

Felgyő

41.9 M Ft
4 szoba
115 m²

Falusi CSOK ingatlanok

Tápióság
Eladó családi ház

Tápióság

59.9 M Ft
4 szoba
99 m²
Cserépfalu
Eladó családi ház

Cserépfalu

58 M Ft
6 szoba
184 m²
Nagybörzsöny
Eladó családi ház

Nagybörzsöny

79.9 M Ft
4 szoba
129 m²
Somogycsicsó
Eladó családi ház

Somogycsicsó

15.99 M Ft
4 szoba
98 m²
Cserépfalu
Eladó családi ház

Cserépfalu

58 M Ft
4 szoba
143 m²
Vokány
Eladó családi ház

Vokány

30 M Ft
4 szoba
100 m²
Szenta
Eladó családi ház

Szenta

14.9 M Ft
3 szoba
88 m²
Tab
Eladó családi ház

Tab

15 M Ft
3 szoba
86 m²