NapForrás 20 - Buda

Eladó téglalakás
Pétfürdő, 2. emelet

Figyelem!

Ez az ingatlan a 2019.07.01-től induló falusi CSOK által támogatott településen található

+ 9 kép 1/12
64 900 000 Ft64.9 M Ft 473 723 Ft/m2
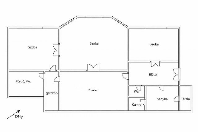
4 + 1 szoba
137 m²
2. emelet
építés éve:1930

Részletes adatok

Állapot: Átlagos
Fűtés: Gázkazán
Emelet: 2. emelet
Komfort: Összkomfortos
Energetikai besorolás: Nem adta meg a hirdető

Az OTP Bank lakáshitel ajánlataFizetett hirdetés

+36 30 184
Vukov Gabriella
OTP Ingatlanpont Veszprém

Érdekel az OTP Bank kedvezményes lakáshitel ajánlata? *

* A kérdésre „Igen” válasz bejelölése esetén, az „Üzenet küldése” gombra kattintva kijelentem, hogy az OTP Bank Nyrt. Adatkezelési tájékoztatójának tartalmát megismertem és tudomásul vettem.

Eladó téglalakás leírása

SOK SZOBA, NAGY TEREK!

A 8-as főút mentén, Pétfürdő parkos övezetében eladóvá vált egy tégla lakás 4 egész és egy fél szobával. A konyhát egy kamra egészíti ki, A fürdőszobában van wc is, de a vendégek számára található a lakásban egy extra wc.

A 137m2-es polgári, magas belmagassággal rendelkező ingatlan tehermentes.
A belmagasságnak köszönhetően akár galéria is kialakítható a szobákban.

A társasházon 2025-ben teljes tető-, ereszcsatorna csere történt.
A lakás közös költsége 25.000 Ft/hó. A fűtést gázkazán, a meleg víz ellátást villanybojler biztosítja.

Köszönöm, hogy figyelmével megtisztelte hirdetésemet. Amennyiben felkeltette érdeklődését, vagy további kérdések merülnek fel Önben, várom hívását. Időpont egyeztetése után megtekinthető az ingatlan. Nálunk minden ingatlan megtekintése DÍJMENTES! Az OTP Ingatlanpont teljes körű ügyintézéssel áll az eladók és a vevők szolgálatára. A kínálatunkból választott ingatlan finanszírozásához szükség esetén kedvezményes hitelkonstrukciót ajánlunk. Az adásvételi szerződés megkötéséhez igény szerint megbízható ügyvédi közreműködést biztosítunk és segítséget nyújtunk az adásvételhez kapcsolódó ügyintézéshez.

Hirdetés feltöltve: 2026. 04. 08. Utoljára módosítva: 2026. 05. 24.

Az ingatlan elhelyezkedése

Cím: Pétfürdő, 2. emelet

Eladó ingatlanok a környékről

Balatonakarattya
Eladó téglalakás

Balatonakarattya

163.576 M Ft
2 szoba
62 m²
Balatonfüred
Eladó téglalakás

Balatonfüred

217 M Ft
4 szoba
168 m²
Pétfürdő
Eladó téglalakás

Pétfürdő

64.9 M Ft
4 + 1 szoba
137 m²
Pétfürdő
Eladó téglalakás

Pétfürdő

64.999 M Ft
4 szoba
137 m²
Balatonfüred
Eladó téglalakás

Balatonfüred

329 M Ft
3 szoba
120 m²
Veszprém
Eladó panellakás

Veszprém

65.5 M Ft
4 szoba
69 m²
Balatonfüred
Eladó téglalakás

Balatonfüred

436.916 M Ft
3 szoba
142 m²
Balatonakarattya
Eladó téglalakás

Balatonakarattya

211.785 M Ft
3 szoba
81 m²
Balatonakarattya
Eladó téglalakás

Balatonakarattya

239.192 M Ft
3 szoba
92 m²
Tihany
Eladó üzlethelyiség

Tihany

895 M Ft
15 szoba
694 m²
Pétfürdő
Eladó téglalakás

Pétfürdő

37.99 M Ft
2 szoba
63 m²
Pétfürdő
Eladó téglalakás

Pétfürdő

64.9 M Ft
4 szoba
137 m²
Balatonakarattya
Eladó téglalakás

Balatonakarattya

159.487 M Ft
2 szoba
60 m²
Pétfürdő
Eladó téglalakás

Pétfürdő

36 M Ft
2 szoba
48 m²
Pétfürdő
Eladó téglalakás

Pétfürdő

64.9 M Ft
4 + 1 szoba
137 m²
Pétfürdő
Eladó téglalakás

Pétfürdő

64.9 M Ft
4 + 1 szoba
137 m²
Balatonalmádi
Eladó téglalakás

Balatonalmádi

120 M Ft
2 + 1 szoba
63 m²
Pétfürdő
Eladó téglalakás

Pétfürdő

36 M Ft
2 szoba
48 m²
Pétfürdő
Eladó téglalakás

Pétfürdő

64.999 M Ft
4 szoba
137 m²
Pétfürdő
Eladó téglalakás

Pétfürdő

64.9 M Ft
4 + 1 szoba
137 m²
Balatonfüred
Eladó téglalakás

Balatonfüred

184 M Ft
4 szoba
119 m²
Pétfürdő
Eladó téglalakás

Pétfürdő

36 M Ft
2 szoba
48 m²
Balatonakarattya
Eladó téglalakás

Balatonakarattya

186.639 M Ft
3 szoba
71 m²
Pétfürdő
Eladó téglalakás

Pétfürdő

64.999 M Ft
4 szoba
137 m²

Falusi CSOK ingatlanok

Tihany
Eladó családi ház

Tihany

385 M Ft
5 szoba
200 m²
Hegyeshalom, Margaréta utca 12
Eladó téglalakás

Hegyeshalom

46.91 M Ft
2 szoba
43 m²
Békésszentandrás
Eladó családi ház

Békésszentandrás

10 M Ft
1 + 1 szoba
70 m²
Doba
Eladó családi ház

Doba

8.99 M Ft
1 + 2 szoba
66 m²
Balatonkeresztúr
Eladó családi ház

Balatonkeresztúr

85 M Ft
3 + 2 szoba
115 m²
Hegyeshalom, Margaréta utca 12
Eladó téglalakás

Hegyeshalom

50.09 M Ft
2 szoba
43 m²
Tápiógyörgye
Eladó családi ház

Tápiógyörgye

22.5 M Ft
3 + 1 szoba
83 m²
Szűr
Eladó családi ház

Szűr

8 M Ft
3 szoba
68 m²

Falusi CSOK ingatlanok

Hajós
Eladó családi ház

Hajós

49.5 M Ft
6 szoba
394 m²
Vitnyéd
Eladó családi ház

Vitnyéd

68.52 M Ft
4 szoba
144 m²
Mikepércs
Eladó családi ház

Mikepércs

147 M Ft
5 szoba
180 m²
Sásd
Eladó családi ház

Sásd

35.9 M Ft
4 + 1 szoba
71 m²
Nyáregyháza
Eladó ikerház

Nyáregyháza

75.9 M Ft
4 szoba
0 m²
Balatonszemes
Eladó téglalakás

Balatonszemes

125.2 M Ft
2 szoba
50 m²
Tápióság
Eladó családi ház

Tápióság

71.5 M Ft
4 szoba
72 m²
Balatonkeresztúr
Eladó családi ház

Balatonkeresztúr

85 M Ft
3 + 2 szoba
115 m²