City Pearl

Eladó téglalakás
Pécs, 4. emelet

+ 17 kép 1/20
59 800 000 Ft59.8 M Ft 703 529 Ft/m2
2 + 1 szoba
85 m²
4. emelet
építés éve:1965

Részletes adatok

Állapot: Átlagos
Fűtés: Házközponti
Emelet: 4. emelet
Energetikai besorolás: F

Az OTP Bank lakáshitel ajánlataFizetett hirdetés

+36 20 390
Rózsavölgyi Csilla
OTPIP - Pécs, Rákóczi út 19.

Érdekel az OTP Bank kedvezményes lakáshitel ajánlata? *

* A kérdésre „Igen” válasz bejelölése esetén, az „Üzenet küldése” gombra kattintva kijelentem, hogy az OTP Bank Nyrt. Adatkezelési tájékoztatójának tartalmát megismertem és tudomásul vettem.

Eladó téglalakás leírása

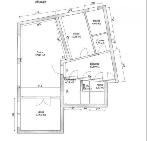
Baranya megyében, 2,5 szobás 4. emeleti lakás eladó Pécsett a Mecsek áruházzal szemben.
Uránvárosban az Ybl Miklós utcai 4 emeletes téglaház legfelső emeletén van nyugati és északi tájolással.
A lépcsőházban nincs lift, viszont a déli lépcsőházban van, és a függőfolyosón át lehet sétálni.
A 85 négyzetméteres alapterületű. A szobák parkettával, a többi helyiségek műanyag padlóval vannak burkolva. Összkomfortos, házközponti fűtéssel, radiátorok segítségével. A közelben minden beszerezhető az üzletekben. OTP fiók és ATM is van a házban. 200 méterre rendelőintézet van. Óvoda, iskola, játszótér is 500 méteren belül található. Az összes belvárosba tartó busz a kétszáz méteren belül áll meg. Az Orvosi egyetem 1,3 kilométerre van. Gyalog 15 perc, busszal 3 megálló.

További információkért hívjon, nézze meg, tegyen egy ajánlatot hét végén is!

Az OTP INGATLANPONT teljes körű ügyintézéssel áll az eladók és a vevők rendelkezésére! A megvásárolni kívánt ingatlan finanszírozásához a CSOK-pluszt, a Babaváró hitelt, a START hitelt (3 %), a kedvezményes hitelkonstrukciókat helyben ingyenesen intézzük. Az adásvételi szerződés megkötéséhez igény szerint megbízható ügyvédi közreműködést, az energetikai tanúsítvány elkészítéséhez energetikust biztosítunk, segítséget nyújtunk az adásvételhez kapcsolódó ügyintézésben az ajánlattételtől a birtokba lépésig. Várom hívását a hét minden napján, megtekintést rugalmasan egyeztetek.

59800000 Ft

Hirdetés feltöltve: 2026. 04. 18. Utoljára módosítva: 2026. 05. 10.

3 szobás téglalakások ára Pécsett

Ebből az összehasonlításból megtudhatod, hogyan viszonyul a lakás ára a környékbeli téglalakások átlagos árához. Ez nem azt jelenti, hogy ennyivel olcsóbb vagy drágább, mint amennyit a lakás ér, hanem hogy ennyivel tér el a környékbeli átlagtól.

Ennek a m² ára
Pécs m² ár
704 e Ft
1106 e Ft 36%
Ennek az ára
Pécs átlagár
59.8 M Ft m Ft
80 m Ft 25%

Az ingatlan elhelyezkedése

Cím: Pécs, 4. emelet

Eladó téglalakások a környékről

Pécs
Eladó téglalakás

Pécs

69.93 M Ft
2 szoba
54 m²
Pécs
Eladó téglalakás

Pécs

63.588 M Ft
2 szoba
52 m²
Pécs
Eladó téglalakás

Pécs

60.896 M Ft
2 szoba
48 m²
Pécs
Eladó téglalakás

Pécs

95.52 M Ft
3 szoba
62 m²
Pécs
Eladó téglalakás

Pécs

91.2 M Ft
4 szoba
96 m²
Pécs
Eladó téglalakás

Pécs

60.958 M Ft
2 szoba
45 m²
Pécs, Szigeti külváros, Hungária utca
Eladó téglalakás

Pécs

29.9 M Ft
1 szoba
41 m²
Pécs
Eladó téglalakás

Pécs

70 M Ft
3 szoba
60 m²
Pécs
Eladó téglalakás

Pécs

68.594 M Ft
2 szoba
52 m²
Pécs
Eladó téglalakás

Pécs

69.93 M Ft
2 szoba
54 m²
Pécs
Eladó téglalakás

Pécs

81.7 M Ft
4 szoba
86 m²
Pécs
Eladó téglalakás

Pécs

70 M Ft
3 szoba
60 m²
Pécs
Eladó téglalakás

Pécs

63.904 M Ft
2 szoba
52 m²
Pécs
Eladó téglalakás

Pécs

58.09 M Ft
2 szoba
45 m²
Pécs
Eladó téglalakás

Pécs

81.7 M Ft
4 szoba
86 m²
Pécs
Eladó téglalakás

Pécs

60.958 M Ft
2 szoba
45 m²
Pécs
Eladó téglalakás

Pécs

95.521 M Ft
3 szoba
73 m²
Pécs
Eladó téglalakás

Pécs

58.09 M Ft
2 szoba
45 m²
Pécs
Eladó téglalakás

Pécs

74.77 M Ft
2 szoba
60 m²
Pécs
Eladó téglalakás

Pécs

81.7 M Ft
4 szoba
86 m²
Pécs
Eladó téglalakás

Pécs

7.9 M Ft
1 szoba
26 m²
Pécs
Eladó téglalakás

Pécs

69.89 M Ft
1 szoba
51 m²
Pécs
Eladó téglalakás

Pécs

95.52 M Ft
3 szoba
62 m²
Pécs
Eladó téglalakás

Pécs

62.7 M Ft
2 szoba
46 m²

Falusi CSOK ingatlanok

Pannonhalma
Eladó téglalakás

Pannonhalma

68 M Ft
4 szoba
153 m²
Kunadacs
Eladó családi ház

Kunadacs

80 M Ft
4 szoba
148 m²
Gic
Eladó családi ház

Gic

74.9 M Ft
5 szoba
176 m²
Herend
Eladó családi ház

Herend

128 M Ft
3 + 2 szoba
246 m²
Badacsonytördemic
Eladó családi ház

Badacsonytördemic

90 M Ft
3 szoba
130 m²
Mihályháza
Eladó családi ház

Mihályháza

2.9 M Ft
1 szoba
42 m²
Vértesboglár
Eladó családi ház

Vértesboglár

131 M Ft
5 szoba
147 m²
Seregélyes
Eladó családi ház

Seregélyes

75 M Ft
6 szoba
160 m²