Kedves Felhasználónk! Rendszerfrissítés miatt az oldalunk 2026. február 9-én 12 órától várhatóan 20 óráig nem lesz elérhető. Köszönjük megértésed!
Aerogate Homes

Eladó téglalakás
Pécs, földszint

+ 14 kép 1/17
110 000 000 Ft110 M Ft 846 154 Ft/m2
5 szoba
130 m2
földszint
építés éve:1980

Részletes adatok

Állapot: Felújított
Fűtés: Gázkazán
Emelet: földszint
Energetikai besorolás: Nem adta meg a hirdető

Az OTP Bank lakáshitel ajánlataFizetett hirdetés

3672999162
Winklerné Kulcsár Melinda
HGH-2006 Kft.

Érdekel az OTP Bank kedvezményes lakáshitel ajánlata? *

* A kérdésre „Igen” válasz bejelölése esetén, az „Üzenet küldése” gombra kattintva kijelentem, hogy az OTP Bank Nyrt. Adatkezelési tájékoztatójának tartalmát megismertem és tudomásul vettem.

Eladó téglalakás leírása

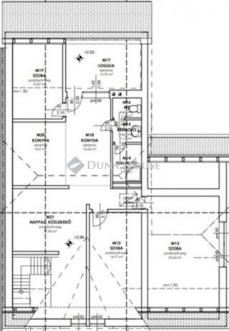
Eladásra kínálunk egy egyszintes, 130m2-es , tégla szerkezetű, kertkapcsolatos lakást, amely nem csak egy lakóhely, hanem egy otthon, ahol az élet minden szépsége kiteljesedhet. A ház 1 nappalival és további 4 szobával rendelkezik, amelyek tágasak és világosak, köszönhetően a jól megtervezett elrendezésnek.Az ingatlan a kertkapcsolatnak köszönhetően különleges lehetőséget kínál a szabadtéri tevékenységekhez. A kert gondosan ápolt, tökéletes hely a kikapcsolódáshoz, a gyerekek játékára vagy akár egy családi barbecue est szervezésére.Belépve a tágas előszobába, azonnal érezhető a nyugodt, családias hangulat, amit a természetes fény és a modern, mégis időtálló belső kialakítás is erősít. A nappali a központi helyiség, ahol a család és a barátok összegyűlnek, hogy kellemes időt töltsenek együtt. A konyha és az étkező egy légtérben helyezkedik el, ideális helyszín a közös főzésekhez és étkezésekhez.

110000000 Ft

Referencia szám: LK012211

Hirdetés feltöltve: 2026. 02. 06. Utoljára módosítva: 2026. 02. 08.

5 szobás téglalakások ára Pécsett

Ebből az összehasonlításból megtudhatod, hogyan viszonyul a lakás ára a környékbeli téglalakások átlagos árához. Ez nem azt jelenti, hogy ennyivel olcsóbb vagy drágább, mint amennyit a lakás ér, hanem hogy ennyivel tér el a környékbeli átlagtól.

Ennek a m² ára
Pécs m² ár
846 e Ft
860 e Ft 2%
Ennek az ára
Pécs átlagár
110 M Ft m Ft
103.5 m Ft -6%

Az ingatlan elhelyezkedése

Cím: Pécs, földszint

Eladó téglalakások a környékről

Eladó téglalakás
Eladó téglalakás

Pécs

58.09 M Ft
2 szoba
45 m2
Eladó téglalakás
Eladó téglalakás

Pécs, Szigeti külváros, Hungária utca

29.9 M Ft
1 szoba
41 m2
Eladó téglalakás
Eladó téglalakás

Pécs

60.958 M Ft
2 szoba
45 m2
Eladó téglalakás
Eladó téglalakás

Pécs

63.904 M Ft
2 szoba
52 m2
Eladó téglalakás
Eladó téglalakás

Pécs

62.7 M Ft
2 szoba
46 m2
Eladó téglalakás
Eladó téglalakás

Pécs

74.77 M Ft
2 szoba
60 m2
Eladó téglalakás
Eladó téglalakás

Pécs

62.698 M Ft
2 szoba
49 m2
Eladó téglalakás
Eladó téglalakás

Pécs

95.521 M Ft
3 szoba
73 m2
Eladó téglalakás
Eladó téglalakás

Pécs

63.9 M Ft
2 szoba
47 m2
Eladó téglalakás
Eladó téglalakás

Pécs

70 M Ft
3 szoba
60 m2
Eladó téglalakás
Eladó téglalakás

Pécs

62.698 M Ft
2 szoba
49 m2
Eladó téglalakás
Eladó téglalakás

Pécs

69.93 M Ft
2 szoba
54 m2
Eladó téglalakás
Eladó téglalakás

Pécs

95.52 M Ft
3 szoba
62 m2
Eladó téglalakás
Eladó téglalakás

Pécs

81.7 M Ft
4 szoba
86 m2
Eladó téglalakás
Eladó téglalakás

Pécs

60.958 M Ft
2 szoba
45 m2
Eladó téglalakás
Eladó téglalakás

Pécs

95.521 M Ft
3 szoba
73 m2
Eladó téglalakás
Eladó téglalakás

Pécs

81.7 M Ft
4 szoba
86 m2
Eladó téglalakás
Eladó téglalakás

Pécs

63.588 M Ft
2 szoba
52 m2
Eladó téglalakás
Eladó téglalakás

Pécs

60.896 M Ft
2 szoba
48 m2
Eladó téglalakás
Eladó téglalakás

Pécs

51.345 M Ft
2 szoba
35 m2
Eladó téglalakás
Eladó téglalakás

Pécs

90.38 M Ft
3 szoba
71 m2
Eladó téglalakás
Eladó téglalakás

Pécs

68.594 M Ft
2 szoba
52 m2
Eladó téglalakás
Eladó téglalakás

Pécs

74.77 M Ft
2 szoba
60 m2
Eladó téglalakás
Eladó téglalakás

Pécs

64.011 M Ft
2 szoba
52 m2

Falusi CSOK ingatlanok

Eladó családi ház
Eladó családi ház

Marcaltő

26 M Ft
3 szoba
103 m2
Eladó családi ház
Eladó családi ház

Recsk

40 M Ft
3 + 1 szoba
130 m2
Eladó családi ház
Eladó családi ház

Recsk

24.5 M Ft
2 szoba
100 m2
Eladó téglalakás
Eladó téglalakás

Felsőszentiván, Jókai Mór u 9 fszt 2

17.56 M Ft
1 + 1 szoba
90 m2
Eladó családi ház
Eladó családi ház

Vásárosdombó

14.99 M Ft
2 szoba
69 m2
Eladó családi ház
Eladó családi ház

Badacsonytördemic

179.07 M Ft
4 szoba
160 m2
Eladó téglalakás
Eladó téglalakás

Balatonszemes

123.3 M Ft
2 szoba
70 m2
Eladó családi ház
Eladó családi ház

Szabadbattyán

67.5 M Ft
5 szoba
180 m2