Astora Márvány8

Eladó téglalakás
Pécs, 1. emelet

+ 16 kép 1/19
79 900 000 Ft79.9 M Ft 929 070 Ft/m2
3 szoba
86 m2
1. emelet
építés éve:1950

Részletes adatok

Fűtés: Gázkazán
Energetikai besorolás: Nem adta meg a hirdető

Az OTP Bank lakáshitel ajánlataFizetett hirdetés

+36 30 870
Havas János
referens

Érdekel az OTP Bank kedvezményes lakáshitel ajánlata? *

* A kérdésre „Igen” válasz bejelölése esetén, az „Üzenet küldése” gombra kattintva kijelentem, hogy az OTP Bank Nyrt. Adatkezelési tájékoztatójának tartalmát megismertem és tudomásul vettem.

Eladó téglalakás leírása

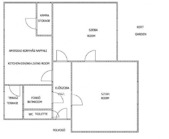
Pécs Belvárosában eladó 86 m?-es, háromszobás, szép állapotú, elegánsan bútorozott és berendezett lakás.
A kis lakásszámú társasházban lévő meleg hangulatú otthon tágas terasszal és saját kerttel kínálja a belvárosi élet kényelmét és a természet közelségét egyszerre.
A lakás gáz cirkó fűtéssel gazdaságosan fenntartható, egyedi mérőkkel rendelkezik, világos és tágasan barátságos tereivel pedig azonnal otthonossá válik.
A 3,2 m belmagasságú szobák kényelmes méretűek, a társasház udvarára néznek.
A tágas étkező - konyha gépesített (AEG gépekkel), külön, ablakos kamrával, fa konyhabútorral rendelkezik.
Hatalmas előszobája jól bútorozható, az összes helyiség megközelíthető innen. Fürdőszobája ablakos, kádas, a külön mellékhelyiség szintén ablakkal rendelkezik.
A közös költség 18e Ft.
A lakás szépen karbantartott, a villanyvezetékek komplett felújítása és ablakok cseréje 3 éve történt.
A ház előtti zsákutcában könnyű parkolni, az Árkád, Vasútállomás, buszpályaudvar illetve a Hullám is gyalogos távolságra találhatók.
További információkért és megtekintésért keressen bizalommal!

Referencia szám: M318376

Hirdetés feltöltve: 2025. 12. 20. Utoljára módosítva: 2025. 12. 20.

3 szobás téglalakások ára Pécsett

Ebből az összehasonlításból megtudhatod, hogyan viszonyul a lakás ára a környékbeli téglalakások átlagos árához. Ez nem azt jelenti, hogy ennyivel olcsóbb vagy drágább, mint amennyit a lakás ér, hanem hogy ennyivel tér el a környékbeli átlagtól.

Ennek a m² ára
Pécs m² ár
929 e Ft
1071 e Ft 13%
Ennek az ára
Pécs átlagár
79.9 M Ft m Ft
79.9 m Ft 0%

Az ingatlan elhelyezkedése

Cím: Pécs, 1. emelet

Eladó téglalakások a környékről

Eladó téglalakás
Eladó téglalakás

Pécs

69.89 M Ft
1 szoba
51 m2
Eladó téglalakás
Eladó téglalakás

Pécs

81.7 M Ft
4 szoba
86 m2
Eladó téglalakás
Eladó téglalakás

Pécs

95.52 M Ft
3 szoba
62 m2
Eladó téglalakás
Eladó téglalakás

Kozármisleny, Október 23. tér

60 M Ft
3 szoba
80 m2
Eladó téglalakás
Eladó téglalakás

Pécs, Belváros, Papnövelde utca

22.9 M Ft
1 szoba
28 m2
Eladó téglalakás
Eladó téglalakás

Pécs

7.9 M Ft
1 szoba
26 m2
Eladó téglalakás
Eladó téglalakás

Pécs

81.7 M Ft
4 szoba
86 m2
Eladó téglalakás
Eladó téglalakás

Pécs

90.38 M Ft
3 szoba
71 m2
Eladó téglalakás
Eladó téglalakás

Pécs

60.958 M Ft
2 szoba
45 m2
Eladó téglalakás
Eladó téglalakás

Pécs

51.345 M Ft
2 szoba
35 m2
Eladó téglalakás
Eladó téglalakás

Pécs

62.7 M Ft
2 szoba
46 m2
Eladó téglalakás
Eladó téglalakás

Pécs

69.89 M Ft
1 szoba
51 m2
Eladó téglalakás
Eladó téglalakás

Pécs, Szigeti külváros, Hungária utca

29.9 M Ft
1 szoba
41 m2
Eladó téglalakás
Eladó téglalakás

Komló, Zrínyi tér

13.5 M Ft
2 szoba
54 m2
Eladó téglalakás
Eladó téglalakás

Pécs

68.594 M Ft
2 szoba
52 m2
Eladó téglalakás
Eladó téglalakás

Pécs

70 M Ft
3 szoba
60 m2
Eladó téglalakás
Eladó téglalakás

Pécs

81.7 M Ft
4 szoba
86 m2
Eladó téglalakás
Eladó téglalakás

Mohács

33 M Ft
5 szoba
110 m2
Eladó téglalakás
Eladó téglalakás

Mohács

79.9 M Ft
3 szoba
105 m2
Eladó téglalakás
Eladó téglalakás

Pécs

74.77 M Ft
2 szoba
60 m2
Eladó téglalakás
Eladó téglalakás

Pécs

90.38 M Ft
2 szoba
72 m2
Eladó téglalakás
Eladó téglalakás

Pécs

60.896 M Ft
2 szoba
48 m2
Eladó téglalakás
Eladó téglalakás

Pécs

63.588 M Ft
2 szoba
52 m2
Eladó téglalakás
Eladó téglalakás

Pécs

60.896 M Ft
2 szoba
48 m2

Falusi CSOK ingatlanok

Eladó családi ház
Eladó családi ház

Bakonya

38.5 M Ft
2 szoba
75 m2
Eladó családi ház
Eladó családi ház

Úrkút

94.9 M Ft
4 szoba
186 m2
Eladó családi ház
Eladó családi ház

Mikepércs

56 M Ft
3 + 1 szoba
87 m2
Eladó családi ház
Eladó családi ház

Magyarszék

48.5 M Ft
3 + 1 szoba
86 m2
Eladó sorház
Eladó sorház

Bokod

41.7 M Ft
2 szoba
52 m2
Eladó családi ház
Eladó családi ház

Nagyhegyes

75.9 M Ft
3 + 1 szoba
120 m2
Eladó családi ház
Eladó családi ház

Szabadbattyán

163.99 M Ft
5 szoba
255 m2
Eladó családi ház
Eladó családi ház

Kétegyháza

13.9 M Ft
4 szoba
140 m2