Aerogate Homes

Eladó téglalakás
Pécs, 2. emelet

+ 17 kép 1/20
47 900 000 Ft47.9 M Ft 958 000 Ft/m2
2 szoba
50 m2
2. emelet
építés éve:1965

Részletes adatok

Fűtés: Távfűtés
Energetikai besorolás: Nem adta meg a hirdető

Az OTP Bank lakáshitel ajánlataFizetett hirdetés

+36 20 502
Szenk László
referens

Érdekel az OTP Bank kedvezményes lakáshitel ajánlata? *

* A kérdésre „Igen” válasz bejelölése esetén, az „Üzenet küldése” gombra kattintva kijelentem, hogy az OTP Bank Nyrt. Adatkezelési tájékoztatójának tartalmát megismertem és tudomásul vettem.

Eladó téglalakás leírása

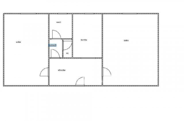
Eladó Pécs-Uránvárosban egy 2 szobás, második emeleti, 50 nm alapterületű lakás. A 3 emeletes társasház csúsztatott zsalus technológiával készült, mind a ház fala, mind a tető szigetelt, így kedvező hőkomfort és energiatakarékosság biztosított.

A lakás műanyag hőszigetelt ablakokkal rendelkezik, redőnnyel és szúnyoghálóval felszerelt, a bejárati ajtó széles, műanyag, a belső ajtók pedig egyedi gyártású fa ajtók. A fürdőszobában zuhanyzó található, a WC külön helyiségben van. Mindkét szobában klímaberendezés segíti a kellemes hőmérsékletet. A fűtés távfűtéses, egyedi mérővel mérve, így a rezsi jobb tervezhetősége adott.

Parkolási lehetőség ingyenes az épület környékén. A környék infrastruktúrája kiváló: iskola, óvoda, orvosi rendelő, boltok, üzletek és buszmegálló pár perc sétával elérhetők, ami nagyban megkönnyíti a mindennapi életet.

Amennyiben felkeltette érdeklődését ez az otthon, szívesen adok további információt vagy egyeztetünk megtekintési időpontot.
Otthon Start fix 3 %. hitel! OTP Bankhitelhez kapcsolódóan az OTP Ingatlanpont irodánk teljes körű tájékoztatást és ügyintézést vállal.

Hirdetés feltöltve: 2025. 12. 16. Utoljára módosítva: 2025. 12. 17.

2 szobás téglalakások ára Pécsett

Ebből az összehasonlításból megtudhatod, hogyan viszonyul a lakás ára a környékbeli téglalakások átlagos árához. Ez nem azt jelenti, hogy ennyivel olcsóbb vagy drágább, mint amennyit a lakás ér, hanem hogy ennyivel tér el a környékbeli átlagtól.

Ennek a m² ára
Pécs m² ár
958 e Ft
1036 e Ft 8%
Ennek az ára
Pécs átlagár
47.9 M Ft m Ft
56.1 m Ft 15%

Az ingatlan elhelyezkedése

Cím: Pécs, 2. emelet

Eladó téglalakások a környékről

Eladó téglalakás
Eladó téglalakás

Kozármisleny, Október 23. tér

60 M Ft
3 szoba
80 m2
Eladó téglalakás
Eladó téglalakás

Pécs

63.9 M Ft
2 szoba
47 m2
Eladó téglalakás
Eladó téglalakás

Pécs, Belváros, Papnövelde utca

22.9 M Ft
1 szoba
28 m2
Eladó téglalakás
Eladó téglalakás

Pécs

95.52 M Ft
3 szoba
62 m2
Eladó téglalakás
Eladó téglalakás

Pécs

70 M Ft
3 szoba
60 m2
Eladó téglalakás
Eladó téglalakás

Pécs

63.588 M Ft
2 szoba
52 m2
Eladó téglalakás
Eladó téglalakás

Pécs

58.09 M Ft
2 szoba
45 m2
Eladó téglalakás
Eladó téglalakás

Pécs

60.958 M Ft
2 szoba
45 m2
Eladó téglalakás
Eladó téglalakás

Mohács

79.9 M Ft
3 szoba
105 m2
Eladó téglalakás
Eladó téglalakás

Pécs

81.7 M Ft
4 szoba
86 m2
Eladó téglalakás
Eladó téglalakás

Pécs

91.2 M Ft
4 szoba
96 m2
Eladó téglalakás
Eladó téglalakás

Pécs

74.77 M Ft
2 szoba
60 m2
Eladó téglalakás
Eladó téglalakás

Pécs

7.9 M Ft
1 szoba
26 m2
Eladó téglalakás
Eladó téglalakás

Pécs

95.52 M Ft
3 szoba
62 m2
Eladó téglalakás
Eladó téglalakás

Pécs

64.011 M Ft
2 szoba
52 m2
Eladó téglalakás
Eladó téglalakás

Pécs

81.7 M Ft
4 szoba
86 m2
Eladó téglalakás
Eladó téglalakás

Kozármisleny, Október 23. tér

60 M Ft
3 szoba
80 m2
Eladó téglalakás
Eladó téglalakás

Pécs

63.9 M Ft
2 szoba
47 m2
Eladó téglalakás
Eladó téglalakás

Pécs

60.896 M Ft
2 szoba
48 m2
Eladó téglalakás
Eladó téglalakás

Pécs

58.09 M Ft
2 szoba
45 m2
Eladó téglalakás
Eladó téglalakás

Pécs

7.9 M Ft
1 szoba
26 m2
Eladó téglalakás
Eladó téglalakás

Pécs

60.958 M Ft
2 szoba
45 m2
Eladó téglalakás
Eladó téglalakás

Pécs, Belváros, Papnövelde utca

22.9 M Ft
1 szoba
28 m2
Eladó téglalakás
Eladó téglalakás

Pécs

51.345 M Ft
2 szoba
35 m2

Falusi CSOK ingatlanok

Eladó családi ház
Eladó családi ház

Törtel

74.9 M Ft
6 szoba
143 m2
Eladó családi ház
Eladó családi ház

Kunadacs

114.9 M Ft
4 szoba
174 m2
Eladó panellakás
Eladó panellakás

Pétfürdő

49.9 M Ft
3 szoba
71 m2
Eladó családi ház
Eladó családi ház

Recsk

59 M Ft
2 szoba
70 m2
Eladó családi ház
Eladó családi ház

Magyarszombatfa

80 M Ft
3 szoba
90 m2
Eladó családi ház
Eladó családi ház

Kétpó

14.9 M Ft
1 + 2 szoba
86 m2
Eladó ikerház
Eladó ikerház

Seregélyes

39.9 M Ft
4 szoba
150 m2
Eladó családi ház
Eladó családi ház

Magyarpolány

25 M Ft
2 szoba
47 m2