River Life

Eladó téglalakás
Pécs, földszint

39 900 000 Ft39.9 M Ft 561 972 Ft/m2
2 szoba
71 m2
földszint
építés éve:1940

Részletes adatok

Állapot: Felújítandó
Fűtés: Gázkonvektor
Energetikai besorolás: Nem adta meg a hirdető

Az OTP Bank lakáshitel ajánlataFizetett hirdetés

+36 70 941
Benedek Lili
referens

Érdekel az OTP Bank kedvezményes lakáshitel ajánlata? *

* A kérdésre „Igen” válasz bejelölése esetén, az „Üzenet küldése” gombra kattintva kijelentem, hogy az OTP Bank Nyrt. Adatkezelési tájékoztatójának tartalmát megismertem és tudomásul vettem.

Eladó téglalakás leírása

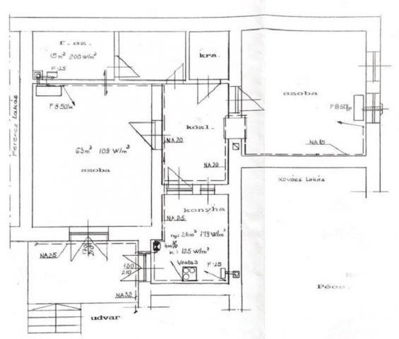
Földszinti 2 szobás 71 négyzetméteres tégla lakás eladó Pécs belvárosában!
A felújítandó udvari lakás nagy előnye, hogy csendes. A Széchenyi tértől gyalog 5 perc távolságra van. A Pécsi Orvostudományi Egyetem gyalog 10 percre. A Jogi-Közgazdasági egyetem 3 buszmegállóra van. Az utca felé ki lehet nyitni a falat, ezáltal irodának, rendelőnek, Stb. kiválóan használható. Befektetésnek is kiváló. Teljes közmű van. Boltok iskolák bevásárlási lehetőségek vannak a közelben. Az udvarban ingyen lehet parkolni, a kapu mindig zárva van. Tároló és pince is jár hozzá. Az Otthon start programban is részt vesz (3%)
Referenciaszám: M314908

Hirdetés feltöltve: 2025. 12. 16. Utoljára módosítva: 2025. 12. 16.

2 szobás téglalakások ára Pécsett

Ebből az összehasonlításból megtudhatod, hogyan viszonyul a lakás ára a környékbeli téglalakások átlagos árához. Ez nem azt jelenti, hogy ennyivel olcsóbb vagy drágább, mint amennyit a lakás ér, hanem hogy ennyivel tér el a környékbeli átlagtól.

Ennek a m² ára
Pécs m² ár
562 e Ft
1036 e Ft 46%
Ennek az ára
Pécs átlagár
39.9 M Ft m Ft
56.7 m Ft 30%

Az ingatlan elhelyezkedése

Cím: Pécs, földszint

Eladó téglalakások a környékről

Eladó téglalakás
Eladó téglalakás

Pécs

69.89 M Ft
1 szoba
51 m2
Eladó téglalakás
Eladó téglalakás

Pécs

62.7 M Ft
2 szoba
46 m2
Eladó téglalakás
Eladó téglalakás

Pécs

70 M Ft
3 szoba
60 m2
Eladó téglalakás
Eladó téglalakás

Pécs

81.7 M Ft
4 szoba
86 m2
Eladó téglalakás
Eladó téglalakás

Pécs

7.9 M Ft
1 szoba
26 m2
Eladó téglalakás
Eladó téglalakás

Kozármisleny, Október 23. tér

60 M Ft
3 szoba
80 m2
Eladó téglalakás
Eladó téglalakás

Pécs, Szigeti külváros, Hungária utca

29.9 M Ft
1 szoba
41 m2
Eladó téglalakás
Eladó téglalakás

Pécs

62.698 M Ft
2 szoba
49 m2
Eladó téglalakás
Eladó téglalakás

Pécs

91.2 M Ft
4 szoba
96 m2
Eladó téglalakás
Eladó téglalakás

Pécs

90.38 M Ft
2 szoba
72 m2
Eladó téglalakás
Eladó téglalakás

Pécs

95.52 M Ft
3 szoba
62 m2
Eladó téglalakás
Eladó téglalakás

Pécs, Belváros, Papnövelde utca

22.9 M Ft
1 szoba
28 m2
Eladó téglalakás
Eladó téglalakás

Komló, Irinyi János utca

18.9 M Ft
2 szoba
54 m2
Eladó téglalakás
Eladó téglalakás

Kozármisleny, Október 23. tér

60 M Ft
3 szoba
80 m2
Eladó téglalakás
Eladó téglalakás

Pécs

95.521 M Ft
3 szoba
73 m2
Eladó téglalakás
Eladó téglalakás

Pécs

69.93 M Ft
2 szoba
54 m2
Eladó téglalakás
Eladó téglalakás

Pécs

74.77 M Ft
2 szoba
60 m2
Eladó téglalakás
Eladó téglalakás

Pécs

81.7 M Ft
4 szoba
86 m2
Eladó téglalakás
Eladó téglalakás

Pécs, Belváros, Papnövelde utca

22.9 M Ft
1 szoba
28 m2
Eladó téglalakás
Eladó téglalakás

Pécs

60.958 M Ft
2 szoba
45 m2
Eladó téglalakás
Eladó téglalakás

Pécs, Szigeti külváros, Hungária utca

29.9 M Ft
1 szoba
41 m2
Eladó téglalakás
Eladó téglalakás

Pécs

60.896 M Ft
2 szoba
48 m2
Eladó téglalakás
Eladó téglalakás

Pécs

62.7 M Ft
2 szoba
46 m2
Eladó téglalakás
Eladó téglalakás

Pécs

60.896 M Ft
2 szoba
48 m2

Falusi CSOK ingatlanok

Eladó családi ház
Eladó családi ház

Törtel

13.5 M Ft
5 szoba
74 m2
Eladó családi ház
Eladó családi ház

Ádánd

79 M Ft
4 szoba
140 m2
Eladó családi ház
Eladó családi ház

Dáka

69.125 M Ft
5 szoba
135 m2
Eladó családi ház
Eladó családi ház

Csemő

16 M Ft
2 szoba
46 m2
Eladó családi ház
Eladó családi ház

Bőny

19.5 M Ft
1 szoba
30 m2
Eladó családi ház
Eladó családi ház

Tápióság

30 M Ft
3 szoba
67 m2
Eladó ikerház
Eladó ikerház

Tápióbicske

28.5 M Ft
4 szoba
74 m2
Eladó családi ház
Eladó családi ház

Iszkáz

38.8 M Ft
5 + 1 szoba
190 m2