Metrodom

Eladó téglalakás
Pécs, Makár, Faludi Ferenc, földszint

+ 3 kép 1/6
160 040 000 Ft160.04 M Ft 1 270 159 Ft/m2
4 szoba
126 m2
földszint
építés éve:2025

Részletes adatok

Fűtés: Egyéb
Közmű: Víz, Gáz, Villany, Csatorna
Energetikai besorolás: Nem adta meg a hirdető

Az OTP Bank lakáshitel ajánlataFizetett hirdetés

+36 30 526
Burai Tünde
Pécsi Otthon

Érdekel az OTP Bank kedvezményes lakáshitel ajánlata? *

* A kérdésre „Igen” válasz bejelölése esetén, az „Üzenet küldése” gombra kattintva kijelentem, hogy az OTP Bank Nyrt. Adatkezelési tájékoztatójának tartalmát megismertem és tudomásul vettem.

Eladó téglalakás leírása

Pécs Egyetemvárosban, 700 m-re az orvosi egyetemtől 3 lakásos társasház épül, szintenként egy-egy lakás.

A meghirdetett lakás első emeleti, 126 m2-es, 30 m2 terasszal
Ára: 169.044.000 Ft
A lakás két bejárattal is rendelkezik, három lakóegység kialakítható, befektetésnek is kitűnő!

További lakások a házban:
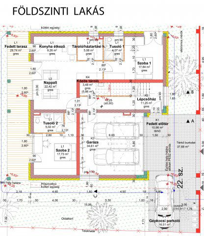
FÖLDSZINT (2 lakóegység kialakítható): 81,42 m2, 30 m2 terasz, 441 m2 kert
Ára: 125.548.000 Ft
TETŐTÉR (3 lakóegység kialakítható): 124,22 m2, hasznos: 90,48 m2, loggia 5,8 m2
Ára: 132.318.000 Ft
ALAPRAJZOK A FOTÓK KÖZÖTT!

A fűtést-hűtést hőszivattyú biztosítja, az ,,okos téglából" épült falakon 16 cm-es grafit szigetelés lesz

Átadás tervezett időpontja: 2026. tavasz.
A lakások belső kialakítása a vevő igényei szerint történik.
A lakáshoz garázs vásárolható bruttó 9 M Ft-ért, vagy felszíni autóbeálló 6 M Ft-ért.
Általános műszaki tartalom:
Hőszivattyú
“H” tarifa
Pth-30 x okos tégla
3 rtg. műanyag nyílászárók
16cm Grafit hőszigetelés oldalfalakon, nemesvakolt felülettel
Tetőtér/padlás 25 cm hőszigetelés
Elektromos redőny, szúnyogháló stb..
Várható energetika AA++

Hirdetés feltöltve: 2025. 11. 17. Utoljára módosítva: 2025. 11. 17.

4 szobás téglalakások ára Pécsett

Ebből az összehasonlításból megtudhatod, hogyan viszonyul a lakás ára a környékbeli téglalakások átlagos árához. Ez nem azt jelenti, hogy ennyivel olcsóbb vagy drágább, mint amennyit a lakás ér, hanem hogy ennyivel tér el a környékbeli átlagtól.

Ennek a m² ára
Pécs m² ár
1270 e Ft
1028 e Ft -24%
Ennek az ára
Pécs átlagár
160.04 M Ft m Ft
109 m Ft -47%

Az ingatlan elhelyezkedése

Cím: Pécs, Makár, Faludi Ferenc, földszint

Eladó téglalakások a környékről

Eladó téglalakás
Eladó téglalakás

Kozármisleny, Október 23. tér

60 M Ft
3 szoba
80 m2
Eladó téglalakás
Eladó téglalakás

Pécs

90.38 M Ft
2 szoba
72 m2
Eladó téglalakás
Eladó téglalakás

Pécs

55 M Ft
3 + 1 szoba
102 m2
Eladó téglalakás
Eladó téglalakás

Pécs, Belváros, Papnövelde utca

22.9 M Ft
1 szoba
28 m2
Eladó téglalakás
Eladó téglalakás

Pécs

70 M Ft
3 szoba
60 m2
Eladó téglalakás
Eladó téglalakás

Pécs

7.9 M Ft
1 szoba
26 m2
Eladó téglalakás
Eladó téglalakás

Pécs

51.345 M Ft
2 szoba
35 m2
Eladó téglalakás
Eladó téglalakás

Pécs

64.011 M Ft
2 szoba
52 m2
Eladó téglalakás
Eladó téglalakás

Pécs

69.89 M Ft
1 szoba
51 m2
Eladó téglalakás
Eladó téglalakás

Pécs

95.521 M Ft
3 szoba
73 m2
Eladó téglalakás
Eladó téglalakás

Pécs

7.9 M Ft
1 szoba
26 m2
Eladó téglalakás
Eladó téglalakás

Pécs

81.7 M Ft
4 szoba
86 m2
Eladó téglalakás
Eladó téglalakás

Pécs

62.7 M Ft
2 szoba
46 m2
Eladó téglalakás
Eladó téglalakás

Mohács

33 M Ft
5 szoba
110 m2
Eladó téglalakás
Eladó téglalakás

Pécs

91.2 M Ft
4 szoba
96 m2
Eladó téglalakás
Eladó téglalakás

Pécs

63.9 M Ft
2 szoba
47 m2
Eladó téglalakás
Eladó téglalakás

Pécs

60.896 M Ft
2 szoba
48 m2
Eladó téglalakás
Eladó téglalakás

Pécs

91.2 M Ft
4 szoba
96 m2
Eladó téglalakás
Eladó téglalakás

Mohács

79.9 M Ft
3 szoba
105 m2
Eladó téglalakás
Eladó téglalakás

Pécs

62.698 M Ft
2 szoba
49 m2
Eladó téglalakás
Eladó téglalakás

Kozármisleny, Október 23. tér

60 M Ft
3 szoba
80 m2
Eladó téglalakás
Eladó téglalakás

Pécs

81.7 M Ft
4 szoba
86 m2
Eladó téglalakás
Eladó téglalakás

Pécs, Szigeti külváros, Hungária utca

29.9 M Ft
1 szoba
41 m2
Eladó téglalakás
Eladó téglalakás

Pécs

81.7 M Ft
4 szoba
86 m2

Falusi CSOK ingatlanok

Eladó családi ház
Eladó családi ház

Vaszar

24.59 M Ft
3 szoba
115 m2
Eladó családi ház
Eladó családi ház

Újkígyós

19.99 M Ft
2 + 1 szoba
72 m2
Eladó családi ház
Eladó családi ház

Szil

25 M Ft
2 szoba
90 m2
Eladó családi ház
Eladó családi ház

Bakonybél

45 M Ft
2 szoba
110 m2
Eladó ikerház
Eladó ikerház

Bodajk

69.9 M Ft
5 szoba
108 m2
Eladó családi ház
Eladó családi ház

Bácsbokod

12.9 M Ft
3 szoba
90 m2
Eladó családi ház
Eladó családi ház

Kemeneshőgyész

6.9 M Ft
3 szoba
124 m2
Eladó családi ház
Eladó családi ház

Magyarszék

48.5 M Ft
3 + 1 szoba
86 m2