BAM Living

Eladó téglalakás
Pécs, földszint

+ 17 kép 1/20
39 900 000 Ft39.9 M Ft 561 972 Ft/m2
2 szoba
71 m2
földszint
építés éve:1940

Részletes adatok

Állapot: Felújítandó
Fűtés: Gázkonvektor
Energetikai besorolás: Nem adta meg a hirdető

Az OTP Bank lakáshitel ajánlataFizetett hirdetés

+36 20 938
Vincze László György
OTPIP - Pécs, Rákóczi út 19.

Érdekel az OTP Bank kedvezményes lakáshitel ajánlata? *

* A kérdésre „Igen” válasz bejelölése esetén, az „Üzenet küldése” gombra kattintva kijelentem, hogy az OTP Bank Nyrt. Adatkezelési tájékoztatójának tartalmát megismertem és tudomásul vettem.

Eladó téglalakás leírása

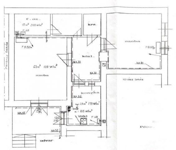
Földszinti 2 szobás 71 négyzetméteres tégla lakás eladó Pécs belvárosában!
A felújítandó udvari lakás nagy előnye, hogy csendes. A Széchenyi tértől gyalog 5 perc távolságra van. A Pécsi Orvostudományi Egyetem gyalog 10 percre. A Jogi-Közgazdasági egyetem 3 buszmegállóra van. Az utca felé ki lehet nyitni a falat, ezáltal irodának, rendelőnek, Stb. kiválóan használható. Befektetésnek is kiváló. Teljes közmű van. Boltok iskolák bevásárlási lehetőségek vannak a közelben. Az udvarban ingyen lehet parkolni, a kapu mindig zárva van. Tároló és pince is jár hozzá. Az Otthon start programban is részt vesz (3%)
Referenciaszám: M314908

39900000 Ft

Referencia szám: M314908

Hirdetés feltöltve: 2025. 10. 18. Utoljára módosítva: 2025. 12. 30.

2 szobás téglalakások ára Pécsett

Ebből az összehasonlításból megtudhatod, hogyan viszonyul a lakás ára a környékbeli téglalakások átlagos árához. Ez nem azt jelenti, hogy ennyivel olcsóbb vagy drágább, mint amennyit a lakás ér, hanem hogy ennyivel tér el a környékbeli átlagtól.

Ennek a m² ára
Pécs m² ár
562 e Ft
886 e Ft 37%
Ennek az ára
Pécs átlagár
39.9 M Ft m Ft
100.8 m Ft 60%

Az ingatlan elhelyezkedése

Cím: Pécs, földszint

Eladó téglalakások a környékről

Eladó téglalakás
Eladó téglalakás

Pécs, Belváros, Papnövelde utca

22.9 M Ft
1 szoba
28 m2
Eladó téglalakás
Eladó téglalakás

Pécs

70 M Ft
3 szoba
60 m2
Eladó téglalakás
Eladó téglalakás

Pécs

60.958 M Ft
2 szoba
45 m2
Eladó téglalakás
Eladó téglalakás

Pécs

81.7 M Ft
4 szoba
86 m2
Eladó téglalakás
Eladó téglalakás

Pécs

7.9 M Ft
1 szoba
26 m2
Eladó téglalakás
Eladó téglalakás

Pécs, Belváros, Papnövelde utca

22.9 M Ft
1 szoba
28 m2
Eladó téglalakás
Eladó téglalakás

Pécs

70 M Ft
3 szoba
60 m2
Eladó téglalakás
Eladó téglalakás

Pécs

62.698 M Ft
2 szoba
49 m2
Eladó téglalakás
Eladó téglalakás

Pécs

74.77 M Ft
2 szoba
60 m2
Eladó téglalakás
Eladó téglalakás

Pécs

69.89 M Ft
1 szoba
51 m2
Eladó téglalakás
Eladó téglalakás

Pécs

51.345 M Ft
2 szoba
35 m2
Eladó téglalakás
Eladó téglalakás

Pécs

60.896 M Ft
2 szoba
48 m2
Eladó téglalakás
Eladó téglalakás

Pécs

68.594 M Ft
2 szoba
52 m2
Eladó téglalakás
Eladó téglalakás

Kozármisleny, Október 23. tér

60 M Ft
3 szoba
80 m2
Eladó téglalakás
Eladó téglalakás

Pécs

63.588 M Ft
2 szoba
52 m2
Eladó téglalakás
Eladó téglalakás

Pécs

7.9 M Ft
1 szoba
26 m2
Eladó téglalakás
Eladó téglalakás

Kozármisleny, Október 23. tér

60 M Ft
3 szoba
80 m2
Eladó téglalakás
Eladó téglalakás

Pécs

63.9 M Ft
2 szoba
47 m2
Eladó téglalakás
Eladó téglalakás

Pécs

81.7 M Ft
4 szoba
86 m2
Eladó téglalakás
Eladó téglalakás

Pécs

90.38 M Ft
3 szoba
71 m2
Eladó téglalakás
Eladó téglalakás

Pécs

63.9 M Ft
2 szoba
47 m2
Eladó téglalakás
Eladó téglalakás

Pécs

81.7 M Ft
4 szoba
86 m2
Eladó téglalakás
Eladó téglalakás

Pécs

63.588 M Ft
2 szoba
52 m2
Eladó téglalakás
Eladó téglalakás

Pécs

91.2 M Ft
4 szoba
96 m2

Falusi CSOK ingatlanok

Eladó családi ház
Eladó családi ház

Kétbodony

84.9 M Ft
5 szoba
151 m2
Eladó családi ház
Eladó családi ház

Újlengyel

110 M Ft
4 szoba
121 m2
Eladó családi ház
Eladó családi ház

Balatonkeresztúr

119 M Ft
6 szoba
180 m2
Eladó családi ház
Eladó családi ház

Hövej

149.9 M Ft
4 szoba
115 m2
Eladó családi ház
Eladó családi ház

Vasszécseny

20 M Ft
2 szoba
139 m2
Eladó családi ház
Eladó családi ház

Vajszló

18 M Ft
2 szoba
91 m2
Eladó családi ház
Eladó családi ház

Magyarszék

48.5 M Ft
3 + 1 szoba
86 m2
Eladó családi ház
Eladó családi ház

Iváncsa

73.9 M Ft
1 + 3 szoba
97 m2