Pesti Házak

Eladó téglalakás
Pécs

+ 17 kép 1/20
39 900 000 Ft39.9 M Ft 561 972 Ft/m2
2 szoba
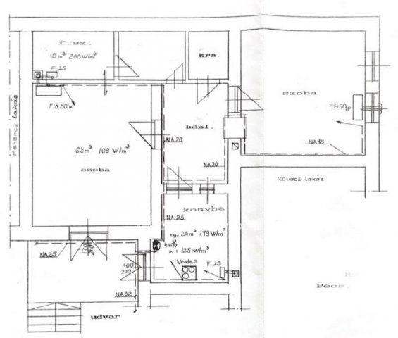
71 m2
építés éve:1940

Részletes adatok

Állapot: Felújítandó
Fűtés: Gázkonvektor
Energetikai besorolás: Nem adta meg a hirdető

Az OTP Bank lakáshitel ajánlataFizetett hirdetés

+36 20 938
Vincze László György
Pécs Király utca 75 - OTP Ingatlanpont Iroda

Érdekel az OTP Bank kedvezményes lakáshitel ajánlata? *

* A kérdésre „Igen” válasz bejelölése esetén, az „Üzenet küldése” gombra kattintva kijelentem, hogy az OTP Bank Nyrt. Adatkezelési tájékoztatójának tartalmát megismertem és tudomásul vettem.

Eladó téglalakás leírása

Földszinti 2 szobás 71 négyzetméteres tégla lakás eladó Pécs belvárosában!
A felújítandó udvari lakás nagy előnye, hogy csendes. A Széchenyi tértől gyalog 5 perc távolságra van. A Pécsi Orvostudományi Egyetem gyalog 10 percre. A Jogi-Közgazdasági egyetem 3 buszmegállóra van. Az utca felé ki lehet nyitni a falat, ezáltal irodának, rendelőnek, Stb. kiválóan használható. Befektetésnek is kiváló. Teljes közmű van. Boltok iskolák bevásárlási lehetőségek vannak a közelben. Az udvarban ingyen lehet parkolni, a kapu mindig zárva van. Tároló és pince is jár hozzá. Az Otthon start programban is részt vesz (3%)
Referenciaszám: M314908

Hirdetés feltöltve: 2025. 10. 16. Utoljára módosítva: 2026. 01. 13.

2 szobás téglalakások ára Pécsett

Ebből az összehasonlításból megtudhatod, hogyan viszonyul a lakás ára a környékbeli téglalakások átlagos árához. Ez nem azt jelenti, hogy ennyivel olcsóbb vagy drágább, mint amennyit a lakás ér, hanem hogy ennyivel tér el a környékbeli átlagtól.

Ennek a m² ára
Pécs m² ár
562 e Ft
891 e Ft 37%
Ennek az ára
Pécs átlagár
39.9 M Ft m Ft
99.1 m Ft 60%

Az ingatlan elhelyezkedése

Cím: Pécs

Eladó téglalakások a környékről

Eladó téglalakás
Eladó téglalakás

Pécs, Belváros, Papnövelde utca

22.9 M Ft
1 szoba
28 m2
Eladó téglalakás
Eladó téglalakás

Pécs

81.7 M Ft
4 szoba
86 m2
Eladó téglalakás
Eladó téglalakás

Pécs, Belváros, Papnövelde utca

22.9 M Ft
1 szoba
28 m2
Eladó téglalakás
Eladó téglalakás

Pécs

62.698 M Ft
2 szoba
49 m2
Eladó téglalakás
Eladó téglalakás

Pécs

69.89 M Ft
1 szoba
51 m2
Eladó téglalakás
Eladó téglalakás

Pécs

69.89 M Ft
1 szoba
51 m2
Eladó téglalakás
Eladó téglalakás

Pécs

60.958 M Ft
2 szoba
45 m2
Eladó téglalakás
Eladó téglalakás

Pécs

63.588 M Ft
2 szoba
52 m2
Eladó téglalakás
Eladó téglalakás

Kozármisleny, Október 23. tér

60 M Ft
3 szoba
80 m2
Eladó téglalakás
Eladó téglalakás

Pécs

90.38 M Ft
3 szoba
71 m2
Eladó téglalakás
Eladó téglalakás

Pécs

68.594 M Ft
2 szoba
52 m2
Eladó téglalakás
Eladó téglalakás

Pécs

81.7 M Ft
4 szoba
86 m2
Eladó téglalakás
Eladó téglalakás

Pécs

58.09 M Ft
2 szoba
45 m2
Eladó téglalakás
Eladó téglalakás

Pécs

74.77 M Ft
2 szoba
60 m2
Eladó téglalakás
Eladó téglalakás

Pécs, Szigeti külváros, Hungária utca

29.9 M Ft
1 szoba
41 m2
Eladó téglalakás
Eladó téglalakás

Mohács

79.9 M Ft
3 szoba
105 m2
Eladó téglalakás
Eladó téglalakás

Pécs

60.958 M Ft
2 szoba
45 m2
Eladó téglalakás
Eladó téglalakás

Pécs

91.2 M Ft
4 szoba
96 m2
Eladó téglalakás
Eladó téglalakás

Mohács

33 M Ft
5 szoba
110 m2
Eladó téglalakás
Eladó téglalakás

Pécs

63.9 M Ft
2 szoba
47 m2
Eladó téglalakás
Eladó téglalakás

Pécs

81.7 M Ft
4 szoba
86 m2
Eladó téglalakás
Eladó téglalakás

Pécs

63.9 M Ft
2 szoba
47 m2
Eladó téglalakás
Eladó téglalakás

Pécs

91.2 M Ft
4 szoba
96 m2
Eladó téglalakás
Eladó téglalakás

Pécs, Szigeti külváros, Hungária utca

29.9 M Ft
1 szoba
41 m2

Falusi CSOK ingatlanok

Eladó családi ház
Eladó családi ház

Emőd, Vasút utca

14.5 M Ft
2 szoba
60 m2
Eladó családi ház
Eladó családi ház

Lórév

190 M Ft
4 szoba
320 m2
Eladó családi ház
Eladó családi ház

Zalaszentmihály

29.9 M Ft
2 szoba
66 m2
Eladó családi ház
Eladó családi ház

Kocsola

7.5 M Ft
2 + 1 szoba
75 m2
Eladó családi ház
Eladó családi ház

Várong

15 M Ft
2 + 1 szoba
68 m2
Eladó családi ház
Eladó családi ház

Döröske

15.9 M Ft
1 szoba
40 m2
Eladó családi ház
Eladó családi ház

Baracs

68 M Ft
3 szoba
125 m2
Eladó családi ház
Eladó családi ház

Tiszatenyő

8.75 M Ft
2 + 1 szoba
80 m2