Kedves Felhasználónk! Rendszerfrissítés miatt az oldalunk 2026. február 9-én 12 órától várhatóan 20 óráig nem lesz elérhető. Köszönjük megértésed!
Aerogate Homes

Eladó téglalakás
Pécs

1/2
65 000 000 Ft65 M Ft 984 848 Ft/m2
2 szoba
66 m2
építés éve:1964

Részletes adatok

Fűtés: Távfűtés
Extrák: Lift
Energetikai besorolás: Nem adta meg a hirdető

Az OTP Bank lakáshitel ajánlataFizetett hirdetés

+36 30 276
Maratné Mészáros Edit
OTPIP - Pécs, Rákóczi út 19.

Érdekel az OTP Bank kedvezményes lakáshitel ajánlata? *

* A kérdésre „Igen” válasz bejelölése esetén, az „Üzenet küldése” gombra kattintva kijelentem, hogy az OTP Bank Nyrt. Adatkezelési tájékoztatójának tartalmát megismertem és tudomásul vettem.

Eladó téglalakás leírása

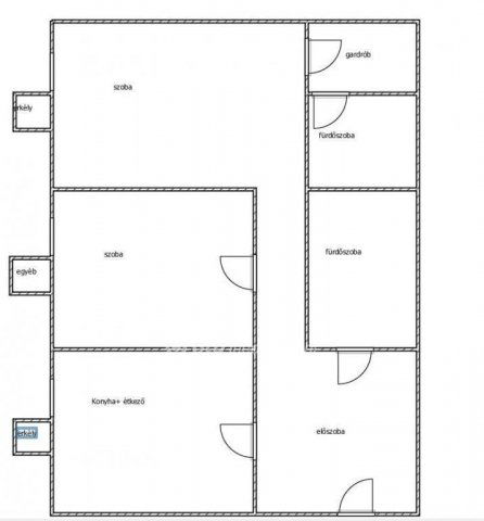
Pécs egyik legnépszerűbb városrészében, Uránvárosban, az Esztergár Lajos utcában kínálok eladásra egy 66nm-es, 7/2. emeleti, tágas, 2 szobás, 2 fürdőszobás, gardróbbal, konyha/étkezővel és előszobával rendelkező liftes társasházi lakást, amely jelenleg teljeskörű felújítás alatt áll.
A téglaépület második emeletén található ingatlan különleges adottságokkal rendelkezik: három erkélye bőséges természetes fényt biztosít, a távfűtés egyedi mérőórával működik, a kilátás utcai, a fényviszonyok pedig kifejezetten kedvezőek. Az épületben lift is található, a parkolás közterületen, ingyenesen megoldható.
A lakás elrendezése praktikus és kényelmes: két külön nyíló szoba, konyha?étkező, gardrób, valamint két fürdőszoba (az egyikben tusoló, a másikban kád) szolgálja a lakók kényelmét.
A felújítás során minden helyiség megújul, így a leendő tulajdonos gyakorlatilag új otthonba költözhet, garanciával. A felújítás befejezésének várható időpontja október vége, a megtekintés előzetes egyeztetéssel már most is lehetséges. A kész állapotról készült fényképek hamarosan elérhetők lesznek.
M314046

Referencia szám: M314046-ZE

Hirdetés feltöltve: 2025. 10. 10. Utoljára módosítva: 2026. 01. 13.

2 szobás téglalakások ára Pécsett

Ebből az összehasonlításból megtudhatod, hogyan viszonyul a lakás ára a környékbeli téglalakások átlagos árához. Ez nem azt jelenti, hogy ennyivel olcsóbb vagy drágább, mint amennyit a lakás ér, hanem hogy ennyivel tér el a környékbeli átlagtól.

Ennek a m² ára
Pécs m² ár
985 e Ft
1042 e Ft 5%
Ennek az ára
Pécs átlagár
65 M Ft m Ft
56.1 m Ft -16%

Az ingatlan elhelyezkedése

Cím: Pécs

Eladó téglalakások a környékről

Eladó téglalakás
Eladó téglalakás

Pécs

95.52 M Ft
3 szoba
62 m2
Eladó téglalakás
Eladó téglalakás

Pécs

69.89 M Ft
1 szoba
51 m2
Eladó téglalakás
Eladó téglalakás

Pécs

60.896 M Ft
2 szoba
48 m2
Eladó téglalakás
Eladó téglalakás

Pécs

90.38 M Ft
2 szoba
72 m2
Eladó téglalakás
Eladó téglalakás

Pécs

7.9 M Ft
1 szoba
26 m2
Eladó téglalakás
Eladó téglalakás

Pécs

51.345 M Ft
2 szoba
35 m2
Eladó téglalakás
Eladó téglalakás

Pécs

70 M Ft
3 szoba
60 m2
Eladó téglalakás
Eladó téglalakás

Pécs

91.2 M Ft
4 szoba
96 m2
Eladó téglalakás
Eladó téglalakás

Pécs

51.345 M Ft
2 szoba
35 m2
Eladó téglalakás
Eladó téglalakás

Mohács

79.9 M Ft
3 szoba
105 m2
Eladó téglalakás
Eladó téglalakás

Pécs

68.594 M Ft
2 szoba
52 m2
Eladó téglalakás
Eladó téglalakás

Pécs

60.958 M Ft
2 szoba
45 m2
Eladó téglalakás
Eladó téglalakás

Pécs

63.9 M Ft
2 szoba
47 m2
Eladó téglalakás
Eladó téglalakás

Pécs

90.38 M Ft
2 szoba
72 m2
Eladó téglalakás
Eladó téglalakás

Pécs

81.7 M Ft
4 szoba
86 m2
Eladó téglalakás
Eladó téglalakás

Pécs

74.77 M Ft
2 szoba
60 m2
Eladó téglalakás
Eladó téglalakás

Pécs

58.09 M Ft
2 szoba
45 m2
Eladó téglalakás
Eladó téglalakás

Pécs

81.7 M Ft
4 szoba
86 m2
Eladó téglalakás
Eladó téglalakás

Pécs, Szigeti külváros, Hungária utca

29.9 M Ft
1 szoba
41 m2
Eladó téglalakás
Eladó téglalakás

Pécs

63.9 M Ft
2 szoba
47 m2
Eladó téglalakás
Eladó téglalakás

Pécs

81.7 M Ft
4 szoba
86 m2
Eladó téglalakás
Eladó téglalakás

Pécs

69.93 M Ft
2 szoba
54 m2
Eladó téglalakás
Eladó téglalakás

Pécs

95.521 M Ft
3 szoba
73 m2
Eladó téglalakás
Eladó téglalakás

Pécs

62.698 M Ft
2 szoba
49 m2

Falusi CSOK ingatlanok

Eladó családi ház
Eladó családi ház

Jakabszállás

69.99 M Ft
1 + 4 szoba
91 m2
Eladó családi ház
Eladó családi ház

Szederkény

107.9 M Ft
6 szoba
224 m2
Eladó családi ház
Eladó családi ház

Balatonfenyves

149 M Ft
5 szoba
185 m2
Eladó családi ház
Eladó családi ház

Sellye

14.9 M Ft
4 szoba
135 m2
Eladó családi ház
Eladó családi ház

Bátmonostor

22.9 M Ft
3 szoba
82 m2
Eladó téglalakás
Eladó téglalakás

Balatonszemes

119.9 M Ft
2 szoba
81 m2
Eladó családi ház
Eladó családi ház

Üllés

35.5 M Ft
3 szoba
99 m2
Eladó családi ház
Eladó családi ház

Szomolya

57.85 M Ft
4 szoba
117 m2