Kedves Felhasználónk! Rendszerfrissítés miatt az oldalunk 2026. február 9-én 12 órától várhatóan 20 óráig nem lesz elérhető. Köszönjük megértésed!
Aerogate Homes

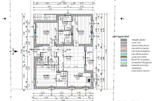
Eladó téglalakás
Pécs, földszint

+ 1 kép 1/4
101 430 000 Ft101.43 M Ft 1 179 419 Ft/m2
4 szoba
86 m2
földszint
építés éve:2024

Részletes adatok

Fűtés: Egyéb
Emelet: földszint
Energetikai besorolás: Nem adta meg a hirdető

Az OTP Bank lakáshitel ajánlataFizetett hirdetés

+36 20 938
Vincze László György
OTPIP - Pécs, Rákóczi út 19.

Érdekel az OTP Bank kedvezményes lakáshitel ajánlata? *

* A kérdésre „Igen” válasz bejelölése esetén, az „Üzenet küldése” gombra kattintva kijelentem, hogy az OTP Bank Nyrt. Adatkezelési tájékoztatójának tartalmát megismertem és tudomásul vettem.

Eladó téglalakás leírása

Baranya megye Pécs kedvelt részén, Egyetemváros és a belváros határán kínálunk eladásra ÚJ ÉPÍTÉSŰ lakásokat. Elhelyezkedésük és kialakításuk révén saját használatra, de kiadásra is kiválóan alkalamasak. A téglaépítésű lakások melegét padlófűtés biztosítja. Korszerű anyagok használata, kiváló, megbizható kivitelezés! Várható átadás ideje 2025. nyara.
A részletek megbeszélésére várom érdeklődő hívását!
Az OTP INGATLANPONT teljes körű ügyintézéssel áll az eladók és a vevők rendelkezésére! A megvásárolni kívánt ingatlan finanszírozásához a CSOK-pluszt, a Babaváró hitelt, a kedvezményes hitelkonstrukciókat helyben ingyenesen intézzük. Referenciaszám: M284291

101430000 Ft

Referencia szám: M284291

Hirdetés feltöltve: 2025. 10. 03. Utoljára módosítva: 2026. 02. 06.

4 szobás téglalakások ára Pécsett

Ebből az összehasonlításból megtudhatod, hogyan viszonyul a lakás ára a környékbeli téglalakások átlagos árához. Ez nem azt jelenti, hogy ennyivel olcsóbb vagy drágább, mint amennyit a lakás ér, hanem hogy ennyivel tér el a környékbeli átlagtól.

Ennek a m² ára
Pécs m² ár
1179 e Ft
1036 e Ft -14%
Ennek az ára
Pécs átlagár
101.43 M Ft m Ft
111.2 m Ft 9%

Az ingatlan elhelyezkedése

Cím: Pécs, földszint

Eladó téglalakások a környékről

Eladó téglalakás
Eladó téglalakás

Pécs

62.7 M Ft
2 szoba
46 m2
Eladó téglalakás
Eladó téglalakás

Pécs, Szigeti külváros, Hungária utca

29.9 M Ft
1 szoba
41 m2
Eladó téglalakás
Eladó téglalakás

Pécs

90.38 M Ft
2 szoba
72 m2
Eladó téglalakás
Eladó téglalakás

Pécs

69.93 M Ft
2 szoba
54 m2
Eladó téglalakás
Eladó téglalakás

Pécs

69.89 M Ft
1 szoba
51 m2
Eladó téglalakás
Eladó téglalakás

Pécs

63.904 M Ft
2 szoba
52 m2
Eladó téglalakás
Eladó téglalakás

Pécs

58.09 M Ft
2 szoba
45 m2
Eladó téglalakás
Eladó téglalakás

Pécs

74.77 M Ft
2 szoba
60 m2
Eladó téglalakás
Eladó téglalakás

Pécs

81.7 M Ft
4 szoba
86 m2
Eladó téglalakás
Eladó téglalakás

Pécs

60.896 M Ft
2 szoba
48 m2
Eladó téglalakás
Eladó téglalakás

Pécs

69.89 M Ft
1 szoba
51 m2
Eladó téglalakás
Eladó téglalakás

Pécs

70 M Ft
3 szoba
60 m2
Eladó téglalakás
Eladó téglalakás

Pécs

91.2 M Ft
4 szoba
96 m2
Eladó téglalakás
Eladó téglalakás

Pécs

68.594 M Ft
2 szoba
52 m2
Eladó téglalakás
Eladó téglalakás

Pécs

70 M Ft
3 szoba
60 m2
Eladó téglalakás
Eladó téglalakás

Pécs

91.2 M Ft
4 szoba
96 m2
Eladó téglalakás
Eladó téglalakás

Pécs

51.345 M Ft
2 szoba
35 m2
Eladó téglalakás
Eladó téglalakás

Pécs

90.38 M Ft
3 szoba
71 m2
Eladó téglalakás
Eladó téglalakás

Pécs

60.896 M Ft
2 szoba
48 m2
Eladó téglalakás
Eladó téglalakás

Pécs

81.7 M Ft
4 szoba
86 m2
Eladó téglalakás
Eladó téglalakás

Pécs

62.698 M Ft
2 szoba
49 m2
Eladó téglalakás
Eladó téglalakás

Pécs

90.38 M Ft
3 szoba
71 m2
Eladó téglalakás
Eladó téglalakás

Pécs

63.9 M Ft
2 szoba
47 m2
Eladó téglalakás
Eladó téglalakás

Pécs

64.011 M Ft
2 szoba
52 m2

Falusi CSOK ingatlanok

Eladó családi ház
Eladó családi ház

Vajszló

21.49 M Ft
2 szoba
91 m2
Eladó családi ház
Eladó családi ház

Lippó

10 M Ft
2 + 3 szoba
95 m2
Eladó családi ház
Eladó családi ház

Újhartyán

89.9 M Ft
4 szoba
99 m2
Eladó téglalakás
Eladó téglalakás

Balatonszemes

123.3 M Ft
2 szoba
70 m2
Eladó családi ház
Eladó családi ház

Csemő

36.6 M Ft
1 szoba
48 m2
Eladó családi ház
Eladó családi ház

Szabadbattyán

67.5 M Ft
5 szoba
180 m2
Eladó családi ház
Eladó családi ház

Kislippó

16 M Ft
3 szoba
100 m2
Eladó családi ház
Eladó családi ház

Kesztölc

129.9 M Ft
8 szoba
210 m2