Astora Márvány8

Eladó téglalakás
Pápa

+ 17 kép 1/20
68 900 000 Ft68.9 M Ft 471 918 Ft/m2
3 + 1 szoba
146 m²
építés éve:1989

Részletes adatok

Állapot: Újszerű
Fűtés: Gázkazán
Parkolás: Garázs
Energetikai besorolás: Nem adta meg a hirdető
Zenga Premier

Friss hirdetések, amiket nem találsz meg más ingatlankereső portálon.

Fedezd fel elsőként a Zenga Premier címkés eladó ingatlanokat!

További részletek a zenga.hu-n

Az OTP Bank lakáshitel ajánlataFizetett hirdetés

+36 70 315
Verrasztó Edina Irén
referens

Érdekel az OTP Bank kedvezményes lakáshitel ajánlata? *

* A kérdésre „Igen” válasz bejelölése esetén, az „Üzenet küldése” gombra kattintva kijelentem, hogy az OTP Bank Nyrt. Adatkezelési tájékoztatójának tartalmát megismertem és tudomásul vettem.

Eladó téglalakás leírása

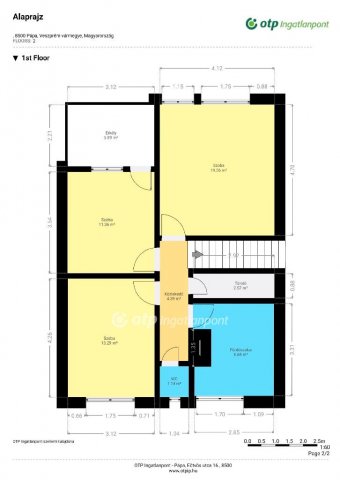
Hívjon és vásárolja meg új otthonát! Kiváló BEFEKTETÉS ÉS LOKÁCIÓ! Eladásra kínálok Pápa csendes, kedvelt, kertvárosias részén, Bocsor városrészen egy 146 m2 alapterületű, felújított, 3 szoba + nappalis 1989-ben épült, társas házi sorházat, amelyhez saját garázs, privát udvar, előkert, tárolók és tartoznak. Az ingatlan adottságaiból kifolyólag kiválóan alkalmas befektetési célra: akár vendégházról, panzióról vagy lakás kiadásról, vagy vállalkozásról legyen szó. Ideális választás nagyobb család számára, de elrendezése miatt több generáció együttélésére is alkalmas lehet. A bejárat az udvar felől található teraszon keresztül vagy az utcafront felől, illetve garázson keresztül. Az ingatlan elrendezése rendkívül praktikus, tágas terekhez terasz és erkély kapcsolódik. Az alsó szinten előszoba, közlekedő, konyha és étkező, kamra, nappali, fürdőszoba és WC, kazánház, mosókonyha valamint egy nagyobb közlekedőn át megközelíthető garázs található. A földszintről szép fa lépcsőn juthatunk az emeletre. Az igazán otthonos felső szinten, egy nagy erkély kapcsolatos, világos szoba és 2 másik szoba található, valamint fürdőszoba, WC. A kert szabályos téglalap alakú, parkosított, igényesen kialakított. A házat egész nap körbesüti a nap, a gondozott, zárt kert ideális pihenéshez, családi programokhoz vagy kertészkedéshez. Téli hideg napokon a ház melegéről kondenzációs gázkazán gondoskodik, radiátoros hőleadókkal. A lakás egyik legnagyobb értéke, hogy felújított. Az ingatlan jó állapotú, folyamatosan karbantartott, így akár rövid időn belül költözhető. A nyílászárók korszerű, hőszigetelt szerkezetek, redőnyökkel felszerelve, így jelentősen hozzájárulnak az ingatlan kedvező fenntartási költségeihez. Az ingatlan előkerttel új kerítéssel rendelkezik. A környezet nyugodt, csendes, kertvárosias hangulatú, rendezett és gondozott lakókörnyezetet kínál, amely ideális választás mindazok számára, akik szeretnének elvonulni a város zajától, ugyanakkor mégis jól használható, modern otthont keresnek. Az otthonosan kialakított családi házat ajánlom mindazon vevők részére, akik egy szép, családias, nyugodt kertvárosi részen kívánnak élni, távol a város zajától. Többgenerációs családoknak, vállalkozóknak, befektetőknek, akik egy tágas, több igénynek is megfelelően kialakítható ingatlanra vágynak. Az OTP Ingatlanpont teljes körű ügyintézéssel áll az eladók és a vevők rendelkezésére. A kínálatunkból választott ingatlan finanszírozásához kedvezményes hitelkonstrukciót kínálunk. Az adásvételi szerződés megkötéséhez igény szerint megbízható ügyvédi közreműködést biztosítunk, és segítséget nyújtunk az adásvételhez kapcsolódó ügyek intézéséhez is. Az ingatlan megfelel a fix 3%-os Otthon Start Hitelprogram feltételeinek! Az ingatlanról készült alaprajz, illetve fényképfelvételek az OTP ingatlanpont szellemi tulajdonát képezik. Amennyiben felkeltette érdeklődését az általam kínált ingatlan, keressen bizalommal! Ne habozzon tovább, hiszen ez a ház valóban páratlan lehetőséget kínál! SZEREZZE MEG EZT SZÉP OTTHONT, HÍVJA MOST A MEGADOTT TELEFONSZÁMOT

Hirdetés feltöltve: 2026. 04. 26.

4 szobás téglalakások ára Pápán

Ebből az összehasonlításból megtudhatod, hogyan viszonyul a lakás ára a környékbeli téglalakások átlagos árához. Ez nem azt jelenti, hogy ennyivel olcsóbb vagy drágább, mint amennyit a lakás ér, hanem hogy ennyivel tér el a környékbeli átlagtól.

Ennek a m² ára
Pápa m² ár
472 e Ft
754 e Ft 37%
Ennek az ára
Pápa átlagár
68.9 M Ft m Ft
68.3 m Ft -1%

Az ingatlan elhelyezkedése

Cím: Pápa

Eladó téglalakások a környékről

Balatonfüred
Eladó téglalakás

Balatonfüred

436.916 M Ft
3 szoba
142 m²
Pápa, Határ u. 14-16
Eladó téglalakás

Pápa

42.5 M Ft
1 + 1 szoba
47 m²
Balatonakarattya
Eladó téglalakás

Balatonakarattya

159.487 M Ft
2 szoba
60 m²
Balatonakarattya
Eladó téglalakás

Balatonakarattya

205.384 M Ft
3 szoba
78 m²
Balatonakarattya
Eladó téglalakás

Balatonakarattya

160.147 M Ft
2 szoba
61 m²
Balatonakarattya
Eladó téglalakás

Balatonakarattya

163.576 M Ft
2 szoba
62 m²
Pápa
Eladó téglalakás

Pápa

51.5 M Ft
2 + 1 szoba
60 m²
Balatonakarattya
Eladó téglalakás

Balatonakarattya

213.055 M Ft
3 szoba
81 m²
Balatonfüred
Eladó téglalakás

Balatonfüred

435.728 M Ft
3 szoba
148 m²
Pápa
Eladó téglalakás

Pápa

49.5 M Ft
2 + 1 szoba
60 m²
Pápa, Határ u. 14-16
Eladó téglalakás

Pápa

50.95 M Ft
2 + 1 szoba
60 m²
Balatonakarattya
Eladó téglalakás

Balatonakarattya

170.637 M Ft
2 szoba
65 m²
Pápa
Eladó téglalakás

Pápa

90 M Ft
4 szoba
130 m²
Pápa, Határ utca 14-16
Eladó téglalakás

Pápa

44.5 M Ft
1 + 1 szoba
51 m²
Pápa
Eladó téglalakás

Pápa

37.445 M Ft
1 + 1 szoba
41 m²
Pápa
Eladó téglalakás

Pápa

317.5 M Ft
30 szoba
1175 m²
Balatonakarattya
Eladó téglalakás

Balatonakarattya

239.192 M Ft
3 szoba
92 m²
Pápa
Eladó téglalakás

Pápa

14.99 M Ft
1 szoba
43 m²
Balatonfüred
Eladó téglalakás

Balatonfüred

184 M Ft
4 szoba
119 m²
Pápa, Határ u. 14-16
Eladó téglalakás

Pápa

40.95 M Ft
1 + 2 szoba
45 m²
Balatonfüred
Eladó téglalakás

Balatonfüred

165.06 M Ft
2 szoba
60 m²
Pápa
Eladó téglalakás

Pápa

13.9 M Ft
1 szoba
33 m²
Balatonfüred
Eladó téglalakás

Balatonfüred

399 M Ft
3 szoba
120 m²
Balatonfüred
Eladó téglalakás

Balatonfüred

217 M Ft
4 szoba
168 m²

Falusi CSOK ingatlanok

Törtel
Eladó családi ház

Törtel

55 M Ft
3 + 1 szoba
120 m²
Jakabszállás
Eladó családi ház

Jakabszállás

105 M Ft
6 szoba
180 m²
Sásd
Eladó családi ház

Sásd

35.9 M Ft
4 + 1 szoba
71 m²
Törtel
Eladó családi ház

Törtel

33 M Ft
3 szoba
100 m²
Kilimán
Eladó családi ház

Kilimán

69.9 M Ft
3 szoba
130 m²
Somlójenő
Eladó családi ház

Somlójenő

64.9 M Ft
4 szoba
221 m²
Perkáta
Eladó családi ház

Perkáta

38.95 M Ft
1 + 2 szoba
72 m²
Bükkszék
Eladó családi ház

Bükkszék

78.9 M Ft
2 + 1 szoba
160 m²