Oasis Residence

Eladó téglalakás
Nyíregyháza, földszint

+ 10 kép 1/13
36 500 000 Ft36.5 M Ft 986 486 Ft/m2
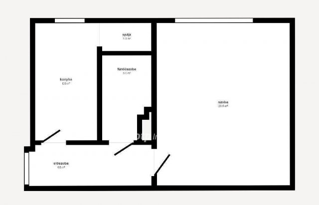
1 szoba
37 m²
földszint
építés éve:1980

Részletes adatok

Állapot: Átlagos
Fűtés: Gázkonvektor
Emelet: földszint
Energetikai besorolás: Nem adta meg a hirdető

Az OTP Bank lakáshitel ajánlataFizetett hirdetés

+36 70 597
Konc Richárd
OTP Ingatlanpont

Érdekel az OTP Bank kedvezményes lakáshitel ajánlata? *

* A kérdésre „Igen” válasz bejelölése esetén, az „Üzenet küldése” gombra kattintva kijelentem, hogy az OTP Bank Nyrt. Adatkezelési tájékoztatójának tartalmát megismertem és tudomásul vettem.

Eladó téglalakás leírása

Nyíregyháza belvárosában, a Bessenyei tér kulturális negyedében eladó egy földszinti, 1 szobás, 37 nm-es tégla lakás.

Az ingatlan elhelyezkedése kiváló: a belváros szívében található, így minden fontos közintézmény, boltok, iskola, óvoda és a tömegközlekedés néhány perc sétával elérhető. A ház előtt szabadidőpark biztosít lehetőséget sportolásra és futásra.

A lakás fűtéséről gázkonvektor gondoskodik, elrendezése időseknek, egyedülállóknak és egyetemistáknak egyaránt ideális. Az ingatlan tehermentes és azonnal költözhető.

Kivételes elhelyezkedésének köszönhetően befektetésnek is remek választás.

OTP Banki hátterünknek köszönhetően finanszírozási igényekben (pl. Otthon Start Hitelprogram, Babaváró, Falusi CSOK, CSOK Plusz, Lakáshitel, Személyi kölcsön stb.), illetve biztosítások tekintetében is díjmentesen, soron kívüli ügyintézéssel segítem ügyfeleim! Referenciaszám: M310747

Hirdetés feltöltve: 2026. 04. 11. Utoljára módosítva: 2026. 04. 11.

1 szobás téglalakások ára Nyíregyházán

Ebből az összehasonlításból megtudhatod, hogyan viszonyul a lakás ára a környékbeli téglalakások átlagos árához. Ez nem azt jelenti, hogy ennyivel olcsóbb vagy drágább, mint amennyit a lakás ér, hanem hogy ennyivel tér el a környékbeli átlagtól.

Ennek a m² ára
Nyíregyháza m² ár
986 e Ft
1023 e Ft 4%
Ennek az ára
Nyíregyháza átlagár
36.5 M Ft m Ft
41.6 m Ft 12%

Az ingatlan elhelyezkedése

Cím: Nyíregyháza, földszint

Eladó téglalakások a környékről

Nyíregyháza
Eladó téglalakás

Nyíregyháza

59.9 M Ft
3 + 1 szoba
120 m²
Nyíregyháza
Eladó téglalakás

Nyíregyháza

55.9 M Ft
2 szoba
74 m²
Nyíregyháza
Eladó téglalakás

Nyíregyháza

72.5 M Ft
3 + 1 szoba
170 m²
Nyíregyháza
Eladó téglalakás

Nyíregyháza

55.9 M Ft
2 szoba
74 m²
Nyíregyháza
Eladó téglalakás

Nyíregyháza

72.5 M Ft
3 + 1 szoba
170 m²
Nyíregyháza
Eladó téglalakás

Nyíregyháza

59.9 M Ft
3 + 1 szoba
120 m²
Nyíregyháza
Eladó téglalakás

Nyíregyháza

73 M Ft
2 + 1 szoba
67 m²
Tiszavasvári
Eladó téglalakás

Tiszavasvári

6.99 M Ft
2 szoba
63 m²
Nyíregyháza
Eladó téglalakás

Nyíregyháza

64.9 M Ft
4 szoba
120 m²
Nyíregyháza
Eladó téglalakás

Nyíregyháza

77 M Ft
3 szoba
61 m²
Nyíregyháza
Eladó téglalakás

Nyíregyháza

64.9 M Ft
4 szoba
120 m²
Nyíregyháza
Eladó téglalakás

Nyíregyháza

79.99 M Ft
4 szoba
152 m²
Nyíregyháza
Eladó téglalakás

Nyíregyháza

77 M Ft
3 szoba
61 m²
Nyíregyháza
Eladó téglalakás

Nyíregyháza

77.5 M Ft
4 szoba
120 m²
Nyíregyháza
Eladó téglalakás

Nyíregyháza

36 M Ft
2 szoba
58 m²
Nyíregyháza
Eladó téglalakás

Nyíregyháza

43.5 M Ft
3 + 1 szoba
79 m²
Nyíregyháza
Eladó téglalakás

Nyíregyháza

43.5 M Ft
3 + 1 szoba
79 m²
Nyíregyháza
Eladó téglalakás

Nyíregyháza

43.5 M Ft
2 + 2 szoba
79 m²
Nyíregyháza
Eladó téglalakás

Nyíregyháza

54.5 M Ft
3 szoba
67 m²
Nyíregyháza
Eladó téglalakás

Nyíregyháza

55.5 M Ft
2 szoba
78 m²
Nyíregyháza
Eladó téglalakás

Nyíregyháza

77.5 M Ft
4 szoba
120 m²
Nyíregyháza
Eladó téglalakás

Nyíregyháza

73 M Ft
4 szoba
67 m²
Tiszavasvári
Eladó téglalakás

Tiszavasvári

19.5 M Ft
3 szoba
61 m²
Nyíregyháza
Eladó téglalakás

Nyíregyháza

43.5 M Ft
2 + 2 szoba
79 m²

Falusi CSOK ingatlanok

Bag
Eladó családi ház

Bag

16.9 M Ft
6 szoba
160 m²
Szentmártonkáta
Eladó családi ház

Szentmártonkáta

95 M Ft
5 + 1 szoba
152 m²
Dunatetétlen
Eladó családi ház

Dunatetétlen

37 M Ft
2 szoba
110 m²
Pécsvárad
Eladó családi ház

Pécsvárad

189 M Ft
7 szoba
618 m²
Balatonszemes
Eladó téglalakás

Balatonszemes

123.3 M Ft
2 szoba
70 m²
Földeák, Béke utca
Eladó családi ház

Földeák

86 M Ft
7 szoba
357 m²
Nyáregyháza
Eladó családi ház

Nyáregyháza

15.9 M Ft
2 szoba
39 m²
Tápióbicske
Eladó ikerház

Tápióbicske

93.5 M Ft
7 szoba
136 m²