Oasis Residence

Eladó téglalakás
Nyíregyháza, földszint

+ 17 kép 1/20
112 800 000 Ft112.8 M Ft 1 151 020 Ft/m2
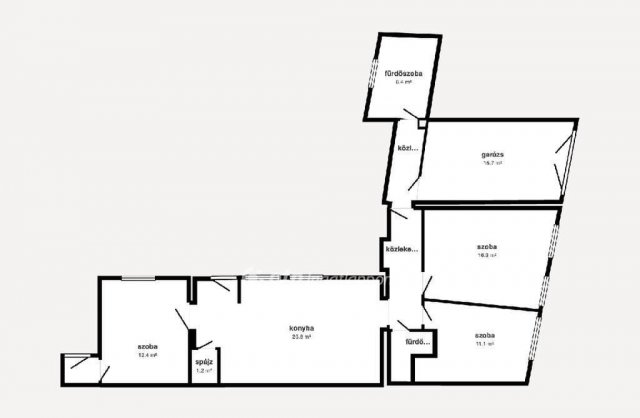
3 szoba
98 m²
földszint
építés éve:2017

Részletes adatok

Állapot: Átlagos
Fűtés: Gázkonvektor
Emelet: földszint
Energetikai besorolás: Nem adta meg a hirdető

Az OTP Bank lakáshitel ajánlataFizetett hirdetés

+36 30 519
Erdei Milán
OTPIP Nyíregyháza Hunyadi u.

Érdekel az OTP Bank kedvezményes lakáshitel ajánlata? *

* A kérdésre „Igen” válasz bejelölése esetén, az „Üzenet küldése” gombra kattintva kijelentem, hogy az OTP Bank Nyrt. Adatkezelési tájékoztatójának tartalmát megismertem és tudomásul vettem.

Eladó téglalakás leírása

Eladó tágas, belső udvaros téglalakás Nyíregyháza belvárosának közelében

Nyíregyháza egyik keresett részén, a Központi városrészben, a belvárostól mindössze 5 perc sétatávolságra kínálunk megvételre egy 98 nm alapterületű, 3 szobás, kiváló elosztású téglalakást.
Az ingatlan 2017-ben épült, külső homlokzata szigetelt, belső terei rendezettek, folyamatosan karbantartottak. A lakás világos, tágas helyiségekkel rendelkezik, elrendezése praktikus, így kényelmes otthont biztosít akár családok számára is. Azonnal költözhető, nem igényel felújítást.
A lakás egyik legnagyobb előnye a tágas konyha?étkező, amely ideális a mindennapi használatra és a közös étkezésekhez.
A fűtést gázkazán biztosít.
Különleges kényelmi megoldás, hogy a garázsból közvetlen bejárás nyílik a lakásba, ami ritka és rendkívül praktikus megoldás. Az ingatlanhoz egy 180 nm-es saját udvar is tartozik, amely nyugodt, csendes környezetet biztosít pihenéshez vagy családi programokhoz.
A lakóközösség rendezett, kulturált, a szomszédság kifejezetten jó.
A bútorok megegyezés szerint a vételár részét képezhetik, így akár teljes berendezéssel is megvásárolható az ingatlan.
Főbb adatok:
Építés éve: 2017
Alapterület: 98 nm
Szobaszám: 3
Fűtés: gázkazán
Szerkezet: tégla, szigetelt homlokzat
Saját udvar: 180 nm
Garázs: van, közvetlen bejárással a lakásba
Otthon Start Program: igen
Elhelyezkedés:
Belváros: 5 perc sétára
Iskola: 2 perc sétatávolságra
Üzletek, boltok, szolgáltatások a közelben
Kiváló közlekedési lehetőségek, buszmegálló szintén pár perc távolságra van.
Az ingatlan ideális választás családok számára, de befektetésnek is kiváló, elhelyezkedésének köszönhetően könnyen és jól kiadható.
Amennyiben egy tágas, jó elosztású, központi elhelyezkedésű, saját udvarral és garázzsal rendelkező, azonnal költözhető lakást keres Nyíregyházán, ezt az ingatlant érdemes személyesen is megtekinteni.
OTP Banki hátterünknek köszönhetően finanszírozási igényekben (pl. Otthon Start Hitelprogram, Babaváró, Falusi CSOK, CSOK Plusz, Lakáshitel, Személyi kölcsön stb.), illetve biztosítások tekintetében is díjmentesen, soron kívüli ügyintézéssel segítem ügyfeleim! Referenciaszám: M321313

Hirdetés feltöltve: 2026. 04. 05. Utoljára módosítva: 2026. 04. 08.

3 szobás téglalakások ára Nyíregyházán

Ebből az összehasonlításból megtudhatod, hogyan viszonyul a lakás ára a környékbeli téglalakások átlagos árához. Ez nem azt jelenti, hogy ennyivel olcsóbb vagy drágább, mint amennyit a lakás ér, hanem hogy ennyivel tér el a környékbeli átlagtól.

Ennek a m² ára
Nyíregyháza m² ár
1151 e Ft
877 e Ft -31%
Ennek az ára
Nyíregyháza átlagár
112.8 M Ft m Ft
62.6 m Ft -80%

Az ingatlan elhelyezkedése

Cím: Nyíregyháza, földszint

Eladó téglalakások a környékről

Nyíregyháza
Eladó téglalakás

Nyíregyháza

72.5 M Ft
3 + 1 szoba
170 m²
Nyíregyháza
Eladó téglalakás

Nyíregyháza

73 M Ft
2 + 1 szoba
67 m²
Nyíregyháza
Eladó téglalakás

Nyíregyháza

77 M Ft
3 szoba
61 m²
Nyíregyháza
Eladó téglalakás

Nyíregyháza

53.7 M Ft
3 szoba
83 m²
Nyíregyháza
Eladó téglalakás

Nyíregyháza

39.9 M Ft
2 szoba
67 m²
Nyíregyháza
Eladó téglalakás

Nyíregyháza

36 M Ft
2 szoba
58 m²
Nyíregyháza
Eladó téglalakás

Nyíregyháza

84.9 M Ft
4 szoba
152 m²
Nyíregyháza
Eladó téglalakás

Nyíregyháza

77.5 M Ft
4 szoba
120 m²
Nyíregyháza
Eladó téglalakás

Nyíregyháza

32 M Ft
1 szoba
36 m²
Nyíregyháza
Eladó téglalakás

Nyíregyháza

39.9 M Ft
2 szoba
67 m²
Nyíregyháza
Eladó téglalakás

Nyíregyháza

53.7 M Ft
3 szoba
83 m²
Nyíregyháza
Eladó téglalakás

Nyíregyháza

69.8 M Ft
4 szoba
92 m²
Nyíregyháza
Eladó téglalakás

Nyíregyháza

73 M Ft
2 + 1 szoba
67 m²
Nyíregyháza, Örökösföld, Törzs utca 2
Eladó téglalakás

Nyíregyháza

67.9 M Ft
3 szoba
71 m²
Nyíregyháza, Örökösföld, Törzs utca 2
Eladó téglalakás

Nyíregyháza

67.9 M Ft
3 szoba
71 m²
Nyíregyháza
Eladó téglalakás

Nyíregyháza

69.8 M Ft
4 szoba
92 m²
Nyíregyháza
Eladó téglalakás

Nyíregyháza

55.9 M Ft
2 szoba
74 m²
Nyíregyháza
Eladó téglalakás

Nyíregyháza

43.5 M Ft
2 + 2 szoba
79 m²
Nyíregyháza
Eladó téglalakás

Nyíregyháza

77.5 M Ft
4 szoba
120 m²
Nyíregyháza
Eladó téglalakás

Nyíregyháza

79.99 M Ft
4 szoba
152 m²
Nyíregyháza
Eladó téglalakás

Nyíregyháza

105 M Ft
4 szoba
150 m²
Nyíregyháza
Eladó téglalakás

Nyíregyháza

43.5 M Ft
3 + 1 szoba
79 m²
Nyíregyháza, Örökösföld, Törzs utca 2
Eladó téglalakás

Nyíregyháza

74.9 M Ft
3 szoba
75 m²
Nyíregyháza
Eladó téglalakás

Nyíregyháza

99 M Ft
7 szoba
218 m²

Falusi CSOK ingatlanok

Somlójenő
Eladó családi ház

Somlójenő

64.9 M Ft
4 szoba
221 m²
Bag
Eladó ikerház

Bag

93 M Ft
3 szoba
67 m²
Kaposgyarmat
Eladó családi ház

Kaposgyarmat

695 M Ft
6 szoba
610 m²
Marcalgergelyi
Eladó családi ház

Marcalgergelyi

31 M Ft
2 + 1 szoba
120 m²
Apaj
Eladó családi ház

Apaj

52.9 M Ft
3 szoba
70 m²
Hegyeshalom, Margaréta utca 12
Eladó téglalakás

Hegyeshalom

50.09 M Ft
2 szoba
43 m²
Nagykarácsony
Eladó családi ház

Nagykarácsony

34.9 M Ft
3 szoba
112 m²
Perőcsény
Eladó családi ház

Perőcsény

55.5 M Ft
4 + 1 szoba
128 m²