Kedves Felhasználónk! Rendszerfrissítés miatt az oldalunk 2026. február 9-én 12 órától várhatóan 20 óráig nem lesz elérhető. Köszönjük megértésed!
BAM Living

Eladó téglalakás
Nyíregyháza, 1. emelet

+ 17 kép 1/20
58 500 000 Ft58.5 M Ft 1 044 643 Ft/m2
3 szoba
56 m2
1. emelet
építés éve:2020

Részletes adatok

Telekméret: 56 m2
Fűtés: Gázkazán
Emelet: 1. emelet
Parkolás: Kocsibeálló
Közmű: Víz, Gáz, Villany, Csatorna, Szélessáv
Energetikai besorolás: Nem adta meg a hirdető

Az OTP Bank lakáshitel ajánlataFizetett hirdetés

+36 30 983
Reichert Róbert
Smile Ingatlaniroda

Érdekel az OTP Bank kedvezményes lakáshitel ajánlata? *

* A kérdésre „Igen” válasz bejelölése esetén, az „Üzenet küldése” gombra kattintva kijelentem, hogy az OTP Bank Nyrt. Adatkezelési tájékoztatójának tartalmát megismertem és tudomásul vettem.

Eladó téglalakás leírása

ELADÓ LAKÁS – NYÍREGYHÁZA BELVÁROS – BÚTOROZOTT, BÉRLŐVEL, BEFEKTETŐKNEK IDEÁLIS!

FŐ ELŐNYÖK:
• Újszerű, fiatalos lakás a belváros közelében
• Bútorozott, gépesített – a vételár tartalmazza
• Udvari beálló a vételárban, erkélyes kialakítás
• Modern fűtés: kondenzációs kazán + radiátor + padlófűtés
• Jelenleg is megbízható bérlő lakja, aki legalább még 2 évig maradna

Ez a lakás kiváló választás mind befektetőknek, mind azoknak, akik a belváros közelében, kényelmes, azonnal költözhető otthont keresnek modern műszaki tartalommal és alacsony fenntartási költségekkel.

RÉSZLETES LEÍRÁS

A lakás társasházi környezetben, a városközpont közelében helyezkedik el, rendezett, zárt udvarral és udvari beállási lehetőséggel.

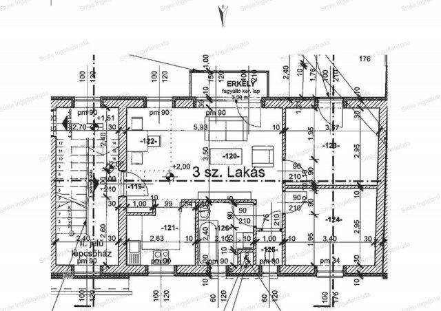
Az ingatlan típusa „lakás”, újszerű állapotú, egy szinten helyezkedik el. A lakás nettó alapterülete 57,79 m², redukált alapterülete 56,29 m², a lakótér 54,79 m², plusz egy kb. 3 m²-es erkély szolgálja a kényelmet. A lakáshoz tartozik egy udvari gépkocsi beálló, melynek ára a vételár részét képezi, emellett az utcán is lehetséges a parkolás. A közös költség 9200 Ft/hó.

Az épület tégla falazatú, 10 cm-es hőszigeteléssel. Külső nyílászárói műanyag szerkezetűek, belül fa ajtók találhatók. A burkolatok kerámia és laminált padló kombinációjából állnak. A lakás tájolása észak–déli, ami egész nap kellemes fényviszonyokat biztosít.

A lakás elosztása praktikus:
• Előtér
• Nappali
• Konyha
• Étkező
• 2 külön nyíló szoba
• Külön WC
• Fürdőszoba káddal
• Erkély (kb. 3 m²)

A fűtést kondenzációs kazán biztosítja radiátorokkal és padlófűtéssel, ami komfortos és gazdaságos megoldás. A lakás összkomfortos, modern műszaki állapottal. A jellemzők között szerepel, hogy teljesen bútorozott és gépesített, ezt a vételár tartalmazza, így gyakorlatilag egy kulcsrakész, azonnal használható ingatlant kap a leendő tulajdonos.

Az ingatlant jelenleg bérlő lakja, aki legalább még két évig szeretné bérelni a lakást, ezért kifejezetten jó befektetési lehetőség. A START hitel igénybevétele is lehetséges, ami további pénzügyi előnyt jelenthet.

MIÉRT EZT A LAKÁST NÉZZE MEG?

Ne hagyja ki ezt a kivételes lehetőséget! Nyíregyháza belvárosának közelében, fiatalos, újszerű, teljesen bútorozott és gépesített lakás várja új tulajdonosát, megbízható, bent maradó bérlővel – ideális, azonnal jövedelmet termelő befektetés!

Keressen bizalommal telefonon vagy e-mailben, akár hétvégén is! Megtekintés rugalmasan, előzetes időpont-egyeztetéssel megoldható.
Ár: 58 500 000 Ft

Hirdetés feltöltve: 2026. 02. 08.

3 szobás téglalakások ára Nyíregyházán

Ebből az összehasonlításból megtudhatod, hogyan viszonyul a lakás ára a környékbeli téglalakások átlagos árához. Ez nem azt jelenti, hogy ennyivel olcsóbb vagy drágább, mint amennyit a lakás ér, hanem hogy ennyivel tér el a környékbeli átlagtól.

Ennek a m² ára
Nyíregyháza m² ár
1045 e Ft
851 e Ft -23%
Ennek az ára
Nyíregyháza átlagár
58.5 M Ft m Ft
61.2 m Ft 4%

Az ingatlan elhelyezkedése

Cím: Nyíregyháza, 1. emelet

Eladó téglalakások a környékről

Eladó téglalakás
Eladó téglalakás

Nyíregyháza

79.99 M Ft
4 szoba
152 m2
Eladó téglalakás
Eladó téglalakás

Nyíregyháza

54.5 M Ft
3 szoba
67 m2
Eladó téglalakás
Eladó téglalakás

Nyíregyháza

43.5 M Ft
2 + 2 szoba
79 m2
Eladó téglalakás
Eladó téglalakás

Nyíregyháza

37.5 M Ft
1 szoba
44 m2
Eladó téglalakás
Eladó téglalakás

Nyíregyháza

43.5 M Ft
3 + 1 szoba
79 m2
Eladó téglalakás
Eladó téglalakás

Nyíregyháza

43.5 M Ft
3 + 1 szoba
79 m2
Eladó téglalakás
Eladó téglalakás

Nyíregyháza

104.9 M Ft
5 szoba
209 m2
Eladó téglalakás
Eladó téglalakás

Nyíregyháza

36 M Ft
2 szoba
58 m2
Eladó téglalakás
Eladó téglalakás

Nyíregyháza

53.7 M Ft
2 szoba
103 m2
Eladó téglalakás
Eladó téglalakás

Nyíregyháza

55.5 M Ft
2 szoba
78 m2
Eladó téglalakás
Eladó téglalakás

Nyíregyháza, Örökösföld, Törzs utca 2

65.9 M Ft
3 szoba
71 m2
Eladó téglalakás
Eladó téglalakás

Nyíregyháza

72.5 M Ft
3 + 1 szoba
170 m2
Eladó téglalakás
Eladó téglalakás

Nyíregyháza

43.5 M Ft
2 + 2 szoba
79 m2
Eladó téglalakás
Eladó téglalakás

Nyíregyháza

53.7 M Ft
2 szoba
103 m2
Eladó téglalakás
Eladó téglalakás

Nyíregyháza

72.5 M Ft
3 + 1 szoba
170 m2
Eladó téglalakás
Eladó téglalakás

Nyíregyháza

37.5 M Ft
1 szoba
44 m2
Eladó téglalakás
Eladó téglalakás

Nyíregyháza

53.7 M Ft
2 szoba
83 m2
Eladó téglalakás
Eladó téglalakás

Nyíregyháza

77.5 M Ft
4 szoba
120 m2
Eladó téglalakás
Eladó téglalakás

Nyíregyháza, Örökösföld, Törzs utca 2

65.9 M Ft
3 szoba
71 m2
Eladó téglalakás
Eladó téglalakás

Nyíregyháza

53.7 M Ft
3 szoba
83 m2
Eladó téglalakás
Eladó téglalakás

Nyíregyháza

43.5 M Ft
2 + 2 szoba
79 m2
Eladó téglalakás
Eladó téglalakás

Nyíregyháza

43.5 M Ft
2 + 1 szoba
79 m2
Eladó téglalakás
Eladó téglalakás

Nyíregyháza

79.99 M Ft
4 szoba
152 m2
Eladó téglalakás
Eladó téglalakás

Nyíregyháza

53.7 M Ft
3 szoba
83 m2

Falusi CSOK ingatlanok

Eladó családi ház
Eladó családi ház

Gönyű

111.951 M Ft
5 szoba
105 m2
Eladó családi ház
Eladó családi ház

Csátalja, Táncsics Mihály utca 2

28 M Ft
3 szoba
100 m2
Eladó családi ház
Eladó családi ház

Hercegszántó

29.9 M Ft
4 szoba
130 m2
Eladó családi ház
Eladó családi ház

Alattyán

8.5 M Ft
1 + 1 szoba
70 m2
Eladó családi ház
Eladó családi ház

Pusztamonostor

22 M Ft
3 szoba
86 m2
Eladó családi ház
Eladó családi ház

Véménd

46.9 M Ft
5 szoba
195 m2
Eladó sorház
Eladó sorház

Szob

16 M Ft
2 szoba
45 m2
Eladó családi ház
Eladó családi ház

Parád

47.9 M Ft
3 szoba
85 m2