Eladó téglalakás
Nyíregyháza, 3. emelet

+ 10 kép 1/13
38 800 000 Ft38.8 M Ft 705 455 Ft/m2
2 szoba
55 m2
3. emelet
építés éve:1970

Részletes adatok

Fűtés: Gázkonvektor
Energetikai besorolás: Nem adta meg a hirdető

Az OTP Bank lakáshitel ajánlataFizetett hirdetés

+36 70 597
Konc Richárd
OTP Ingatlanpont

Érdekel az OTP Bank kedvezményes lakáshitel ajánlata? *

* A kérdésre „Igen” válasz bejelölése esetén, az „Üzenet küldése” gombra kattintva kijelentem, hogy az OTP Bank Nyrt. Adatkezelési tájékoztatójának tartalmát megismertem és tudomásul vettem.

Eladó téglalakás leírása

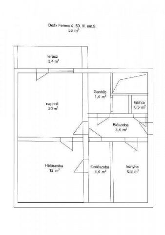
Belvároshoz közel, a Deák Ferenc utcán eladó egy szigetelt, tégla falazatú társasházban 3. emeleti, 55 négyzetméteres, 2 szobás, hőszigetelt, műanyag nyílászárós , kelet-nyugati fekvésű, napfényes, jó állapotú, erkélyes lakás. Az ingatlan azonnal birtokba vehető, teljes bútorzattal, gépesítéssel kerül átadásra ? minden, ami a fotókon látható, a vételár részét képezi. A lakás világos, jól elrendezett, a házban jó lakóközösség biztosítja a nyugodt, barátságos környezetet. Fiataloknak, első lakáshoz jutóknak, illetve befektetőknek is remek választás, hiszen azonnal költözhető, tehermentes, és kiváló elhelyezkedésű ingatlan. A lakás saját használatú pincével rendelkezik!
Kérem, tekintse meg személyesen, várom hívását akár hétvégén is!
OTP Banki hátterünknek köszönhetően finanszírozási igényekben (pl. Babaváró, Falusi CSOK, CSOK Plusz, Lakáshitel, Személyi kölcsön stb.), illetve biztosítások tekintetében is díjmentesen, soron kívüli ügyintézéssel segítem ügyfeleim! Referenciaszám: M314877

Hirdetés feltöltve: 2025. 10. 16. Utoljára módosítva: 2025. 10. 16.

2 szobás téglalakások ára Nyíregyházán

Ebből az összehasonlításból megtudhatod, hogyan viszonyul a lakás ára a környékbeli téglalakások átlagos árához. Ez nem azt jelenti, hogy ennyivel olcsóbb vagy drágább, mint amennyit a lakás ér, hanem hogy ennyivel tér el a környékbeli átlagtól.

Ennek a m² ára
Nyíregyháza m² ár
705 e Ft
851 e Ft 17%
Ennek az ára
Nyíregyháza átlagár
38.8 M Ft m Ft
47.6 m Ft 18%

Az ingatlan elhelyezkedése

Cím: Nyíregyháza, 3. emelet

Eladó téglalakások a környékről

Eladó téglalakás
Eladó téglalakás

Nyíregyháza

49.7 M Ft
2 szoba
83 m2
Eladó téglalakás
Eladó téglalakás

Nyíregyháza

49.7 M Ft
2 szoba
103 m2
Eladó téglalakás
Eladó téglalakás

Nyíregyháza

49.7 M Ft
3 szoba
83 m2
Eladó téglalakás
Eladó téglalakás

Nyíregyháza

39.2 M Ft
2 + 2 szoba
79 m2
Eladó téglalakás
Eladó téglalakás

Nyíregyháza

34.99 M Ft
3 szoba
70 m2
Eladó téglalakás
Eladó téglalakás

Nyíregyháza

77.5 M Ft
4 szoba
120 m2
Eladó téglalakás
Eladó téglalakás

Nyíregyháza

39.2 M Ft
3 + 1 szoba
79 m2
Eladó téglalakás
Eladó téglalakás

Nyíregyháza

39.2 M Ft
2 + 2 szoba
79 m2
Eladó téglalakás
Eladó téglalakás

Nyíregyháza

37.5 M Ft
1 szoba
44 m2
Eladó téglalakás
Eladó téglalakás

Nyíregyháza

55.5 M Ft
2 szoba
78 m2
Eladó téglalakás
Eladó téglalakás

Nyíregyháza

39.2 M Ft
3 + 1 szoba
79 m2
Eladó téglalakás
Eladó téglalakás

Nyíregyháza

54.5 M Ft
3 szoba
67 m2
Eladó téglalakás
Eladó téglalakás

Nyíregyháza

34.99 M Ft
3 szoba
70 m2
Eladó téglalakás
Eladó téglalakás

Nyíregyháza

49.7 M Ft
2 szoba
83 m2
Eladó téglalakás
Eladó téglalakás

Nyíregyháza

39.2 M Ft
2 + 1 szoba
79 m2
Eladó téglalakás
Eladó téglalakás

Nyíregyháza, Örökösföld, Törzs utca 2

74.9 M Ft
3 szoba
75 m2
Eladó téglalakás
Eladó téglalakás

Nyíregyháza

46.5 M Ft
2 szoba
102 m2
Eladó téglalakás
Eladó téglalakás

Nyíregyháza, Örökösföld, Törzs utca 2

65.9 M Ft
3 szoba
71 m2
Eladó téglalakás
Eladó téglalakás

Nyíregyháza

49.7 M Ft
2 szoba
103 m2
Eladó téglalakás
Eladó téglalakás

Nyíregyháza

39.2 M Ft
2 + 2 szoba
79 m2
Eladó téglalakás
Eladó téglalakás

Nyíregyháza

55.5 M Ft
2 szoba
78 m2
Eladó téglalakás
Eladó téglalakás

Nyíregyháza, Örökösföld, Törzs utca 2

65.9 M Ft
3 szoba
71 m2
Eladó téglalakás
Eladó téglalakás

Nyíregyháza

72.5 M Ft
3 + 1 szoba
170 m2
Eladó téglalakás
Eladó téglalakás

Nyíregyháza

99.9 M Ft
4 szoba
128 m2

Falusi CSOK ingatlanok

Eladó családi ház
Eladó családi ház

Muhi, Kossuth Lajos utca 5

6.499 M Ft
3 szoba
60 m2
Eladó családi ház
Eladó családi ház

Kamut

29.9 M Ft
3 szoba
100 m2
Eladó családi ház
Eladó családi ház

Lengyeltóti

37.9 M Ft
3 szoba
90 m2
Eladó családi ház
Eladó családi ház

Tés

34.9 M Ft
2 szoba
60 m2
Eladó családi ház
Eladó családi ház

Szil

25 M Ft
2 szoba
90 m2
Eladó családi ház
Eladó családi ház

Rédics

49.9 M Ft
3 szoba
107 m2
Eladó családi ház
Eladó családi ház

Balatonkeresztúr, Dózsa György u. 29

145 M Ft
5 szoba
150 m2
Eladó családi ház
Eladó családi ház

Lórév

84.9 M Ft
4 szoba
136 m2