Astora Márvány8

Eladó téglalakás
Miskolc, 1. emelet

+ 17 kép 1/20
65 000 000 Ft65 M Ft 792 683 Ft/m2
3 szoba
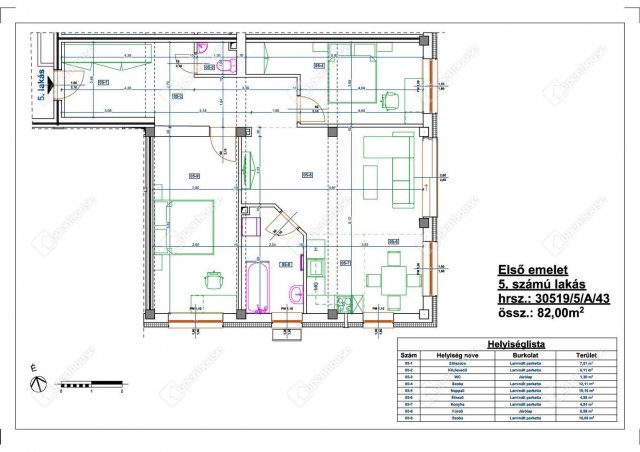
82 m²
1. emelet
építés éve:2025

Részletes adatok

Fűtés: Egyéb
Emelet: 1. emelet
Energetikai besorolás: A++

Az OTP Bank lakáshitel ajánlataFizetett hirdetés

+36 70 551
Bodnárné Kincses Gabriella
Openhouse Miskolc Görgey Artúr utca

Érdekel az OTP Bank kedvezményes lakáshitel ajánlata? *

* A kérdésre „Igen” válasz bejelölése esetén, az „Üzenet küldése” gombra kattintva kijelentem, hogy az OTP Bank Nyrt. Adatkezelési tájékoztatójának tartalmát megismertem és tudomásul vettem.

Eladó téglalakás leírása

Az Openhouse Miskolc Soltész Nagy Kálmán utcai Ingatlaniroda kínálatában eladó a #178579 hivatkozási számú miskolci társasházi lakás.

Megkezdődik Miskolc egyik legdinamikusabban fejlődő városrészében, Diósgyőr központjában egy új, modern társasház lakásainak értékesítése. A Törökverő utca 1. szám alatt épülő, prémium kivitelezésű ingatlan 2026 elején kulcsrakész állapotban várja első lakóit.

Ez a lakópark tökéletes választás mindazok számára, akik a kényelmet, a biztonságot és a magas minőséget keresik egy kiváló elhelyezkedésű, mégis nyugodt környezetben.

Főbb jellemzők és előnyök:

Kiváló elhelyezkedés: Az ingatlan Diósgyőr központjában található, ahonnan a tömegközlekedés, üzletek és szolgáltató egységek mindössze pár perc sétával elérhetőek.
Zárt, privát közösség: A társasház egy kizárólag a lakók által használható, körülkerített területen helyezkedik el. A gondozott, térkövezett és füvesített közös udvar parkosított zöldterületként funkcionál, biztosítva a nyugodt pihenést.
Energetikai hatékonyság és modern technológia: Az épület a kor legmagasabb energetikai, üzemeltetési és esztétikai igényeinek megfelel.

Szigetelés: 15 cm homlokzati, 20 cm lapostető és 10 cm szintközi szigetelés garantálja az alacsony rezsiköltséget.
Fűtés és hűtés: A modern hőszivattyús rendszer radiátoros hőleadókkal és kiegészítő fan-coil egységekkel biztosítja a kellemes hőmérsékletet, a hűtésről pedig minden szobában fan-coil gondoskodik.
Nyílászárók: 6 légkamrás műanyag tokszerkezetű, 3 rétegű hőszigetelő üvegezéssel, rejtett redőnytok előkészítéssel.

Praktikus kialakítás: A földszinten különálló garázsok, tárolók és közös helyiségek kerültek kialakításra. A tágas, felülről bevilágított lépcsőház egyedi hangulatot kölcsönöz az épületnek.
Változatos lakásméretek: Az I. és II. emeleten különféle alapterületű lakások közül választhat:
- 6 db 34 m² - 28millió forint, (eladva)
- 2 db 56 m² - 44millió forint, (eladva)
- 2 db 67 m² - 53millió forint, (II. emeleti eladva)
- 2 db 75 m² - 60millió forint, (eladva)
- 2 db 82 m² - 65millió forint,
- 2 db 99 m² - 79millió forint.
Kulcsrakész átadás: A vételár tartalmazza a magas minőségű burkolatokat, szanitereket, szerelvényeket és belső ajtókat. Az internet és kábeltévé hálózata kiépített, a konyhában minden szükséges gépészeti csatlakozás (tűzhely, mosogatógép, hűtő) biztosított (a konyhabútor nem része az ingatlan árának).
Egyedi mérők: Minden közmű (áram, hidegvíz, melegvíz, hűtés, fűtés) fogyasztása lakásonként külön mérőórával kerül elszámolásra.

A lakásokhoz opcionálisan vásárolható garázs, melynek ára 8,000.000.-Ft, valamint különböző nagyságú tárolók is rendelkezésre állnak!

Finanszírozás:

A vásárláshoz valamennyi állami támogatás (például CSOK Plusz), babaváró hitel és banki hitel igénybe vehető, rugalmas finanszírozási lehetőségeket kínálva.

Ne maradjon le a lehetőségről!

Biztosítsa be álmai otthonát Diósgyőr új lakóparkjában. További információért, műszaki tartalomért és a megvásárolható lakások pontos alaprajzaiért keressen minket bizalommal a megadott elérhetőségeken.

Ha felkeltette érdeklődését ez az eladó miskolci társasházi lakás, vagy bármely más társasházi lakás és bővebb információt szeretne, keressen bizalommal.Hivatkozási szám: #178579

Az Openhouse Miskolc Soltész Nagy Kálmán utcai Ingatlaniroda tagjaként várom Önt az országos hálózatunk teljes kínálatával.

A társasházi lakás vásárláshoz hitelt igényelne? Ingyenes hitelközvetítéssel segít Önnek bankfüggetlen hitelszakértőnk.

További szolgáltatásainkkal (pl. értékbecslés, energetikai tanúsítvány, jogi háttér) is segítjük Önt a vásárlásban.
Az otthon érték. Az ingatlan üzlet.

65000000 Ft
Érd: Bodnárné Kincses Gabriella +36705515031, Email: gabriella.kincses@oh.hu

Referencia szám: 178579

Hirdetés feltöltve: 2026. 04. 17. Utoljára módosítva: 2026. 04. 17.

3 szobás téglalakások ára Miskolcon

Ebből az összehasonlításból megtudhatod, hogyan viszonyul a lakás ára a környékbeli téglalakások átlagos árához. Ez nem azt jelenti, hogy ennyivel olcsóbb vagy drágább, mint amennyit a lakás ér, hanem hogy ennyivel tér el a környékbeli átlagtól.

Ennek a m² ára
Miskolc m² ár
793 e Ft
822 e Ft 4%
Ennek az ára
Miskolc átlagár
65 M Ft m Ft
66.6 m Ft 2%

Az ingatlan elhelyezkedése

Cím: Miskolc, 1. emelet

Eladó téglalakások a környékről

Miskolc
Eladó téglalakás

Miskolc

163.35 M Ft
4 szoba
110 m²
Miskolc
Eladó téglalakás

Miskolc

74.1 M Ft
2 szoba
77 m²
Miskolc
Eladó téglalakás

Miskolc

58.24 M Ft
2 szoba
63 m²
Sátoraljaújhely
Eladó téglalakás

Sátoraljaújhely

32.9 M Ft
4 szoba
105 m²
Miskolc
Eladó téglalakás

Miskolc

35.9 M Ft
1 + 1 szoba
34 m²
Miskolc
Eladó téglalakás

Miskolc

65.34 M Ft
1 + 1 szoba
40 m²
Miskolc
Eladó téglalakás

Miskolc

69.7 M Ft
3 szoba
60 m²
Miskolc
Eladó téglalakás

Miskolc

68.99 M Ft
3 szoba
76 m²
Sátoraljaújhely
Eladó téglalakás

Sátoraljaújhely

17 M Ft
2 szoba
52 m²
Miskolc, Új Diósgyőr, Torontáli utca
Eladó téglalakás

Miskolc

19.99 M Ft
2 szoba
49 m²
Miskolc
Eladó téglalakás

Miskolc

34.9 M Ft
1 + 1 szoba
49 m²
Miskolc
Eladó téglalakás

Miskolc

163.35 M Ft
4 szoba
110 m²
Miskolc
Eladó téglalakás

Miskolc

35.9 M Ft
1 + 1 szoba
34 m²
Miskolc, Belváros, Kazinczy Ferenc utca
Eladó téglalakás

Miskolc

74.9 M Ft
3 szoba
98 m²
Miskolc
Eladó téglalakás

Miskolc

65.34 M Ft
3 szoba
60 m²
Ózd
Eladó téglalakás

Ózd

4.99 M Ft
2 szoba
55 m²
Miskolc
Eladó téglalakás

Miskolc

54.45 M Ft
2 szoba
51 m²
Miskolc
Eladó téglalakás

Miskolc

34.9 M Ft
1 + 1 szoba
49 m²
Ózd
Eladó téglalakás

Ózd

8.9 M Ft
2 szoba
57 m²
Putnok
Eladó téglalakás

Putnok

13.6 M Ft
3 szoba
123 m²
Miskolc
Eladó téglalakás

Miskolc

68.99 M Ft
3 szoba
76 m²
Sárospatak, Tompa Mihály utca
Eladó téglalakás

Sárospatak

23.9 M Ft
2 szoba
62 m²
Miskolc
Eladó téglalakás

Miskolc

54.9 M Ft
3 szoba
122 m²
Miskolc
Eladó téglalakás

Miskolc

79.9 M Ft
4 szoba
90 m²

Falusi CSOK ingatlanok

Galgamácsa
Eladó családi ház

Galgamácsa

79.9 M Ft
4 szoba
110 m²
Dobri
Eladó családi ház

Dobri

33 M Ft
4 szoba
135 m²
Szob
Eladó sorház

Szob

16 M Ft
2 szoba
45 m²
Ambrózfalva
Eladó családi ház

Ambrózfalva

26.9 M Ft
5 szoba
194 m²
Ceglédbercel
Eladó családi ház

Ceglédbercel

53 M Ft
3 szoba
67 m²
Szabadbattyán
Eladó családi ház

Szabadbattyán

147.99 M Ft
5 szoba
255 m²
Bakonypéterd
Eladó családi ház

Bakonypéterd

44.9 M Ft
3 szoba
92 m²
Demjén
Eladó családi ház

Demjén

108 M Ft
5 szoba
200 m²