Metrodom

Eladó téglalakás
Miskolc, 2. emelet

+ 13 kép 1/16
19 400 000 Ft19.4 M Ft 510 526 Ft/m2
1 szoba
38 m²
2. emelet
építés éve:1950

Részletes adatok

Állapot: Átlagos
Telekméret: 38 m2
Fűtés: Gázkonvektor
Emelet: 2. emelet
Közmű: Víz, Gáz, Villany, Csatorna, Szélessáv
Energetikai besorolás: Nem adta meg a hirdető

Az OTP Bank lakáshitel ajánlataFizetett hirdetés

+36 30 165
Kozák Csaba
Newex Ingatlaniroda

Érdekel az OTP Bank kedvezményes lakáshitel ajánlata? *

* A kérdésre „Igen” válasz bejelölése esetén, az „Üzenet küldése” gombra kattintva kijelentem, hogy az OTP Bank Nyrt. Adatkezelési tájékoztatójának tartalmát megismertem és tudomásul vettem.

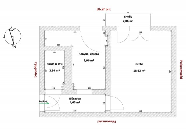
Eladó téglalakás leírása

Miskolc egyik közkedvelt városrészében, Észak-Kiliánban kínálunk eladásra egy 38 m²-es, erkélyes téglalakást, amely ideális választás lehet befektetőknek, első lakást keresőknek, fiataloknak, egyedülállóknak vagy akár idősebbek számára is.

A lakás praktikus elrendezésű, helyiségei:

- előszoba

- különálló szoba

- konyha

- fürdőszoba

- erkély

Az ingatlan átlagos állapotú, így akár azonnal költözhető vagy bérbe adható, ugyanakkor igény szerint könnyen saját ízlésre alakítható.

A fűtés konvektoros, amely egyszerűen szabályozható és költséghatékony megoldást biztosít a téli hónapokban. A lakás fenntartása rendkívül kedvező: a közös költség mindössze 5 920 Ft/hó. A parkolás az utcán ingyenesen megoldható.

A környék csendes, mégis jól megközelíthető, a mindennapi élethez szükséges szolgáltatások könnyen elérhetők.

Befektetők számára különösen vonzó, hiszen az ilyen típusú lakások a környéken könnyen és gyorsan kiadhatók rövid vagy hosszú távra is, így stabil bevételi lehetőséget kínálnak.

Ha egy értékálló, jó adottságokkal rendelkező téglalakást keres Miskolc egyik kedvelt részén, ezt az ingatlant érdemes megnézni!

További információért vagy megtekintés egyeztetéséhez keressen bizalommal!

Hirdetés feltöltve: 2026. 03. 13. Utoljára módosítva: 2026. 04. 23.

1 szobás téglalakások ára Miskolcon

Ebből az összehasonlításból megtudhatod, hogyan viszonyul a lakás ára a környékbeli téglalakások átlagos árához. Ez nem azt jelenti, hogy ennyivel olcsóbb vagy drágább, mint amennyit a lakás ér, hanem hogy ennyivel tér el a környékbeli átlagtól.

Ennek a m² ára
Miskolc m² ár
511 e Ft
755 e Ft 32%
Ennek az ára
Miskolc átlagár
19.4 M Ft m Ft
27.9 m Ft 30%

Az ingatlan elhelyezkedése

Cím: Miskolc, 2. emelet

Eladó téglalakások a környékről

Putnok
Eladó téglalakás

Putnok

13.6 M Ft
3 szoba
123 m²
Miskolc
Eladó téglalakás

Miskolc

68.99 M Ft
3 szoba
76 m²
Miskolc
Eladó téglalakás

Miskolc

163.35 M Ft
4 szoba
110 m²
Miskolc
Eladó téglalakás

Miskolc

34.9 M Ft
1 + 1 szoba
49 m²
Miskolc
Eladó téglalakás

Miskolc

54.9 M Ft
3 szoba
122 m²
Ózd
Eladó téglalakás

Ózd

10.4 M Ft
2 szoba
48 m²
Miskolc
Eladó téglalakás

Miskolc

51.9 M Ft
3 szoba
82 m²
Miskolc
Eladó téglalakás

Miskolc

69.7 M Ft
3 szoba
60 m²
Sátoraljaújhely
Eladó téglalakás

Sátoraljaújhely

32.9 M Ft
4 szoba
105 m²
Miskolc, Új Diósgyőr, Torontáli utca
Eladó téglalakás

Miskolc

19.99 M Ft
2 szoba
49 m²
Miskolc
Eladó téglalakás

Miskolc

9.99 M Ft
2 szoba
59 m²
Miskolc
Eladó téglalakás

Miskolc

35.9 M Ft
1 + 1 szoba
34 m²
Miskolc, Keleti városrész, József Attila
Eladó téglalakás

Miskolc

27.9 M Ft
2 szoba
55 m²
Miskolc
Eladó téglalakás

Miskolc

51.9 M Ft
3 szoba
82 m²
Ózd
Eladó téglalakás

Ózd

8.9 M Ft
2 szoba
57 m²
Miskolc
Eladó téglalakás

Miskolc

74.1 M Ft
2 szoba
77 m²
Miskolc
Eladó téglalakás

Miskolc

59.94 M Ft
2 szoba
51 m²
Miskolc
Eladó téglalakás

Miskolc

59.99 M Ft
4 szoba
119 m²
Miskolc
Eladó téglalakás

Miskolc

75.982 M Ft
3 szoba
77 m²
Ózd
Eladó téglalakás

Ózd

4.9 M Ft
2 szoba
47 m²
Miskolc
Eladó téglalakás

Miskolc

54.9 M Ft
3 szoba
122 m²
Miskolc
Eladó téglalakás

Miskolc

59.99 M Ft
4 szoba
119 m²
Ózd
Eladó téglalakás

Ózd

4.99 M Ft
2 szoba
55 m²
Miskolc
Eladó téglalakás

Miskolc

65.34 M Ft
1 + 1 szoba
40 m²

Falusi CSOK ingatlanok

Hegyeshalom, Margaréta utca 12
Eladó téglalakás

Hegyeshalom

50.09 M Ft
2 szoba
43 m²
Dombrád, Rákóczi út 22
Eladó családi ház

Dombrád

12.74 M Ft
1 + 1 szoba
125 m²
Hosszúhetény, Petőfi Sándor utca 10
Eladó családi ház

Hosszúhetény

20.65 M Ft
4 + 2 szoba
133 m²
Tápiógyörgye
Eladó családi ház

Tápiógyörgye

29.49 M Ft
2 szoba
60 m²
Nyírtura
Eladó családi ház

Nyírtura

99 M Ft
4 szoba
280 m²
Tök
Eladó családi ház

Tök

20 M Ft
2 szoba
47 m²
Kálmánháza
Eladó családi ház

Kálmánháza

54.9 M Ft
3 szoba
138 m²
Németkér
Eladó családi ház

Németkér

149.9 M Ft
2 szoba
540 m²