Astora Olive Club House

Eladó téglalakás
Miskolc, 3. emelet

+ 10 kép 1/13
59 900 000 Ft59.9 M Ft 809 459 Ft/m2
3 szoba
74 m2
3. emelet
építés éve:2010

Részletes adatok

Fűtés: Távfűtés
Extrák: Lift
Energetikai besorolás: Nem adta meg a hirdető

Az OTP Bank lakáshitel ajánlataFizetett hirdetés

+36 70 770
Lenkóné Szarka Erika
OTP Ingatlanpont Miskolc Szemere

Érdekel az OTP Bank kedvezményes lakáshitel ajánlata? *

* A kérdésre „Igen” válasz bejelölése esetén, az „Üzenet küldése” gombra kattintva kijelentem, hogy az OTP Bank Nyrt. Adatkezelési tájékoztatójának tartalmát megismertem és tudomásul vettem.

Eladó téglalakás leírása

Csak az OTP INGATLANPONT ajánlatában!
Eladásra kínálunk a nyüzsgő belváros szívében, közvetlenül a PLÁZA mellett, egy 74 nm-es, 3. emeleti, klimatizált, 3 szobás lakást, ami kiválóan megfelel a környék hangulatát kedvelő családi otthonnak, esetleg cégnek, irodának, orvosi rendelőnek vagy az elhelyezkedése miatt bármilyen vállalkozásnak, illetve Airbnb hasznosításra.
Az ingatlan 3 szintes, téglából épült 2010-ben, és fontosnak tartom megjegyezni, hogy ebben az épületben a válaszfalak is téglából készültek.
Belvárosi pezsgő élet, éttermek, üzletek, óvoda, iskola, gimnázium, bank, busz pályaudvar, mindez pár perces sétával elérhető.
Az ingatlan liftes, szépen rendben tartott, zárt, a tavalyi évben teljesen felújított lépcsőházból nyílik.
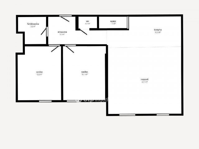
2 hálószobából, 1 amerikai konyhás nappaliból,1 közlekedőből,1 fürdőszobából, 1 WC-ből és egy kicsi tároló helyiségből áll.
Minden szoba külön bejáratú, a fürdő és a WC szintén különálló.
A szobák laminált parkettával fedettek, a többi helyiség hideg burkolattal ellátott.
A lakás elrendezése kiváló, könnyű átalakítani saját elképzelés szerint.
Rendkívül világos, minden helyisége ablakos, a nappali franciaerkélyes.
Az ablakok hő- és hangszigeteltek, háromrétegű üvegezéssel, szúnyoghálóval és redőnnyel felszereltek.
Az épületben több, főleg irodai és orvosi vállalkozás működik, jelen pillanatban is.
A mélygarázsban 1 kocsi beállására alkalmas, parkolási lehetőség is megvásárolható, külön ár megegyezés szerint.
Nézze meg, nem fogja megbánni!
Az ingatlan előzetes egyeztetés után megtekinthető, akár hétvégén is!
Amiben segítjük Önöket:
- hitel ügyintézés
- CSOK ügyintézés
- energetikai tanúsítvány
Várjuk hívását és kérjük, hivatkozzon a következő referenciaszámra: M304523

Referencia szám: M314076

Hirdetés feltöltve: 2025. 11. 02. Utoljára módosítva: 2025. 12. 03.

3 szobás téglalakások ára Miskolcon

Ebből az összehasonlításból megtudhatod, hogyan viszonyul a lakás ára a környékbeli téglalakások átlagos árához. Ez nem azt jelenti, hogy ennyivel olcsóbb vagy drágább, mint amennyit a lakás ér, hanem hogy ennyivel tér el a környékbeli átlagtól.

Ennek a m² ára
Miskolc m² ár
809 e Ft
719 e Ft -13%
Ennek az ára
Miskolc átlagár
59.9 M Ft m Ft
54.4 m Ft -10%

Az ingatlan elhelyezkedése

Cím: Miskolc, 3. emelet

Eladó téglalakások a környékről

Eladó téglalakás
Eladó téglalakás

Miskolc

64.99 M Ft
4 szoba
119 m2
Eladó téglalakás
Eladó téglalakás

Miskolc

59.99 M Ft
3 szoba
83 m2
Eladó téglalakás
Eladó téglalakás

Sárospatak, Tompa Mihály utca

23.9 M Ft
2 szoba
62 m2
Eladó téglalakás
Eladó téglalakás

Tiszaújváros, Verebély utca

23.9 M Ft
1 + 1 szoba
39 m2
Eladó téglalakás
Eladó téglalakás

Miskolc

41.657 M Ft
2 szoba
51 m2
Eladó téglalakás
Eladó téglalakás

Ózd

9.99 M Ft
2 szoba
58 m2
Eladó téglalakás
Eladó téglalakás

Ózd

8.9 M Ft
2 szoba
57 m2
Eladó téglalakás
Eladó téglalakás

Miskolc

9.99 M Ft
2 szoba
59 m2
Eladó téglalakás
Eladó téglalakás

Miskolc

39.9 M Ft
2 szoba
77 m2
Eladó téglalakás
Eladó téglalakás

Miskolc

35.9 M Ft
1 + 1 szoba
34 m2
Eladó téglalakás
Eladó téglalakás

Miskolc

41.9 M Ft
3 szoba
81 m2
Eladó téglalakás
Eladó téglalakás

Miskolc

39.9 M Ft
1 + 2 szoba
56 m2
Eladó téglalakás
Eladó téglalakás

Sárospatak

13.9 M Ft
3 szoba
89 m2
Eladó téglalakás
Eladó téglalakás

Miskolc

42.99 M Ft
3 szoba
81 m2
Eladó téglalakás
Eladó téglalakás

Miskolc

39.9 M Ft
2 szoba
77 m2
Eladó téglalakás
Eladó téglalakás

Miskolc

65.34 M Ft
3 szoba
60 m2
Eladó téglalakás
Eladó téglalakás

Miskolc

9.99 M Ft
2 szoba
59 m2
Eladó téglalakás
Eladó téglalakás

Miskolc

54.45 M Ft
2 szoba
51 m2
Eladó téglalakás
Eladó téglalakás

Miskolc, Új Diósgyőr, Torontáli utca

19.99 M Ft
2 szoba
49 m2
Eladó téglalakás
Eladó téglalakás

Sátoraljaújhely

17 M Ft
2 szoba
52 m2
Eladó téglalakás
Eladó téglalakás

Miskolc

65.34 M Ft
1 + 1 szoba
40 m2
Eladó téglalakás
Eladó téglalakás

Miskolc, Új Diósgyőr, Torontáli utca

19.99 M Ft
2 szoba
49 m2
Eladó téglalakás
Eladó téglalakás

Miskolc

60.396 M Ft
2 szoba
63 m2
Eladó téglalakás
Eladó téglalakás

Miskolc

65.34 M Ft
3 szoba
60 m2

Falusi CSOK ingatlanok

Eladó családi ház
Eladó családi ház

Enese

72.025 M Ft
4 szoba
75 m2
Eladó családi ház
Eladó családi ház

Bakonyszentkirály

99.99 M Ft
5 szoba
126 m2
Eladó családi ház
Eladó családi ház

Pécsely, Szőlő Dülő

499 M Ft
4 + 2 szoba
183 m2
Eladó családi ház
Eladó családi ház

Gönyű

111.951 M Ft
4 szoba
105 m2
Eladó családi ház
Eladó családi ház

Örkény

49.5 M Ft
5 szoba
100 m2
Eladó családi ház
Eladó családi ház

Nagybörzsöny

36 M Ft
2 + 1 szoba
74 m2
Eladó családi ház
Eladó családi ház

Tokod

89 M Ft
6 szoba
187 m2
Eladó családi ház
Eladó családi ház

Pórszombat

20.5 M Ft
3 szoba
88 m2