Eladó téglalakás
Miskolc, 3. emelet 
Részletes adatok
Az OTP Bank lakáshitel ajánlataFizetett hirdetés
Induló törlesztőrészlet
101 262 Ft /hóTörlesztőrészlet a 13. hónaptól
129 106 Ft /hóInduló törlesztőrészlet
135 016 Ft /hóTörlesztőrészlet a 13. hónaptól
172 142 Ft /hóA tájékoztatás nem teljes körű és nem minősül ajánlattételnek. Az OTP Évnyerő Lakáshitelei 1 éves türelmi idős kölcsönök, amellyel az első 12 hónapban alacsonyabb a havi törlesztőrészlet. A tőke törlesztését a 13. hónaptól kell megkezdeni.
Eladó téglalakás leírása
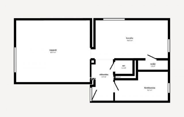
Eladó igényes, galériás lakás Miskolcon, zöldövezetben Miskolcon, a LÁEV villamosmegállótól mindössze pár percre, zöld környezetben kínálok eladásra egy egyedi kivitelezésű, költözhető állapotú, galériás lakást. A hivatalos alapterület 42 nm, amelyhez a tetőtér beépítésével további kb. 20 nm nyerhető, így a lakás összesen két külön nyíló hálószobával bővült. Elrendezés: alsó szinten: napfényes nappali, tágas konyha-étkező egyedi beépített bútorral, kamra, fürdőszoba káddal és két mosdóval, külön WC, előszoba felső szinten: két hálószoba (gyerek-, dolgozó- vagy gardróbszobának is ideális) Főbb jellemzők: Műanyag nyílászárók redőnnyel, tetőtéri Velux fa ablakok Gáz-cirkó fűtés, alacsony rezsiköltség Ingyenes parkolás a ház körül, garázsvásárlás/bérlés a közelben megoldható Kiváló infrastruktúra: iskola, óvoda, bolt, gyógyszertár, posta, busz- és villamosmegálló pár perc sétára A lakás a 4. emeleten található, fiataloknak, családoknak vagy akár befektetésre is remek választás. OTP Banki hátterünknek köszönhetően finanszírozási igényekben (pl. Otthon Start Hitelprogram , Babaváró, Falusi CSOK, CSOK Plusz, Lakáshitel, Személyi kölcsön stb.), illetve biztosítások tekintetében is díjmentesen, soron kívüli ügyintézéssel segítem ügyfeleim! Referenciaszám:M316159
 37500000 Ft
Referencia szám: M316159
Hirdetés feltöltve: 2025. 10. 30. Utoljára módosítva: 2025. 10. 30.
3 szobás téglalakások ára Miskolcon
Ebből az összehasonlításból megtudhatod, hogyan viszonyul a lakás ára a környékbeli téglalakások átlagos árához. Ez nem azt jelenti, hogy ennyivel olcsóbb vagy drágább, mint amennyit a lakás ér, hanem hogy ennyivel tér el a környékbeli átlagtól.
Az ingatlan elhelyezkedése
Cím: Miskolc, 3. emelet
 
 
 
 
 
 
 
 
 
 
 
 
 
 
 
 
 
 
 
 
 
 
 
 
 
 
 
 
 
 
