Astora Art House

Eladó téglalakás
Miskolc, 3. emelet

+ 8 kép 1/11
23 500 000 Ft23.5 M Ft 691 176 Ft/m2
1 szoba
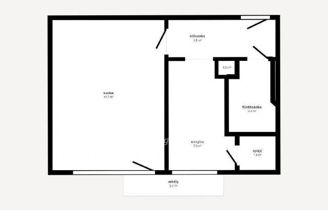
34 m2
3. emelet
építés éve:1966

Részletes adatok

Állapot: Átlagos
Fűtés: Gázkonvektor
Energetikai besorolás: Nem adta meg a hirdető

Az OTP Bank lakáshitel ajánlataFizetett hirdetés

+36 20 361
Spéth Gábor György
OTP Ingatlanpont Miskolc Szemere

Érdekel az OTP Bank kedvezményes lakáshitel ajánlata? *

* A kérdésre „Igen” válasz bejelölése esetén, az „Üzenet küldése” gombra kattintva kijelentem, hogy az OTP Bank Nyrt. Adatkezelési tájékoztatójának tartalmát megismertem és tudomásul vettem.

Eladó téglalakás leírása

Első lakásukat vásárlók, befektetők figyelem!!

Eladó Észak-Kiliánban a Kiss Tábornok úton egy 34 nm-es 3.emeleti erkélyes garzon lakás. Az ingatlan jelen állapotában is költözhető illetve bérbeadható. A nyílászárók redőnnyel felszerelt műanyag ablakokra lettek cserélve. Az előszobában illetve a szobában a villamoshálózat rézvezetékekre történő cseréje megtörtént. A lakás fűtése gázkonvektoros, a melegvízről pedig villanybojler gondoskodik. Az ingatlan megfelel a 3%-os Otthon Start Program feltételeinek.
Banki hátterünknek köszönhetően finanszírozási kérdésekben is állunk rendelkezésére. Jöjjön és tekintsük meg együtt akár hétvégén is!
Hívása során hivatkozzon az M311830-as referenciaszámra.

Hirdetés feltöltve: 2025. 10. 16. Utoljára módosítva: 2025. 11. 02.

1 szobás téglalakások ára Miskolcon

Ebből az összehasonlításból megtudhatod, hogyan viszonyul a lakás ára a környékbeli téglalakások átlagos árához. Ez nem azt jelenti, hogy ennyivel olcsóbb vagy drágább, mint amennyit a lakás ér, hanem hogy ennyivel tér el a környékbeli átlagtól.

Ennek a m² ára
Miskolc m² ár
691 e Ft
655 e Ft -6%
Ennek az ára
Miskolc átlagár
23.5 M Ft m Ft
22.6 m Ft -4%

Az ingatlan elhelyezkedése

Cím: Miskolc, 3. emelet

Eladó téglalakások a környékről

Eladó téglalakás
Eladó téglalakás

Miskolc

39.9 M Ft
1 + 2 szoba
56 m2
Eladó téglalakás
Eladó téglalakás

Tiszaújváros

60.06 M Ft
2 szoba
68 m2
Eladó téglalakás
Eladó téglalakás

Miskolc

69.7 M Ft
3 szoba
60 m2
Eladó téglalakás
Eladó téglalakás

Miskolc

65.34 M Ft
3 szoba
60 m2
Eladó téglalakás
Eladó téglalakás

Miskolc

49 M Ft
2 szoba
51 m2
Eladó téglalakás
Eladó téglalakás

Sárospatak, Tompa Mihály utca

23.9 M Ft
2 szoba
62 m2
Eladó téglalakás
Eladó téglalakás

Ózd

9.99 M Ft
2 szoba
58 m2
Eladó téglalakás
Eladó téglalakás

Ózd

10.4 M Ft
2 szoba
48 m2
Eladó téglalakás
Eladó téglalakás

Miskolc, Új Diósgyőr, Torontáli utca

19.99 M Ft
2 szoba
49 m2
Eladó téglalakás
Eladó téglalakás

Miskolc

41.9 M Ft
3 szoba
81 m2
Eladó téglalakás
Eladó téglalakás

Miskolc

41.657 M Ft
2 szoba
51 m2
Eladó téglalakás
Eladó téglalakás

Putnok

13.6 M Ft
3 szoba
123 m2
Eladó téglalakás
Eladó téglalakás

Miskolc

56.88 M Ft
3 szoba
76 m2
Eladó téglalakás
Eladó téglalakás

Sátoraljaújhely

17 M Ft
2 szoba
52 m2
Eladó téglalakás
Eladó téglalakás

Borsodnádasd

7.9 M Ft
4 szoba
113 m2
Eladó téglalakás
Eladó téglalakás

Miskolc

41.9 M Ft
3 szoba
81 m2
Eladó téglalakás
Eladó téglalakás

Miskolc

51.9 M Ft
3 szoba
82 m2
Eladó téglalakás
Eladó téglalakás

Miskolc

163.35 M Ft
4 szoba
110 m2
Eladó téglalakás
Eladó téglalakás

Miskolc

9.99 M Ft
2 szoba
59 m2
Eladó téglalakás
Eladó téglalakás

Miskolc

42.99 M Ft
3 szoba
81 m2
Eladó téglalakás
Eladó téglalakás

Miskolc

65.34 M Ft
3 szoba
60 m2
Eladó téglalakás
Eladó téglalakás

Miskolc

49.9 M Ft
3 szoba
122 m2
Eladó téglalakás
Eladó téglalakás

Ózd

8.9 M Ft
2 szoba
57 m2
Eladó téglalakás
Eladó téglalakás

Miskolc

65.34 M Ft
3 szoba
60 m2

Falusi CSOK ingatlanok

Eladó családi ház
Eladó családi ház

Táborfalva

77 M Ft
4 szoba
92 m2
Eladó családi ház
Eladó családi ház

Újszilvás

20.9 M Ft
3 szoba
66 m2
Eladó családi ház
Eladó családi ház

Bár

89.5 M Ft
4 + 1 szoba
172 m2
Eladó családi ház
Eladó családi ház

Csetény

23 M Ft
1 szoba
44 m2
Eladó családi ház
Eladó családi ház

Románd

49.9 M Ft
4 szoba
115 m2
Eladó családi ház
Eladó családi ház

Ábrahámhegy

139 M Ft
4 szoba
106 m2
Eladó családi ház
Eladó családi ház

Újléta

18.5 M Ft
2 szoba
63 m2
Eladó téglalakás
Eladó téglalakás

Herend

63 M Ft
3 szoba
69 m2