Astora Olive Club House

Eladó téglalakás
Miskolc, 3. emelet

+ 8 kép 1/11
23 500 000 Ft23.5 M Ft 691 176 Ft/m2
1 szoba
34 m2
3. emelet
építés éve:1966

Részletes adatok

Állapot: Átlagos
Fűtés: Gázkonvektor
Energetikai besorolás: Nem adta meg a hirdető

Az OTP Bank lakáshitel ajánlataFizetett hirdetés

+36 70 907
Klubert Gergő
OTP Ingatlanpont Miskolc Szemere

Érdekel az OTP Bank kedvezményes lakáshitel ajánlata? *

* A kérdésre „Igen” válasz bejelölése esetén, az „Üzenet küldése” gombra kattintva kijelentem, hogy az OTP Bank Nyrt. Adatkezelési tájékoztatójának tartalmát megismertem és tudomásul vettem.

Eladó téglalakás leírása

Első lakásukat vásárlók, befektetők figyelem!!

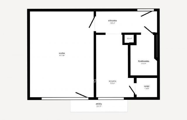
Eladó Észak-Kiliánban a Kiss Tábornok úton egy 34 nm-es 3.emeleti erkélyes garzon lakás. Az ingatlan jelen állapotában is költözhető illetve bérbeadható. A nyílászárók redőnnyel felszerelt műanyag ablakokra lettek cserélve. Az előszobában illetve a szobában a villamoshálózat rézvezetékekre történő cseréje megtörtént. A lakás fűtése gázkonvektoros, a melegvízről pedig villanybojler gondoskodik. Az ingatlan megfelel a 3%-os Otthon Start Program feltételeinek.
Banki hátterünknek köszönhetően finanszírozási kérdésekben is állunk rendelkezésére. Jöjjön és tekintsük meg együtt akár hétvégén is!
Hívása során hivatkozzon az M311830-as referenciaszámra.

Hirdetés feltöltve: 2025. 10. 14. Utoljára módosítva: 2025. 11. 03.

1 szobás téglalakások ára Miskolcon

Ebből az összehasonlításból megtudhatod, hogyan viszonyul a lakás ára a környékbeli téglalakások átlagos árához. Ez nem azt jelenti, hogy ennyivel olcsóbb vagy drágább, mint amennyit a lakás ér, hanem hogy ennyivel tér el a környékbeli átlagtól.

Ennek a m² ára
Miskolc m² ár
691 e Ft
650 e Ft -6%
Ennek az ára
Miskolc átlagár
23.5 M Ft m Ft
22.6 m Ft -4%

Az ingatlan elhelyezkedése

Cím: Miskolc, 3. emelet

Eladó téglalakások a környékről

Eladó téglalakás
Eladó téglalakás

Miskolc

138 M Ft
4 szoba
110 m2
Eladó téglalakás
Eladó téglalakás

Ózd

9.99 M Ft
2 szoba
58 m2
Eladó téglalakás
Eladó téglalakás

Miskolc

41.9 M Ft
3 szoba
81 m2
Eladó téglalakás
Eladó téglalakás

Miskolc

59.99 M Ft
3 szoba
83 m2
Eladó téglalakás
Eladó téglalakás

Miskolc

41.9 M Ft
3 szoba
81 m2
Eladó téglalakás
Eladó téglalakás

Miskolc

49 M Ft
2 szoba
51 m2
Eladó téglalakás
Eladó téglalakás

Miskolc

39.9 M Ft
2 szoba
77 m2
Eladó téglalakás
Eladó téglalakás

Miskolc

49.9 M Ft
3 szoba
122 m2
Eladó téglalakás
Eladó téglalakás

Miskolc

24.9 M Ft
2 szoba
52 m2
Eladó téglalakás
Eladó téglalakás

Ózd

8.9 M Ft
2 szoba
57 m2
Eladó téglalakás
Eladó téglalakás

Sátoraljaújhely

17 M Ft
2 szoba
52 m2
Eladó téglalakás
Eladó téglalakás

Ózd

10.5 M Ft
2 szoba
53 m2
Eladó téglalakás
Eladó téglalakás

Miskolc

60.396 M Ft
2 szoba
63 m2
Eladó téglalakás
Eladó téglalakás

Miskolc

49 M Ft
2 szoba
51 m2
Eladó téglalakás
Eladó téglalakás

Miskolc

59 M Ft
3 szoba
60 m2
Eladó téglalakás
Eladó téglalakás

Tiszaújváros, Verebély utca

23.9 M Ft
1 + 1 szoba
39 m2
Eladó téglalakás
Eladó téglalakás

Miskolc

35.9 M Ft
1 + 1 szoba
34 m2
Eladó téglalakás
Eladó téglalakás

Miskolc

56.88 M Ft
3 szoba
76 m2
Eladó téglalakás
Eladó téglalakás

Tiszaújváros

54.6 M Ft
2 szoba
80 m2
Eladó téglalakás
Eladó téglalakás

Miskolc

24.9 M Ft
2 szoba
52 m2
Eladó téglalakás
Eladó téglalakás

Putnok

8.8 M Ft
2 szoba
52 m2
Eladó téglalakás
Eladó téglalakás

Miskolc

49 M Ft
2 szoba
51 m2
Eladó téglalakás
Eladó téglalakás

Miskolc, Új Diósgyőr, Torontáli utca

19.99 M Ft
2 szoba
49 m2
Eladó téglalakás
Eladó téglalakás

Miskolc

59 M Ft
3 szoba
60 m2

Falusi CSOK ingatlanok

Eladó családi ház
Eladó családi ház

Tápiógyörgye

34.9 M Ft
3 szoba
85 m2
Eladó családi ház
Eladó családi ház

Szigliget

125 M Ft
2 + 2 szoba
137 m2
Eladó családi ház
Eladó családi ház

Lázi

18.9 M Ft
2 szoba
74 m2
Eladó családi ház
Eladó családi ház

Kunágota

13.2 M Ft
4 szoba
115 m2
Eladó családi ház
Eladó családi ház

Mályi

89.9 M Ft
4 szoba
100 m2
Eladó családi ház
Eladó családi ház

Gönyű

111.951 M Ft
4 szoba
105 m2
Eladó családi ház
Eladó családi ház

Bugac

17 M Ft
3 szoba
80 m2
Eladó családi ház
Eladó családi ház

Nyírmártonfalva

14.5 M Ft
2 szoba
64 m2