Astora Olive Club House

Eladó családi ház
Kunágota

Figyelem!

Ez az ingatlan a 2019.07.01-től induló falusi CSOK által támogatott településen található

+ 17 kép 1/20
13 200 000 Ft13.2 M Ft 114 783 Ft/m2
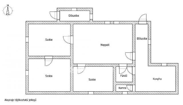
4 szoba
115 m2
építés éve:1950

Részletes adatok

Állapot: Átlagos
Telekméret: 2089 m2
Fűtés: Gázkazán
Energetikai besorolás: Nem adta meg a hirdető

Az OTP Bank lakáshitel ajánlataFizetett hirdetés

+36 20 405
Pócsik Attila
OTP Ingatlanpont

Érdekel az OTP Bank kedvezményes lakáshitel ajánlata? *

* A kérdésre „Igen” válasz bejelölése esetén, az „Üzenet küldése” gombra kattintva kijelentem, hogy az OTP Bank Nyrt. Adatkezelési tájékoztatójának tartalmát megismertem és tudomásul vettem.

Eladó családi ház leírása

Tágas otthon Kunágotán nagy telekkel, tehermentes, azonnal költözhető! Ha vidéki nyugalomra vágyik, ez az ingatlan Önre vár! Eladásra kínálunk, Békés vármegyébe, egy 115 nm-es családi házat Kunágotán, csendes utcában, a központhoz közel. A tágas, 2089 nm-es telek számos lehetőséget rejt magában. A melléképületben nyárikonyha, több tárolóhelyiség, garázs, valamint állattartásra kialakított disznóólak és tyúkólak, disznóvágásra alkalmas terek találhatóak. A telek másik felében, gyümölcsfák vannak, kertészkedésre, gazdálkodásra tökéletesen alkalmas. A ház három szobával, nappalival, konyhával, fürdőszobával, kamrával és két előszobával rendelkezik, így ideális lehet nagyobb családok számára is. A mindennapok kényelméről gázkazános fűtés, bojleres meleg víz és klíma gondoskodik, így télen-nyáron kellemes hőmérséklet várja. Az ingatlan költözhető állapotú, csupán egy tisztasági festés után máris új élet költözhet a falak közé. Ráadásul tehermentes és hitelezhető, így akár azonnal belevághat új otthona megteremtésébe. Ha Ön is érzi, hogy ez lehet az a hely, ahol igazán otthonra találhat, hívjon bizalommal! Az OTP Ingatlanpont a banki háttérrel eladóink, és vevőink igényeit teljeskörűen ki tudja szolgálni, az eladástól a vevői finanszírozásig és az ingatlan birtokbaadásáig. Hitel igénylés esetén akár egyedi kamatkedvezménnyel, jogosultság esetén az állami támogatásokhoz kapcsolódó felvilágosítással, teljeskörű pénzügyi tanácsadással és ügyintézéssel állunk ügyfeleink rendelkezésére. A pénzügyi tanácsadás és ügyintézői szolgáltatásunk díjmentes. ***VÁLASSZUK KI EGYÜTT AZ ÖNNEK LEGMEGFELELŐBB AJÁNLATOT! BANKI SORBAN ÁLLÁS NÉLKÜL! ***

Referencia szám: M307699-ZE

Hirdetés feltöltve: 2025. 10. 08. Utoljára módosítva: 2026. 01. 13.

Az ingatlan elhelyezkedése

Cím: Kunágota

Eladó ingatlanok a környékről

Eladó családi ház
Eladó családi ház

Kunágota

9.9 M Ft
2 + 1 szoba
70 m2
Eladó családi ház
Eladó családi ház

Mezőkovácsháza

11 M Ft
4 szoba
147 m2
Eladó családi ház
Eladó családi ház

Sarkad

13.5 M Ft
2 szoba
75 m2
Eladó családi ház
Eladó családi ház

Tótkomlós

14 M Ft
4 szoba
128 m2
Eladó családi ház
Eladó családi ház

Békéscsaba

35.9 M Ft
3 szoba
130 m2
Eladó családi ház
Eladó családi ház

Körösladány

14.9 M Ft
2 szoba
78 m2
Eladó családi ház
Eladó családi ház

Gyula, Vár utca

85.9 M Ft
4 szoba
180 m2
Eladó családi ház
Eladó családi ház

Dévaványa

63 M Ft
5 szoba
240 m2
Eladó családi ház
Eladó családi ház

Bucsa

23 M Ft
3 szoba
90 m2
Eladó sorház
Eladó sorház

Sarkad, Cukorgyár

7.5 M Ft
1 szoba
54 m2
Eladó családi ház
Eladó családi ház

Dévaványa

63 M Ft
5 szoba
240 m2
Eladó családi ház
Eladó családi ház

Gyula

27.9 M Ft
3 szoba
105 m2
Eladó családi ház
Eladó családi ház

Körösladány

11 M Ft
2 + 1 szoba
75 m2
Eladó családi ház
Eladó családi ház

Orosháza

21.5 M Ft
3 + 1 szoba
88 m2
Eladó sorház
Eladó sorház

Gyula, Nuszbek utca

70 M Ft
4 + 1 szoba
162 m2
Eladó családi ház
Eladó családi ház

Sarkad

15 M Ft
3 szoba
110 m2
Eladó téglalakás
Eladó téglalakás

Mezőhegyes

9.9 M Ft
3 szoba
63 m2
Eladó családi ház
Eladó családi ház

Szeghalom

12.9 M Ft
4 szoba
150 m2
Eladó családi ház
Eladó családi ház

Gyomaendrőd

6.8 M Ft
1 szoba
60 m2
Eladó családi ház
Eladó családi ház

Békéscsaba

35 M Ft
2 + 6 szoba
152 m2
Eladó családi ház
Eladó családi ház

Békéscsaba

77.425 M Ft
4 szoba
95 m2
Eladó családi ház
Eladó családi ház

Kamut

9.98 M Ft
3 szoba
75 m2
Eladó családi ház
Eladó családi ház

Tótkomlós

13 M Ft
3 szoba
100 m2

Falusi CSOK ingatlanok

Eladó családi ház
Eladó családi ház

Mencshely

99 M Ft
3 szoba
126 m2
Eladó családi ház
Eladó családi ház

Úri, Fő utca

99 M Ft
6 szoba
150 m2
Eladó családi ház
Eladó családi ház

Tiszatenyő

13.99 M Ft
2 szoba
63 m2
Eladó téglalakás
Eladó téglalakás

Balatonfenyves

20.8 M Ft
2 szoba
69 m2
Eladó családi ház
Eladó családi ház

Nagypall, Szabadság utca

35.9 M Ft
3 szoba
125 m2
Eladó családi ház
Eladó családi ház

Ceglédbercel

67 M Ft
4 szoba
165 m2
Eladó családi ház
Eladó családi ház

Nyékládháza, Mátyás király utca

34.9 M Ft
2 szoba
88 m2
Eladó családi ház
Eladó családi ház

Törtel

32.9 M Ft
3 szoba
68 m2

Falusi CSOK ingatlanok

Eladó családi ház
Eladó családi ház

Balatonfenyves

430 M Ft
4 szoba
274 m2
Eladó családi ház
Eladó családi ház

Érsekcsanád

68.8 M Ft
3 szoba
120 m2
Eladó családi ház
Eladó családi ház

Törtel

39 M Ft
1 + 1 szoba
118 m2
Eladó családi ház
Eladó családi ház

Nyékládháza, Mátyás király utca

34.9 M Ft
2 szoba
88 m2
Eladó családi ház
Eladó családi ház

Törtel

74.9 M Ft
6 szoba
143 m2
Eladó ikerház
Eladó ikerház

Balatonkeresztúr, Bolygó utca

59.9 M Ft
4 szoba
83 m2
Eladó családi ház
Eladó családi ház

Nagyiván, Rákóczi Ferenc út 17

4.99 M Ft
2 szoba
50 m2
Eladó családi ház
Eladó családi ház

Töttös, Rákóczi utca

55.9 M Ft
4 szoba
129 m2