Eladó téglalakás
Miskolc, 1. emelet

+ 13 kép 1/15
32 490 000 Ft32.49 M Ft 560 172 Ft/m2
2 szoba
58 m2
1. emelet
építés éve:1972

Részletes adatok

Fűtés: Gázkonvektor
Energetikai besorolás: Nem adta meg a hirdető

Az OTP Bank lakáshitel ajánlataFizetett hirdetés

+36 30 120
Antal-Dusza Hajnalka
OTP IP Miskolc Corvin 1-3

Érdekel az OTP Bank kedvezményes lakáshitel ajánlata? *

* A kérdésre „Igen” válasz bejelölése esetén, az „Üzenet küldése” gombra kattintva kijelentem, hogy az OTP Bank Nyrt. Adatkezelési tájékoztatójának tartalmát megismertem és tudomásul vettem.

Eladó téglalakás leírása

Tágas, világos, 2 szobás tégla lakás eladó Miskolcon!

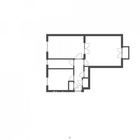
Eladó egy 58 m2-es, első emeleti lakás egy 4 emeletes téglaépítésű társasházban, Miskolc belvárosának közelében, jól megközelíthető utcában.

A lakás praktikus elrendezésű:
- külön nyíló két szoba, ideális akár fiatal pároknak, időseknek vagy kisebb családnak is
- külön fürdő és WC
- a villany- és vízvezetékek cseréje megtörtét, így ezzel már nem lesz gond
- saját, 10 m2-es tároló.
A társasházhoz zárt, közös udvar tartozik, a gyerekek itt biztonságban játszhatnak, bográcsozásra is van lehetőség.

Az ingatlan kulturált lakóközösséggel rendelkező házban található. Tömegközlekedés, bolt, óvoda, iskola a közelben, a belváros gyalogosan is néhány perc alatt elérhető.

Kiváló lehetőség mindazoknak, akik jó elosztású lakást keresnek. Saját otthonnak vagy befektetésnek is remek választás!

Érdeklődj még ma, ez a lakás többet nyújt, mint elsőre gondolnád!

Otthon Start Hitelprogram

Tekintse meg virtuális sétánkat: https://webseta.hu/r2544013/nappali_11/-310,32/8,57/100,00/

Referencia szám: M309034

Hirdetés feltöltve: 2025. 09. 26. Utoljára módosítva: 2025. 09. 27.

2 szobás téglalakások ára Miskolcon

Ebből az összehasonlításból megtudhatod, hogyan viszonyul a lakás ára a környékbeli téglalakások átlagos árához. Ez nem azt jelenti, hogy ennyivel olcsóbb vagy drágább, mint amennyit a lakás ér, hanem hogy ennyivel tér el a környékbeli átlagtól.

Ennek a m² ára
Miskolc m² ár
560 e Ft
593 e Ft 6%
Ennek az ára
Miskolc átlagár
32.49 M Ft m Ft
31.4 m Ft -3%

Sétálja körbe az ingatlant 3D-ben

Az ingatlan elhelyezkedése

Cím: Miskolc, 1. emelet

Eladó téglalakások a környékről

Eladó téglalakás
Eladó téglalakás

Miskolc

69.9 M Ft
3 + 2 szoba
105 m2
Eladó téglalakás
Eladó téglalakás

Tiszaújváros

60.06 M Ft
2 szoba
68 m2
Eladó téglalakás
Eladó téglalakás

Miskolc, Új Diósgyőr, Torontáli utca

19.99 M Ft
2 szoba
49 m2
Eladó téglalakás
Eladó téglalakás

Miskolc

39 M Ft
2 szoba
65 m2
Eladó téglalakás
Eladó téglalakás

Miskolc

49 M Ft
2 szoba
51 m2
Eladó téglalakás
Eladó téglalakás

Miskolc

29.5 M Ft
2 szoba
65 m2
Eladó téglalakás
Eladó téglalakás

Miskolc

59 M Ft
3 szoba
60 m2
Eladó téglalakás
Eladó téglalakás

Miskolc

24.95 M Ft
2 szoba
55 m2
Eladó téglalakás
Eladó téglalakás

Miskolc

59 M Ft
3 szoba
60 m2
Eladó téglalakás
Eladó téglalakás

Miskolc

41.9 M Ft
3 szoba
81 m2
Eladó téglalakás
Eladó téglalakás

Tiszaújváros, Verebély utca

23.5 M Ft
1 + 1 szoba
39 m2
Eladó téglalakás
Eladó téglalakás

Miskolc

49 M Ft
2 szoba
51 m2
Eladó téglalakás
Eladó téglalakás

Miskolc

24.9 M Ft
2 szoba
52 m2
Eladó téglalakás
Eladó téglalakás

Miskolc

59.99 M Ft
3 szoba
83 m2
Eladó téglalakás
Eladó téglalakás

Miskolc

39.9 M Ft
2 szoba
77 m2
Eladó téglalakás
Eladó téglalakás

Miskolc

49 M Ft
2 szoba
51 m2
Eladó téglalakás
Eladó téglalakás

Sárospatak, Tompa Mihály utca

23.9 M Ft
2 szoba
62 m2
Eladó téglalakás
Eladó téglalakás

Tiszaújváros

54.6 M Ft
2 szoba
80 m2
Eladó téglalakás
Eladó téglalakás

Miskolc

49.9 M Ft
3 szoba
122 m2
Eladó téglalakás
Eladó téglalakás

Miskolc

49.9 M Ft
3 szoba
122 m2
Eladó téglalakás
Eladó téglalakás

Miskolc

41.9 M Ft
3 szoba
81 m2
Eladó téglalakás
Eladó téglalakás

Miskolc

11.5 M Ft
2 szoba
59 m2
Eladó téglalakás
Eladó téglalakás

Miskolc

64 M Ft
3 szoba
60 m2
Eladó téglalakás
Eladó téglalakás

Miskolc

41.9 M Ft
3 szoba
81 m2

Falusi CSOK ingatlanok

Eladó téglalakás
Eladó téglalakás

Hegyeshalom

35 M Ft
43 m2
Eladó családi ház
Eladó családi ház

Bakonybél

119 M Ft
5 szoba
160 m2
Eladó téglalakás
Eladó téglalakás

Balatonszemes

91.5 M Ft
2 szoba
60 m2
Eladó családi ház
Eladó családi ház

Bogács

135 M Ft
2 szoba
106 m2
Eladó családi ház
Eladó családi ház

Kétpó

14.9 M Ft
1 + 2 szoba
86 m2
Eladó téglalakás
Eladó téglalakás

Nyáregyháza

61.5 M Ft
4 szoba
91 m2
Eladó családi ház
Eladó családi ház

Bakonycsernye

39 M Ft
3 szoba
350 m2
Eladó családi ház
Eladó családi ház

Somlóvásárhely

19.9 M Ft
1 szoba
59 m2