Oasis Residence

Eladó téglalakás
Miskolc, 2. emelet

+ 9 kép 1/12
67 700 000 Ft67.7 M Ft 690 816 Ft/m2
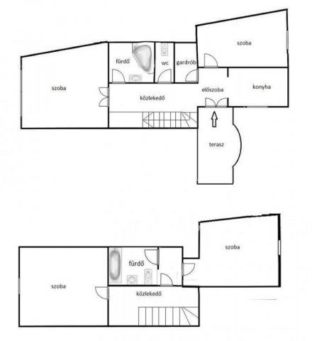
4 szoba
98 m2
2. emelet
építés éve:1995

Részletes adatok

Fűtés: Gázkazán
Energetikai besorolás: Nem adta meg a hirdető

Az OTP Bank lakáshitel ajánlataFizetett hirdetés

+36 30 120
Antal-Dusza Hajnalka
OTP IP Miskolc Corvin 1-3

Érdekel az OTP Bank kedvezményes lakáshitel ajánlata? *

* A kérdésre „Igen” válasz bejelölése esetén, az „Üzenet küldése” gombra kattintva kijelentem, hogy az OTP Bank Nyrt. Adatkezelési tájékoztatójának tartalmát megismertem és tudomásul vettem.

Eladó téglalakás leírása

Kivételes lehetőség Miskolc belvárosában!

Kedvező áron eladó egy tulajdoni lapon 97nm- es, de a valóságban bruttó 110 m2-es, két szintes, 4 szobás, 2 fürdőszobás, klimatizált lakás Miskolc szívében, egyik igényes, szigetelt, téglaépítésű házában. Központi elhelyezkedése ellenére nagyon csendes lakás. Az ingatlan nem polgári, hanem újabb építésű, így korszerű elrendezéssel és kiváló állapottal rendelkezik.

A lakásban új konyhabútor, központi fűtés, saját pince, valamint egy ritka extrának számító, udvari gépkocsibeálló is a leendő tulajdonos kényelmét szolgálja zárható elektromos kapuval.

Elhelyezkedése páratlan: Miskolc legjobb részén, központi, mégis csendes környezetben található, ahol minden fontos szolgáltatás, bolt, iskola, hivatal, tömegközlekedés pár perc sétával elérhető.

Kiváló befektetési lehetőség is, hiszen a lokáció miatt a lakás könnyen és jól kiadható, ráadásul ezen a környéken rendkívül ritka az eladó ingatlan ? ez tovább növeli az értékét és megtérülését.

Az ingatlan hitelképes, és CSOK (3 vagy több gyermek esetén) is igénybe vehető.

Ne hagyja ki ezt az egyedülálló lehetőséget - ilyen lakás ritkán kerül a piacra!

Referencia szám: M311487

Hirdetés feltöltve: 2025. 09. 26. Utoljára módosítva: 2026. 01. 13.

4 szobás téglalakások ára Miskolcon

Ebből az összehasonlításból megtudhatod, hogyan viszonyul a lakás ára a környékbeli téglalakások átlagos árához. Ez nem azt jelenti, hogy ennyivel olcsóbb vagy drágább, mint amennyit a lakás ér, hanem hogy ennyivel tér el a környékbeli átlagtól.

Ennek a m² ára
Miskolc m² ár
691 e Ft
650 e Ft -6%
Ennek az ára
Miskolc átlagár
67.7 M Ft m Ft
73.4 m Ft 8%

Az ingatlan elhelyezkedése

Cím: Miskolc, 2. emelet

Eladó téglalakások a környékről

Eladó téglalakás
Eladó téglalakás

Miskolc

64.99 M Ft
4 szoba
119 m2
Eladó téglalakás
Eladó téglalakás

Miskolc

163.35 M Ft
4 szoba
110 m2
Eladó téglalakás
Eladó téglalakás

Ózd

8.9 M Ft
2 szoba
57 m2
Eladó téglalakás
Eladó téglalakás

Sárospatak, Tompa Mihály utca

23.9 M Ft
2 szoba
62 m2
Eladó téglalakás
Eladó téglalakás

Ózd

10.4 M Ft
2 szoba
48 m2
Eladó téglalakás
Eladó téglalakás

Miskolc, Új Diósgyőr, Torontáli utca

19.99 M Ft
2 szoba
49 m2
Eladó téglalakás
Eladó téglalakás

Tiszaújváros, Verebély utca

23.9 M Ft
1 + 1 szoba
39 m2
Eladó téglalakás
Eladó téglalakás

Miskolc

38.657 M Ft
2 szoba
43 m2
Eladó téglalakás
Eladó téglalakás

Miskolc

68.99 M Ft
3 szoba
76 m2
Eladó téglalakás
Eladó téglalakás

Miskolc

54.45 M Ft
2 szoba
51 m2
Eladó téglalakás
Eladó téglalakás

Miskolc

9.99 M Ft
2 szoba
59 m2
Eladó téglalakás
Eladó téglalakás

Ózd

4.99 M Ft
2 szoba
55 m2
Eladó téglalakás
Eladó téglalakás

Ózd

9.99 M Ft
2 szoba
58 m2
Eladó téglalakás
Eladó téglalakás

Miskolc

65.34 M Ft
3 szoba
60 m2
Eladó téglalakás
Eladó téglalakás

Miskolc

51.9 M Ft
3 szoba
82 m2
Eladó téglalakás
Eladó téglalakás

Miskolc

54.9 M Ft
3 szoba
122 m2
Eladó téglalakás
Eladó téglalakás

Miskolc

59.9 M Ft
2 + 3 szoba
97 m2
Eladó téglalakás
Eladó téglalakás

Miskolc

123.048 M Ft
2 szoba
102 m2
Eladó téglalakás
Eladó téglalakás

Miskolc

41.657 M Ft
2 szoba
51 m2
Eladó téglalakás
Eladó téglalakás

Miskolc, Új Diósgyőr, Torontáli utca

19.99 M Ft
2 szoba
49 m2
Eladó téglalakás
Eladó téglalakás

Putnok

13.6 M Ft
3 szoba
123 m2
Eladó téglalakás
Eladó téglalakás

Miskolc

25.4 M Ft
2 szoba
51 m2
Eladó téglalakás
Eladó téglalakás

Miskolc

65.34 M Ft
3 szoba
60 m2
Eladó téglalakás
Eladó téglalakás

Miskolc

163.35 M Ft
4 szoba
110 m2

Falusi CSOK ingatlanok

Eladó családi ház
Eladó családi ház

Újkígyós

11.9 M Ft
3 szoba
88 m2
Eladó családi ház
Eladó családi ház

Nagypall, Szabadság utca

35.9 M Ft
3 szoba
125 m2
Eladó családi ház
Eladó családi ház

Pannonhalma

83.9 M Ft
4 szoba
97 m2
Eladó családi ház
Eladó családi ház

Jakabszállás

69.99 M Ft
1 + 4 szoba
91 m2
Eladó családi ház
Eladó családi ház

Darnózseli

79.9 M Ft
4 szoba
104 m2
Eladó családi ház
Eladó családi ház

Kenyeri

39.9 M Ft
3 szoba
94 m2
Eladó családi ház
Eladó családi ház

Balatonszárszó

178 M Ft
6 szoba
260 m2
Eladó családi ház
Eladó családi ház

Rábapaty

99.99 M Ft
5 szoba
132 m2