Astora Art House

Eladó téglalakás
Mezőkövesd

+ 17 kép 1/20
39 900 000 Ft39.9 M Ft 346 957 Ft/m2
4 szoba
115 m2
építés éve:1970

Részletes adatok

Állapot: Átlagos
Fűtés: Gázkazán
Parkolás: Garázs
Energetikai besorolás: Nem adta meg a hirdető

Az OTP Bank lakáshitel ajánlataFizetett hirdetés

+36 30 181
Molnár Tamás
referens

Érdekel az OTP Bank kedvezményes lakáshitel ajánlata? *

* A kérdésre „Igen” válasz bejelölése esetén, az „Üzenet küldése” gombra kattintva kijelentem, hogy az OTP Bank Nyrt. Adatkezelési tájékoztatójának tartalmát megismertem és tudomásul vettem.

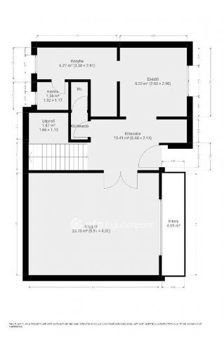
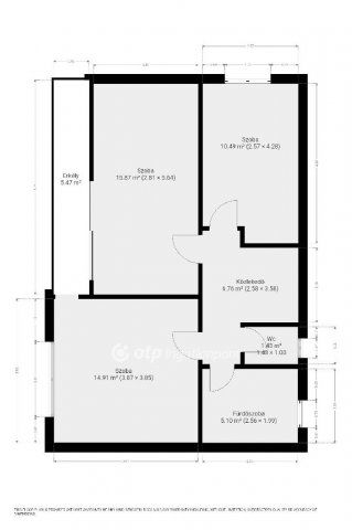
Eladó téglalakás leírása

Mezőkövesden kínálok megvételre egy kiváló elosztású, kétszintes, 3 szoba + nappalis lakást, amely ideális választás lehet családoknak vagy akár otthoni munkavégzéshez is.

Az ingatlan napelemes rendszerrel felszerelt, így a fenntartási költségek kedvezően alakulnak. A fűtésről gázkazán gondoskodik, megbízható és jól szabályozható módon.

A lakás alatt egy 55 m2-es garázs és tároló található, amely közvetlenül az épületből is megközelíthető, így nemcsak kényelmes, hanem praktikus megoldást is nyújt. Az ingatlanhoz saját, lekerített udvarrész tartozik, amely kiválóan alkalmas pihenésre vagy kisebb kert kialakítására.

Főbb jellemzők:

- 3 szoba + nappali.

- Kétszintes kialakítás.

- Napelemes rendszer.

- Gázkazános fűtés.

- 55 m2-es garázs és tároló (belső megközelítéssel).

- Saját udvarrész.

OTP Banki hátterünknek köszönhetően finanszírozási igényekben (pl. Otthon Start Program, Babaváró, Falusi CSOK, CSOK Plusz, Lakáshitel, Személyi kölcsön stb.), illetve biztosítások tekintetében is díjmentesen, soron kívüli ügyintézéssel segítem ügyfeleim! Referenciaszám: M320460

Hirdetés feltöltve: 2026. 01. 16. Utoljára módosítva: 2026. 01. 16.

Az ingatlan elhelyezkedése

Cím: Mezőkövesd

Eladó ingatlanok a környékről

Eladó téglalakás
Eladó téglalakás

Sárospatak, Tompa Mihály utca

23.9 M Ft
2 szoba
62 m2
Eladó téglalakás
Eladó téglalakás

Mezőkövesd, Mátyás Király 121

109 M Ft
5 szoba
270 m2
Eladó családi ház
Eladó családi ház

Sajóecseg

39.9 M Ft
2 + 1 szoba
75 m2
Eladó téglalakás
Eladó téglalakás

Ózd

10.4 M Ft
2 szoba
48 m2
Eladó téglalakás
Eladó téglalakás

Miskolc

49.9 M Ft
3 szoba
122 m2
Eladó téglalakás
Eladó téglalakás

Miskolc

9.99 M Ft
2 szoba
59 m2
Eladó téglalakás
Eladó téglalakás

Putnok

8.8 M Ft
2 szoba
52 m2
Eladó panellakás
Eladó panellakás

Miskolc

29.89 M Ft
2 szoba
55 m2
Eladó téglalakás
Eladó téglalakás

Miskolc

65.34 M Ft
3 szoba
60 m2
Eladó téglalakás
Eladó téglalakás

Mezőkövesd

37.9 M Ft
2 + 1 szoba
63 m2
Eladó családi ház
Eladó családi ház

Varbó

7.5 M Ft
2 szoba
86 m2
Eladó téglalakás
Eladó téglalakás

Miskolc

29.9 M Ft
2 szoba
58 m2
Eladó téglalakás
Eladó téglalakás

Borsodnádasd

7.9 M Ft
4 szoba
113 m2
Eladó téglalakás
Eladó téglalakás

Ózd

8.9 M Ft
2 szoba
57 m2
Eladó családi ház
Eladó családi ház

Alsózsolca

24.5 M Ft
3 szoba
138 m2
Eladó telek
Eladó telek

Sajólád

5.49 M Ft
691 m²
Eladó üzlethelyiség
Eladó üzlethelyiség

Bogács

245 M Ft
770 m2
Eladó téglalakás
Eladó téglalakás

Miskolc

54.45 M Ft
2 szoba
51 m2
Eladó téglalakás
Eladó téglalakás

Sárospatak

13.9 M Ft
3 szoba
89 m2
Eladó téglalakás
Eladó téglalakás

Miskolc, Új Diósgyőr, Torontáli utca

19.99 M Ft
2 szoba
49 m2
Eladó téglalakás
Eladó téglalakás

Miskolc

59.9 M Ft
2 + 3 szoba
97 m2
Eladó téglalakás
Eladó téglalakás

Miskolc

23.99 M Ft
2 szoba
54 m2
Eladó téglalakás
Eladó téglalakás

Miskolc

29.9 M Ft
2 szoba
58 m2
Eladó panellakás
Eladó panellakás

Miskolc

27.9 M Ft
2 szoba
51 m2

Falusi CSOK ingatlanok

Eladó családi ház
Eladó családi ház

Kölked

42 M Ft
3 szoba
100 m2
Eladó családi ház
Eladó családi ház

Tóalmás

34.9 M Ft
4 szoba
120 m2
Eladó családi ház
Eladó családi ház

Kenyeri

39.9 M Ft
3 szoba
94 m2
Eladó családi ház
Eladó családi ház

Kunadacs

114.9 M Ft
4 szoba
174 m2
Eladó családi ház
Eladó családi ház

Recsk

40 M Ft
3 + 1 szoba
130 m2
Eladó családi ház
Eladó családi ház

Alap

17.5 M Ft
4 szoba
111 m2
Eladó családi ház
Eladó családi ház

Vásárosdombó

14.99 M Ft
2 szoba
69 m2
Eladó családi ház
Eladó családi ház

Álmosd

13.9 M Ft
2 szoba
80 m2