Astora Art House

Eladó téglalakás
Mezőkövesd, 2. emelet

24 900 000 Ft24.9 M Ft 498 000 Ft/m2
2 szoba
50 m2
2. emelet
építés éve:2000

Részletes adatok

Fűtés: Házközponti
Energetikai besorolás: Nem adta meg a hirdető

Az OTP Bank lakáshitel ajánlataFizetett hirdetés

+36 30 181
Molnár Tamás
OTP Ingatlanpont Miskolc Szemere

Érdekel az OTP Bank kedvezményes lakáshitel ajánlata? *

* A kérdésre „Igen” válasz bejelölése esetén, az „Üzenet küldése” gombra kattintva kijelentem, hogy az OTP Bank Nyrt. Adatkezelési tájékoztatójának tartalmát megismertem és tudomásul vettem.

Eladó téglalakás leírása

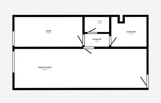
Mezőkövesd központjában eladó egy 50,8 nm-es tetőtéri lakás. Az ingatlan egy 16 lakásos tégla építésű társasházban található, amely 2000-ben lett átadva. Maga az épület és a lakás is kiváló állapotú, bútorozást követően azonnali költözésre alkalmas. Található benne egy majd 30 négyzetméteres helység, melyben kialakítható egy nappalis konyha. Ezen kívül van az ingatlanban egy szoba, fürdő, külön wc, és egy közlekedő. A fűtésről és a melegvízről egy gázkészülék gondoskodik. A lakáshoz egy közös tároló is tartozik. Központi elhelyezkedésének köszönhetően, minden fontos, a hétköznapokhoz elengedhetetlen intézmény karnyújtásnyira van. Fiatalok életkezdésére, kis családoknak, de idősebb lakáskeresőknek is ajánlom ezt a nagyon nyugodt környezetben, és kiváló lakóközösséggel bíró ingatlant. Banki és ügyvédi hátteremmel segítek a finanszírozásban és a zökkenőmentes ügyintézésben! Ha felkeltette az ingatlan az érdeklődését, kérem hívjon és hivatkozzon az MM307376 referenciaszámra!

Hirdetés feltöltve: 2025. 11. 26.

2 szobás téglalakások ára Mezőkövesden

Ebből az összehasonlításból megtudhatod, hogyan viszonyul a lakás ára a környékbeli téglalakások átlagos árához. Ez nem azt jelenti, hogy ennyivel olcsóbb vagy drágább, mint amennyit a lakás ér, hanem hogy ennyivel tér el a környékbeli átlagtól.

Ennek a m² ára
Mezőkövesd m² ár
498 e Ft
666 e Ft 25%
Ennek az ára
Mezőkövesd átlagár
24.9 M Ft m Ft
41.3 m Ft 40%

Az ingatlan elhelyezkedése

Cím: Mezőkövesd, 2. emelet

Eladó ingatlanok a környékről

Eladó téglalakás
Eladó téglalakás

Sárospatak, Tompa Mihály utca

23.9 M Ft
2 szoba
62 m2
Eladó téglalakás
Eladó téglalakás

Ózd

9.99 M Ft
2 szoba
58 m2
Eladó téglalakás
Eladó téglalakás

Mezőkövesd

24.9 M Ft
2 szoba
50 m2
Eladó családi ház
Eladó családi ház

Bőcs

39.9 M Ft
6 szoba
187 m2
Eladó téglalakás
Eladó téglalakás

Mezőkövesd

24.9 M Ft
2 szoba
50 m2
Eladó téglalakás
Eladó téglalakás

Miskolc, Új Diósgyőr, Torontáli utca

19.99 M Ft
2 szoba
49 m2
Eladó téglalakás
Eladó téglalakás

Sátoraljaújhely

17 M Ft
2 szoba
52 m2
Eladó családi ház
Eladó családi ház

Berzék, 3575 Berzék, Petőfi Sándor utca 49

2.8 M Ft
1 + 1 szoba
91 m2
Eladó téglalakás
Eladó téglalakás

Mezőkövesd

24.9 M Ft
2 szoba
50 m2
Eladó téglalakás
Eladó téglalakás

Borsodnádasd

7.9 M Ft
4 szoba
113 m2
Eladó téglalakás
Eladó téglalakás

Tiszaújváros, Verebély utca

23.9 M Ft
1 + 1 szoba
39 m2
Eladó téglalakás
Eladó téglalakás

Mezőkövesd

37.9 M Ft
2 + 1 szoba
63 m2
Eladó téglalakás
Eladó téglalakás

Ózd

10.4 M Ft
2 szoba
48 m2
Eladó családi ház
Eladó családi ház

Ózd, Ózd falu, 3600 Ózd, Pázmány út 54

3.7 M Ft
1 + 1 szoba
89 m2
Eladó téglalakás
Eladó téglalakás

Sátoraljaújhely

32.9 M Ft
4 szoba
105 m2
Eladó téglalakás
Eladó téglalakás

Mezőkövesd

41 M Ft
1 + 2 szoba
61 m2
Eladó téglalakás
Eladó téglalakás

Tiszaújváros

60.06 M Ft
2 szoba
68 m2
Eladó téglalakás
Eladó téglalakás

Putnok

8.8 M Ft
2 szoba
52 m2
Eladó családi ház
Eladó családi ház

Szikszó, 3800 Szikszó, Bajcsy-Zsilinszky út 42

5.4 M Ft
1 + 1 szoba
55 m2
Eladó téglalakás
Eladó téglalakás

Miskolc

49.9 M Ft
3 szoba
122 m2
Eladó nyaraló
Eladó nyaraló

Mályi

31.9 M Ft
2 szoba
56 m2
Eladó családi ház
Eladó családi ház

Mezőcsát, 3450 Mezőcsát, Füzes út 2

7.5 M Ft
1 + 1 szoba
73 m2
Eladó családi ház
Eladó családi ház

Szomolya

62.85 M Ft
4 szoba
117 m2
Eladó téglalakás
Eladó téglalakás

Miskolc

41.657 M Ft
2 szoba
51 m2

Falusi CSOK ingatlanok

Eladó ikerház
Eladó ikerház

Seregélyes

39.9 M Ft
4 szoba
150 m2
Eladó családi ház
Eladó családi ház

Nagyberki, Újváros u

20.9 M Ft
3 szoba
88 m2
Eladó családi ház
Eladó családi ház

Kemeneshőgyész

8 M Ft
2 szoba
60 m2
Eladó családi ház
Eladó családi ház

Baksa

61.99 M Ft
3 szoba
100 m2
Eladó családi ház
Eladó családi ház

Pécsely, Szőlő Dülő

499 M Ft
4 + 2 szoba
183 m2
Eladó családi ház
Eladó családi ház

Sárisáp, Orgona utca

60 M Ft
4 szoba
145 m2
Eladó családi ház
Eladó családi ház

Nagyhegyes

47.9 M Ft
2 szoba
72 m2
Eladó családi ház
Eladó családi ház

Pat

10.9 M Ft
5 szoba
110 m2