Astora Olive Club House

Eladó téglalakás
Kőszegszerdahely, földszint

Figyelem!

Ez az ingatlan a 2019.07.01-től induló falusi CSOK által támogatott településen található

+ 9 kép 1/12
35 900 000 Ft35.9 M Ft 1 055 882 Ft/m2
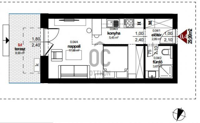
1 szoba
34 m2
földszint
építés éve:2026

Részletes adatok

Fűtés: Elektromos
Közmű: Villany, Csatorna
Energetikai besorolás: Nem adta meg a hirdető

Az OTP Bank lakáshitel ajánlataFizetett hirdetés

+36 70 465
Tóth Éva
Otthon Centrum - Kőszeg

Érdekel az OTP Bank kedvezményes lakáshitel ajánlata? *

* A kérdésre „Igen” válasz bejelölése esetén, az „Üzenet küldése” gombra kattintva kijelentem, hogy az OTP Bank Nyrt. Adatkezelési tájékoztatójának tartalmát megismertem és tudomásul vettem.

Eladó téglalakás leírása

Kínálatunkban egy új, kiváló állapotú 34 négyzetméteres garzon lakás található Kőszegszerdahelyen. A modern, prémium kivitelezésű ingatlan tágas nappalival, konyha-étkezővel és egy elegáns fürdőszobával rendelkezik, amely minden igényt kielégít. A lakás fűtése elektromos (infra) rendszerrel, míg a hűtésről klímaberendezés gondoskodik, így az év bármely időszakában kellemes hőmérsékletet biztosít. Az Inverteres hűtő/fűtő klíma , hővisszanyerős légcserélő gondoskodik a folyamatos jó minőségű levegőről.
Minimális rezsiköltség, hatékony és gyors, egyedi fűtésrendszer, nincsenek közös rezsiszámolások… A lakás különlegessége a 8,65 négyzetméteres terasz, amely közvetlen 40 nm kertkapcsolattal rendelkezik. Ez a zöld oázis ideális helyszínt biztosít a pihenéshez, baráti összejövetelekhez vagy akár egy nyugodt reggeli kávézáshoz. A LED hangulatvilágítás pedig még inkább fokozza a lakás hangulatát, lehetővé téve, hogy otthona mindig a legjobb fényben tündököljön. A környék csendes és biztonságos, ideális választás mindazok számára, akik szeretnék elkerülni a város zaját, miközben könnyen elérhetik a szükséges szolgáltatásokat. A közlekedési lehetőségek is kedvezőek: a közeli nagyvárosok és Ausztria autóval könnyen megközelíthető főbb utak révén. A közeli településeken található boltok, éttermek és szabadidős lehetőségek mind hozzájárulnak ahhoz, hogy az itt lakók mindennapjai kényelmesebbek és élvezetesebbek legyenek. Ez a tehermentes ingatlan nem csupán lakóhely, hanem egy életstílus megtestesítője. A hegyvidéki környezet és a modern megoldások tökéletes harmóniát alkotnak, így Ön is részese lehet ennek az élménynek. Ha bármilyen kérdése merülne fel, vagy szeretne többet megtudni erről a páratlan lehetőségről, bizalommal forduljon hozzánk. Az Ön elégedettsége a legfontosabb számunkra, és örömmel segítünk Önnek a legjobb döntés meghozatalában.
Projekt bemutatása

Modern megoldások, otthonos kényelem Kőszeg-hegyalján!
Kőszegszerdahelyen várja új tulajdonosait 21 lakásos, tégla építésű, szigetelt 2 szintes társasház. A hangulatos, természetközeli környezet, szub-alpoki klíma, Ausztria közelsége mind rendelkezésre áll az itt élők számára.
Az épület modern, letisztult stílusával és korszerű technológiájával a jövő otthonkeresőit célozza meg. Minden lakás:
- elektromos infra film padlófűtéssel rendelkezik, amely nemcsak kényelmes, de környezetbarát is.
- Fokozott szigetelést kapott a padozat, a födém, a lábazat és a homlokzat tekintetében, megfelelve a legszigorúbb szabványoknak.
- Háromrétegű, hő- és hangszigetelt nyílászárókkal van felszerelve.
-meleg víz ellátást hőszivattyús villanybojler biztosítja
- klíma, terasz minden lakásban
A vételár tartalmazza:
- szobákban laminált padló 5500 Ft/nm
wc: tervrajzok szerinti darabszámban 50.000 Ft/db
mosdószekrény mosdóval: Leziter Cube 60 (ár: 75.000.-)
Csap: mosdócsap 15.000 Ft/db
Zuhany/kádtöltő csap 25.000 Ft/db
Zuhanykabin / kád 150.000 Ft/db
- vizes helyiségekben vízálló laminált melegburkolat készül 7000 Ft/nm
• Egy saját parkolóhelyet.
• Kulcsrakész állapotot burkolatok, kapcsolók dugaljak, szaniterek, beltéri ajtók tartalmazzák.
A tárolást szintenként saját tároló segíti korlátozott számban.

Hirdetés feltöltve: 2025. 10. 23. Utoljára módosítva: 2025. 11. 09.

Az ingatlan elhelyezkedése

Cím: Kőszegszerdahely, földszint

Eladó téglalakások a környékről

Eladó téglalakás
Eladó téglalakás

Kőszegszerdahely

34.5 M Ft
1 szoba
34 m2
Eladó téglalakás
Eladó téglalakás

Szombathely

87.75 M Ft
4 szoba
111 m2
Eladó téglalakás
Eladó téglalakás

Kőszegszerdahely

47.9 M Ft
2 szoba
50 m2
Eladó téglalakás
Eladó téglalakás

Körmend, Bástya utca

12 M Ft
2 szoba
70 m2
Eladó téglalakás
Eladó téglalakás

Kőszegszerdahely

44.9 M Ft
2 szoba
42 m2
Eladó téglalakás
Eladó téglalakás

Sárvár

35.9 M Ft
2 szoba
47 m2
Eladó téglalakás
Eladó téglalakás

Szombathely

86.73 M Ft
4 szoba
96 m2
Eladó téglalakás
Eladó téglalakás

Répcelak, Petőfi Sándor utca

46.2 M Ft
4 szoba
65 m2
Eladó téglalakás
Eladó téglalakás

Kőszegszerdahely

44.9 M Ft
2 szoba
43 m2
Eladó téglalakás
Eladó téglalakás

Kőszegszerdahely

38.9 M Ft
2 szoba
35 m2
Eladó téglalakás
Eladó téglalakás

Kőszegszerdahely

44.9 M Ft
2 szoba
49 m2
Eladó téglalakás
Eladó téglalakás

Répcelak, Petőfi Sándor utca

35.7 M Ft
2 szoba
54 m2
Eladó téglalakás
Eladó téglalakás

Kőszegszerdahely

36.5 M Ft
1 szoba
34 m2
Eladó téglalakás
Eladó téglalakás

Sitke

13 M Ft
1 szoba
32 m2
Eladó téglalakás
Eladó téglalakás

Szombathely

71.99 M Ft
120 m2
Eladó téglalakás
Eladó téglalakás

Kőszegszerdahely

35.9 M Ft
1 szoba
34 m2
Eladó téglalakás
Eladó téglalakás

Vasvár, Március 15. tér

18 M Ft
1 + 1 szoba
56 m2
Eladó téglalakás
Eladó téglalakás

Kőszegszerdahely

44.9 M Ft
2 szoba
43 m2
Eladó téglalakás
Eladó téglalakás

Sárvár

38 M Ft
5 szoba
116 m2
Eladó téglalakás
Eladó téglalakás

Kőszegszerdahely

49.9 M Ft
2 szoba
47 m2
Eladó téglalakás
Eladó téglalakás

Celldömölk

27.99 M Ft
4 szoba
155 m2
Eladó téglalakás
Eladó téglalakás

Kőszegszerdahely

34.5 M Ft
1 szoba
32 m2
Eladó téglalakás
Eladó téglalakás

Szombathely

62.8 M Ft
3 szoba
66 m2
Eladó téglalakás
Eladó téglalakás

Kőszegszerdahely

34.5 M Ft
1 szoba
34 m2

Falusi CSOK ingatlanok

Eladó családi ház
Eladó családi ház

Tápiógyörgye

22.9 M Ft
3 szoba
120 m2
Eladó családi ház
Eladó családi ház

Elek

21.5 M Ft
2 szoba
76 m2
Eladó családi ház
Eladó családi ház

Vasszécseny

20 M Ft
2 szoba
139 m2
Eladó családi ház
Eladó családi ház

Szarvaskend

26.9 M Ft
2 szoba
83 m2
Eladó családi ház
Eladó családi ház

Darnózseli

79.9 M Ft
4 szoba
104 m2
Eladó családi ház
Eladó családi ház

Újkígyós

11.99 M Ft
2 szoba
77 m2
Eladó téglalakás
Eladó téglalakás

Hegyeshalom

56.9 M Ft
3 szoba
80 m2
Eladó családi ház
Eladó családi ház

Mecsér, Nincs utca

49.9 M Ft
3 szoba
68 m2

Falusi CSOK ingatlanok

Eladó családi ház
Eladó családi ház

Kenyeri

39.9 M Ft
3 szoba
94 m2
Eladó családi ház
Eladó családi ház

Szulok

37.9 M Ft
3 szoba
175 m2
Eladó családi ház
Eladó családi ház

Mezőzombor

13.8 M Ft
2 + 1 szoba
81 m2
Eladó családi ház
Eladó családi ház

Elek

21.5 M Ft
2 szoba
76 m2
Eladó családi ház
Eladó családi ház

Somlóvásárhely, Rákóczi utca

41.9 M Ft
3 szoba
103 m2
Eladó családi ház
Eladó családi ház

Iváncsa

73.9 M Ft
1 + 3 szoba
97 m2
Eladó családi ház
Eladó családi ház

Balatonfenyves

430 M Ft
4 szoba
274 m2
Eladó családi ház
Eladó családi ház

Hövej

149.9 M Ft
4 szoba
115 m2