NapForrás 20 - Buda

Eladó téglalakás
Kiskunhalas, földszint

+ 16 kép 1/19
18 274 795 Ft18.275 M Ft 228 435 Ft/m2
3 szoba
80 m²
földszint
építés éve:1950

Részletes adatok

Állapot: Felújított
Fűtés: Gázkonvektor
Emelet: földszint
Közmű: Víz, Gáz, Villany, Csatorna
Energetikai besorolás: G

Az OTP Bank lakáshitel ajánlataFizetett hirdetés

+36 30 509
Juhász Ingatlan
Juhász Ingatlan

Érdekel az OTP Bank kedvezményes lakáshitel ajánlata? *

* A kérdésre „Igen” válasz bejelölése esetén, az „Üzenet küldése” gombra kattintva kijelentem, hogy az OTP Bank Nyrt. Adatkezelési tájékoztatójának tartalmát megismertem és tudomásul vettem.

Eladó téglalakás leírása

FELÚJÍTOTT BELSŐ HÁZRÉSZ ELADÓ!!!
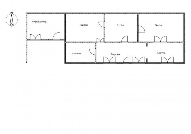
Bács-Kiskun vármegye, Kiskunhalas központjában 630 m2-es telken 80 m2-es felújított belső házrész eladó.Az ingatlanfalazata tégla,alapja tégla. Kialakításra került benne két szoba,kisebb nappali,(vagy három szoba) fürdőszoba, közlekedő, konyha.Plusz egy nyári konyha külön bejárattal rendelkezik.2024-ben felújításon esett át.Nyílászárók cseréje műanyagra megtörtént. Az ingatlan falai gipszkarton borítást kaptak,mely alá kőzetgyapot és párazáró fólia került. A szobák új laminált padló burkolattal lettek ellátva, a többi helyiség járólap illetve PVC .Fűtéséről gázkonvektorok gondoskodnak. Melegvíz-ellátást gázbojler biztosítja. A házrészhez 15 m2 körüli garázs , illetve egy 18m2 pince tartozik.Az ingatlan egy éve eset át egy tisztasági festésen.Az ingatlan hátsófal része 10 cm szigetelést kapott. Az udvar füvesített és jelenleg is rendezés alatt áll.
Irányár:17.800.000 Ft
Típus Alapterület
Szoba 20 m2
Szoba 17,4 m2
Szoba/Nappali 10m2
Konyha 13m2
Fürdőszoba+WC 4,6m2
Közlekedő 15,3m2
Pince 18m2
Ez egy kiváló lehetőség egy olyan családnak, aki saját otthont keres Kiskunhalas központjában. Ha érdeklődik az ingatlan iránt, kérjük, lépjen kapcsolatba velünk az alábbi elérhetőségeken:
Elérhetőség:
· Telefonszám: +36 30 5090 434
· Email: juhaszk.ingatlan@gmail.com
· Weboldal : https://juhaszingatlan.hu
· Whatsapp https://wa.me/36305090434 itt ingyenesen tud hívni illetve üzenetet küldeni!
Az ingatlan megtekintéséhez és további információkért hívja fel irodánkat. Köszönjük érdeklődését!

Hirdetés feltöltve: 2026. 03. 14. Utoljára módosítva: 2026. 04. 28.

3 szobás téglalakások ára Kiskunhalason

Ebből az összehasonlításból megtudhatod, hogyan viszonyul a lakás ára a környékbeli téglalakások átlagos árához. Ez nem azt jelenti, hogy ennyivel olcsóbb vagy drágább, mint amennyit a lakás ér, hanem hogy ennyivel tér el a környékbeli átlagtól.

Ennek a m² ára
Kiskunhalas m² ár
228 e Ft
233 e Ft 2%
Ennek az ára
Kiskunhalas átlagár
18.275 M Ft m Ft
21 m Ft 13%

Az ingatlan elhelyezkedése

Cím: Kiskunhalas, földszint

Eladó ingatlanok a környékről

Kiskunfélegyháza
Eladó téglalakás

Kiskunfélegyháza

27 M Ft
4 szoba
101 m²
Kiskunhalas
Eladó téglalakás

Kiskunhalas

37.9 M Ft
3 szoba
66 m²
Bácsalmás
Eladó téglalakás

Bácsalmás

16.49 M Ft
2 + 1 szoba
65 m²
Kiskunhalas
Eladó téglalakás

Kiskunhalas

36.9 M Ft
2 szoba
70 m²
Bácsalmás
Eladó téglalakás

Bácsalmás

7.49 M Ft
3 szoba
77 m²
Kiskunhalas
Eladó téglalakás

Kiskunhalas

25.99 M Ft
2 szoba
54 m²
Kiskunhalas
Eladó téglalakás

Kiskunhalas

15 M Ft
1 szoba
36 m²
Tiszakécske
Eladó téglalakás

Tiszakécske

33.9 M Ft
1 szoba
39 m²
Baja
Eladó téglalakás

Baja

37.99 M Ft
2 szoba
70 m²
Kecskemét
Eladó téglalakás

Kecskemét

48.7 M Ft
2 szoba
56 m²
Baja, Jelky András tér
Eladó téglalakás

Baja

65 M Ft
3 szoba
75 m²
Kecskemét, Kossuth-város, Bakócz Tamás utca 1
Eladó téglalakás

Kecskemét

81 M Ft
3 szoba
60 m²
Kiskunhalas
Eladó téglalakás

Kiskunhalas

16.99 M Ft
1 szoba
40 m²
Baja
Eladó téglalakás

Baja

92 M Ft
5 szoba
152 m²
Kiskunhalas
Eladó téglalakás

Kiskunhalas

19.99 M Ft
2 szoba
54 m²
Kecskemét, Kossuth-város, Bakócz Tamás utca 1
Eladó téglalakás

Kecskemét

88.4 M Ft
3 szoba
67 m²
Kiskunhalas
Eladó téglalakás

Kiskunhalas

34.99 M Ft
3 szoba
66 m²
Kiskunhalas
Eladó téglalakás

Kiskunhalas

36.9 M Ft
2 szoba
70 m²
Kiskunhalas
Eladó téglalakás

Kiskunhalas

29.9 M Ft
3 szoba
105 m²
Lakitelek
Eladó nyaraló

Lakitelek

40 M Ft
6 szoba
104 m²
Kecskemét
Eladó téglalakás

Kecskemét

86 M Ft
2 szoba
58 m²
Kiskunhalas
Eladó téglalakás

Kiskunhalas

43.9 M Ft
3 szoba
66 m²
Kecskemét, Kossuth-város, Bakócz Tamás utca 1
Eladó téglalakás

Kecskemét

82.5 M Ft
3 szoba
66 m²
Kecskemét
Eladó téglalakás

Kecskemét

69.9 M Ft
2 + 1 szoba
83 m²

Falusi CSOK ingatlanok

Törtel
Eladó családi ház

Törtel

33 M Ft
3 szoba
100 m²
Batyk, Dózsa György utca
Eladó családi ház

Batyk

39.624 M Ft
2 szoba
93 m²
Zsámbok
Eladó családi ház

Zsámbok

63.5 M Ft
4 szoba
108 m²
Kaposgyarmat
Eladó családi ház

Kaposgyarmat

695 M Ft
6 szoba
610 m²
Öreglak
Eladó családi ház

Öreglak

110 M Ft
8 szoba
205 m²
Mikebuda
Eladó családi ház

Mikebuda

45.9 M Ft
7 szoba
120 m²
Badacsonytördemic
Eladó családi ház

Badacsonytördemic

90 M Ft
3 szoba
130 m²
Hegyeshalom, Margaréta utca 12
Eladó téglalakás

Hegyeshalom

32.89 M Ft
1 szoba
27 m²