Astora Márvány8

Eladó téglalakás
Kiskunhalas, földszint

+ 17 kép 1/20
36 900 000 Ft36.9 M Ft 527 143 Ft/m2
2 szoba
70 m²
földszint
építés éve:1920

Részletes adatok

Fűtés: Gázkonvektor
Emelet: földszint
Energetikai besorolás: Nem adta meg a hirdető

Az OTP Bank lakáshitel ajánlataFizetett hirdetés

+36 30 733
Puskásné Ember Ninette
Szeged Széchenyi tér 6 - OTP Ingatlanpont Iroda

Érdekel az OTP Bank kedvezményes lakáshitel ajánlata? *

* A kérdésre „Igen” válasz bejelölése esetén, az „Üzenet küldése” gombra kattintva kijelentem, hogy az OTP Bank Nyrt. Adatkezelési tájékoztatójának tartalmát megismertem és tudomásul vettem.

Eladó téglalakás leírása

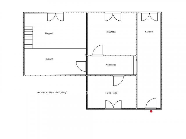
Bács-Kiskun vármegyében, Kiskunhalas belvárosában, két szobás 70 nm-es azonnal költözhető házrész eladó!
A vegyes falazatú, négy lakrészből álló ház osztatlan közös tulajdonú telken fekszik. Az eladásra kínált ingatlan egy belső lakrész, mely a közös udvarból, egy kerítéssel elválasztott, kedves hangulatú előkertből közelíthető meg.
A 2018-ban teljeskörűen felújított lakásban előszoba, konyha, közlekedő, hálógalériás nappali, szoba, fürdő és WC egy helyiségben kerültek kialakításra. Az otthon melegét gázkonvektorok biztosítják, a melegvizet villanybojler szolgáltatja. A felújítás során az elektromos vezetékek, vízvezeték ki lettek cserélve, az összes helyiség új járólapot, laminált padló burkolást kapott.
A lakrészhez saját udvari garázs és tároló mellett egy 250 nm-es kertrész is tartozik.
Az ingatlan infrastruktúrája nagyon jó, pár perc sétával elérhető a belváros, hivatalok, üzletek, iskola, óvoda, valamint a városi kórház és a városi fürdő is.
Kiváló választás fiatalok, idősebbek, vagy akár befektetési céllal is.
Megvásárlásához Babaváró és kedvezményes hitel is igénybe vehető, melynek ügyintézésében szakszerű segítséggel állunk a kedves vásárló rendelkezésére, igény szerint segítünk az adásvételi szerződés lebonyolításában, a szerződés megkötésétől a bírtokba adásig.

Referencia szám: M300114

Hirdetés feltöltve: 2026. 04. 20. Utoljára módosítva: 2026. 04. 20.

Az ingatlan elhelyezkedése

Cím: Kiskunhalas, földszint

Eladó ingatlanok a környékről

Baja
Eladó téglalakás

Baja

38.9 M Ft
3 szoba
92 m²
Kecskemét
Eladó családi ház

Kecskemét

229 M Ft
8 szoba
370 m²
Kiskunhalas
Eladó téglalakás

Kiskunhalas

15.9 M Ft
2 szoba
47 m²
Kalocsa
Eladó téglalakás

Kalocsa

74.5 M Ft
3 szoba
255 m²
Kiskunhalas
Eladó téglalakás

Kiskunhalas

38.9 M Ft
3 szoba
66 m²
Baja, Jelky András tér
Eladó téglalakás

Baja

65 M Ft
3 szoba
75 m²
Kiskunhalas
Eladó téglalakás

Kiskunhalas

43.9 M Ft
3 szoba
66 m²
Kiskunhalas
Eladó téglalakás

Kiskunhalas

47.9 M Ft
3 szoba
82 m²
Kecskemét, Kossuth-város, Bakócz Tamás utca 1
Eladó téglalakás

Kecskemét

81 M Ft
3 szoba
60 m²
Kiskunhalas
Eladó téglalakás

Kiskunhalas

36.9 M Ft
2 szoba
70 m²
Kiskunhalas
Eladó téglalakás

Kiskunhalas

38.99 M Ft
4 szoba
138 m²
Kiskunhalas
Eladó téglalakás

Kiskunhalas

15 M Ft
1 szoba
36 m²
Felsőszentiván
Eladó téglalakás

Felsőszentiván

23.9 M Ft
3 szoba
76 m²
Bácsalmás
Eladó téglalakás

Bácsalmás

16.49 M Ft
2 + 1 szoba
65 m²
Kiskunhalas
Eladó téglalakás

Kiskunhalas

34.9 M Ft
2 szoba
60 m²
Kecskemét
Eladó téglalakás

Kecskemét

86 M Ft
2 szoba
58 m²
Kecskemét
Eladó téglalakás

Kecskemét

69.9 M Ft
2 + 1 szoba
83 m²
Izsák
Eladó téglalakás

Izsák

15.3 M Ft
2 szoba
63 m²
Kiskőrös
Eladó téglalakás

Kiskőrös

43 M Ft
3 szoba
124 m²
Kecskemét
Eladó téglalakás

Kecskemét

99 M Ft
5 szoba
129 m²
Kiskunhalas
Eladó téglalakás

Kiskunhalas

38.9 M Ft
3 szoba
66 m²
Kiskunhalas
Eladó téglalakás

Kiskunhalas

12 M Ft
1 szoba
31 m²
Kiskunhalas
Eladó téglalakás

Kiskunhalas

29.9 M Ft
2 szoba
64 m²
Kiskunhalas
Eladó téglalakás

Kiskunhalas

27.9 M Ft
1 szoba
43 m²

Falusi CSOK ingatlanok

Mikepércs
Eladó családi ház

Mikepércs

56 M Ft
3 + 1 szoba
87 m²
Somogygeszti
Eladó családi ház

Somogygeszti

10.9 M Ft
2 szoba
115 m²
Fülöpszállás
Eladó családi ház

Fülöpszállás

69.9 M Ft
4 szoba
190 m²
Cece
Eladó családi ház

Cece

69.8 M Ft
4 szoba
215 m²
Baks
Eladó családi ház

Baks

18.9 M Ft
3 szoba
118 m²
Perkáta
Eladó családi ház

Perkáta

38.95 M Ft
1 + 2 szoba
72 m²
Sumony
Eladó családi ház

Sumony

19 M Ft
4 szoba
120 m²
Segesd
Eladó családi ház

Segesd

15.8 M Ft
3 szoba
100 m²