Seven Pearl

Eladó téglalakás
Kecskemét, földszint

+ 14 kép 1/17
109 000 000 Ft109 M Ft 1 135 417 Ft/m2
4 szoba
96 m²
földszint
építés éve:2018

Részletes adatok

Állapot: Újszerű
Fűtés: Egyéb
Emelet: földszint
Energetikai besorolás: Nem adta meg a hirdető

Az OTP Bank lakáshitel ajánlataFizetett hirdetés

3676770709
Turcsányiné Makai Margit
Duna House Next Ingatlan

Érdekel az OTP Bank kedvezményes lakáshitel ajánlata? *

* A kérdésre „Igen” válasz bejelölése esetén, az „Üzenet küldése” gombra kattintva kijelentem, hogy az OTP Bank Nyrt. Adatkezelési tájékoztatójának tartalmát megismertem és tudomásul vettem.

Eladó téglalakás leírása

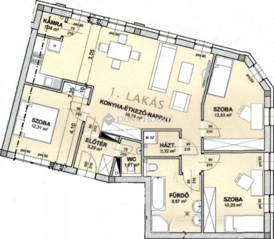
Eladó Kecskeméten Belvárosi újszerű Exclusive 9 lakásos szigetelt társasházban, 96nm-es nappali + 3 szobás lakás.Teremgarázsi parkolóhely 8 M Ft és egy 4 nm saját tároló 2 M Ft-ért vásárolható a lakáshoz.Jellemzői:- 2018-as építésű társasház- belső udvar- mélygarázs- magas minőségben, igényes kialakítású ingatlan- A+ energetikai besorolású- 96 négyzetméteres magasföldszinti lakás- riasztó, tűzjelző, - elektromos aluredőny- internet (optikai)- hőszivattyús hűtés-fűtés, padlófűtés- légcserélő rendszer- beépített bútorok- beépített konyhabútor, konyhagépekkel (hűtő, főzőlap, mosogatógép, sütő, mikró)- Exkluziv külső-belső megjelenésű épület. - Rendkívül alacsony rezsiköltség!!!További információért, várom érdeklődését!.

Hirdetés feltöltve: 2026. 04. 01. Utoljára módosítva: 2026. 05. 11.

4 szobás téglalakások ára Kecskeméten

Ebből az összehasonlításból megtudhatod, hogyan viszonyul a lakás ára a környékbeli téglalakások átlagos árához. Ez nem azt jelenti, hogy ennyivel olcsóbb vagy drágább, mint amennyit a lakás ér, hanem hogy ennyivel tér el a környékbeli átlagtól.

Ennek a m² ára
Kecskemét m² ár
1135 e Ft
1002 e Ft -13%
Ennek az ára
Kecskemét átlagár
109 M Ft m Ft
98.7 m Ft -10%

Az ingatlan elhelyezkedése

Cím: Kecskemét, földszint

Eladó téglalakások a környékről

Bácsalmás
Eladó téglalakás

Bácsalmás

7.49 M Ft
3 szoba
77 m²
Kecskemét
Eladó téglalakás

Kecskemét

44.9 M Ft
3 szoba
71 m²
Izsák
Eladó téglalakás

Izsák

15.3 M Ft
2 szoba
63 m²
Baja, Jelky András tér
Eladó téglalakás

Baja

65 M Ft
3 szoba
75 m²
Kecskemét
Eladó téglalakás

Kecskemét

99 M Ft
5 szoba
129 m²
Kecskemét, Kossuth-város, Bakócz Tamás utca 1
Eladó téglalakás

Kecskemét

88.4 M Ft
3 szoba
67 m²
Kecskemét, Kossuth-város, Bakócz Tamás utca 1
Eladó téglalakás

Kecskemét

81 M Ft
3 szoba
60 m²
Kecskemét
Eladó téglalakás

Kecskemét

44.8 M Ft
3 szoba
66 m²
Felsőszentiván
Eladó téglalakás

Felsőszentiván

23.9 M Ft
3 szoba
76 m²
Kecskemét
Eladó téglalakás

Kecskemét

86 M Ft
2 szoba
58 m²
Kecskemét
Eladó téglalakás

Kecskemét

110 M Ft
5 szoba
132 m²
Kecskemét, Kossuth-város, Bakócz Tamás utca 1
Eladó téglalakás

Kecskemét

88.4 M Ft
3 szoba
67 m²
Kecskemét, Kossuth-város, Bakócz Tamás utca 1
Eladó téglalakás

Kecskemét

72.9 M Ft
2 szoba
54 m²
Kecskemét
Eladó téglalakás

Kecskemét

99 M Ft
5 szoba
129 m²
Kecskemét
Eladó téglalakás

Kecskemét

69.99 M Ft
2 szoba
81 m²
Baja
Eladó téglalakás

Baja

92 M Ft
5 szoba
152 m²
Kecskemét, Kossuth-város, Bakócz Tamás utca 1
Eladó téglalakás

Kecskemét

85.7 M Ft
3 szoba
62 m²
Kecskemét
Eladó téglalakás

Kecskemét

145 M Ft
3 szoba
79 m²
Kecskemét
Eladó téglalakás

Kecskemét

99 M Ft
5 szoba
129 m²
Kecskemét
Eladó téglalakás

Kecskemét

52.8 M Ft
2 szoba
55 m²
Kecskemét
Eladó téglalakás

Kecskemét

110 M Ft
5 szoba
132 m²
Kecskemét
Eladó téglalakás

Kecskemét

69.9 M Ft
2 + 1 szoba
83 m²
Baja
Eladó téglalakás

Baja

149.5 M Ft
1 szoba
620 m²
Kecskemét, Mária-város, Bakócz Tamás utca 1
Eladó téglalakás

Kecskemét

83.2 M Ft
2 szoba
57 m²

Falusi CSOK ingatlanok

Nagyszentjános
Eladó téglalakás

Nagyszentjános

74.9 M Ft
4 szoba
117 m²
Verseg
Eladó családi ház

Verseg

69.9 M Ft
4 szoba
0 m²
Fonyód, Rózsa utca
Eladó ikerház

Fonyód

105 M Ft
5 szoba
134 m²
Pilisszentkereszt
Eladó családi ház

Pilisszentkereszt

68.9 M Ft
2 szoba
50 m²
Hegyeshalom, Margaréta utca 12
Eladó téglalakás

Hegyeshalom

32.89 M Ft
1 szoba
27 m²
Újkígyós
Eladó családi ház

Újkígyós

29.9 M Ft
4 szoba
145 m²
Csárdaszállás
Eladó családi ház

Csárdaszállás

11.99 M Ft
3 + 2 szoba
100 m²
Porva
Eladó családi ház

Porva

74.6 M Ft
3 szoba
115 m²