Metrodom

Eladó téglalakás
Kecskemét, 1. emelet

+ 2 kép 1/5
85 200 000 Ft85.2 M Ft 1 217 143 Ft/m2
3 szoba
70 m²
1. emelet
építés éve:2026

Részletes adatok

Fűtés: Gázkazán
Emelet: 1. emelet
Extrák: Lift
Energetikai besorolás: Nem adta meg a hirdető

Az OTP Bank lakáshitel ajánlataFizetett hirdetés

+36 70 608
Dakó Ferenc András
HOUSE36 Ingatlanbázis Kft.

Érdekel az OTP Bank kedvezményes lakáshitel ajánlata? *

* A kérdésre „Igen” válasz bejelölése esetén, az „Üzenet küldése” gombra kattintva kijelentem, hogy az OTP Bank Nyrt. Adatkezelési tájékoztatójának tartalmát megismertem és tudomásul vettem.

Eladó téglalakás leírása

Kecskemét egyik ikonikus épülete végre újjászületik!
Kecskemét belvárosának szélén, mégis pár percre a főtértől, kiváló közlekedés mellett, 27 lakásos liftes társasházban, zömében erkélyes, új lakások leköthetőek. Opcionálisan garázs és beálló vásárlási lehetőség.
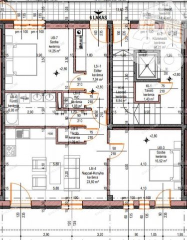
A társasház első emeletén, 70,73 m2 lakóterű, nappali + 2 szobás lakás megvásárolható.
Várható átadás, 2026 december.

27 lakásos, 5 szintes, liftes épület.
Gáz kombi kazán lakásonként
Hűtő-fűtő klíma
Műanyag 6 légkamrás 3 rétegű ablakok, rejtett redőnytokos redőnnyel felszerelve
Beltéri ajtók 5 színben választhatók.
Szobákban laminált parketta, egyéb helyiségekben vinyl illetve hidegburkolat.
Fürdőszobai szaniterek beépítve műszaki tartalom szerint.
Konyhabútor, fürdőszoba szekrény,előszoba fal opcionálisan rendelhető.

További információkat és részletes műszaki tartalmat egy személyes találkozó keretein belül tudunk biztosítani.


A HOUSE36kínálatában található összes ingatlannal kapcsolatban tudok felvilágosítást nyújtani!

Hívjon bizalommal!
Szolgáltatásaink Kereső ügyfeleink számára INGYENESEK!

85200000 Ft
Az iroda legfrissebb, aktuális kínálatát a HOUSE36 saját weboldalán találja!

Hirdetés feltöltve: 2025. 12. 13. Utoljára módosítva: 2026. 04. 18.

3 szobás téglalakások ára Kecskeméten

Ebből az összehasonlításból megtudhatod, hogyan viszonyul a lakás ára a környékbeli téglalakások átlagos árához. Ez nem azt jelenti, hogy ennyivel olcsóbb vagy drágább, mint amennyit a lakás ér, hanem hogy ennyivel tér el a környékbeli átlagtól.

Ennek a m² ára
Kecskemét m² ár
1217 e Ft
1077 e Ft -13%
Ennek az ára
Kecskemét átlagár
85.2 M Ft m Ft
76.2 m Ft -12%

Az ingatlan elhelyezkedése

Cím: Kecskemét, 1. emelet

Eladó téglalakások a környékről

Kecskemét, Kossuth-város, Bakócz Tamás utca 1
Eladó téglalakás

Kecskemét

81 M Ft
3 szoba
60 m²
Baja, Wesselényi utca
Eladó téglalakás

Baja

149.5 M Ft
1 szoba
620 m²
Baja
Eladó téglalakás

Baja

38.9 M Ft
3 szoba
92 m²
Soltvadkert
Eladó téglalakás

Soltvadkert

69.99 M Ft
3 + 1 szoba
85 m²
Kecskemét
Eladó téglalakás

Kecskemét

44.8 M Ft
3 szoba
66 m²
Kecskemét
Eladó téglalakás

Kecskemét

64.5 M Ft
1 szoba
37 m²
Kecskemét
Eladó téglalakás

Kecskemét

69.99 M Ft
2 szoba
81 m²
Kecskemét
Eladó téglalakás

Kecskemét

69.99 M Ft
2 szoba
81 m²
Kecskemét, Kossuth-város, Bakócz Tamás utca 1
Eladó téglalakás

Kecskemét

88.4 M Ft
3 szoba
67 m²
Felsőszentiván
Eladó téglalakás

Felsőszentiván

23.9 M Ft
3 szoba
76 m²
Izsák
Eladó téglalakás

Izsák

15.3 M Ft
2 szoba
63 m²
Kecskemét
Eladó téglalakás

Kecskemét

86 M Ft
2 szoba
58 m²
Kalocsa
Eladó téglalakás

Kalocsa

74.5 M Ft
3 szoba
255 m²
Kecskemét
Eladó téglalakás

Kecskemét

44.8 M Ft
3 szoba
66 m²
Kecskemét
Eladó téglalakás

Kecskemét

64.5 M Ft
1 szoba
37 m²
Kecskemét
Eladó téglalakás

Kecskemét

110 M Ft
5 szoba
132 m²
Baja
Eladó téglalakás

Baja

92 M Ft
5 szoba
152 m²
Kecskemét
Eladó téglalakás

Kecskemét

26 M Ft
1 szoba
37 m²
Kecskemét
Eladó téglalakás

Kecskemét

44.8 M Ft
3 szoba
66 m²
Bácsalmás
Eladó téglalakás

Bácsalmás

16.49 M Ft
2 + 1 szoba
65 m²
Kecskemét, Kossuth-város, Bakócz Tamás utca 1
Eladó téglalakás

Kecskemét

72.9 M Ft
2 szoba
54 m²
Kecskemét
Eladó téglalakás

Kecskemét

26 M Ft
1 szoba
37 m²
Kecskemét, Kossuth-város, Bakócz Tamás utca 1
Eladó téglalakás

Kecskemét

77 M Ft
2 szoba
57 m²
Baja
Eladó téglalakás

Baja

65 M Ft
3 szoba
75 m²

Falusi CSOK ingatlanok

Somlójenő
Eladó családi ház

Somlójenő

64.9 M Ft
4 szoba
221 m²
Sumony
Eladó családi ház

Sumony

19 M Ft
4 szoba
120 m²
Balatonederics
Eladó családi ház

Balatonederics

119 M Ft
3 szoba
140 m²
Ceglédbercel
Eladó családi ház

Ceglédbercel

53 M Ft
3 szoba
67 m²
Szegvár
Eladó családi ház

Szegvár

14.3 M Ft
3 + 1 szoba
130 m²
Sződ
Eladó családi ház

Sződ

116.9 M Ft
4 + 1 szoba
102 m²
Gönyű
Eladó családi ház

Gönyű

111.951 M Ft
5 szoba
105 m²
Enese
Eladó családi ház

Enese

72.025 M Ft
4 szoba
75 m²