Astora Olive Club House

Eladó téglalakás
Kecskemét, 2. emelet

1/2
91 800 000 Ft91.8 M Ft 1 257 534 Ft/m2
4 szoba
73 m2
2. emelet
építés éve:2026

Részletes adatok

Fűtés: Egyéb
Energetikai besorolás: Nem adta meg a hirdető

Az OTP Bank lakáshitel ajánlataFizetett hirdetés

+36 70 649
Dr. Lizik Zoltán
HOUSE36 Ingatlanbázis Kft.

Érdekel az OTP Bank kedvezményes lakáshitel ajánlata? *

* A kérdésre „Igen” válasz bejelölése esetén, az „Üzenet küldése” gombra kattintva kijelentem, hogy az OTP Bank Nyrt. Adatkezelési tájékoztatójának tartalmát megismertem és tudomásul vettem.

Eladó téglalakás leírása

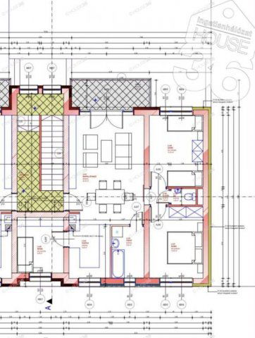
Új építésű, első emeleti tégla lakás nagy terasszal Kecskeméten!
Kecskemét frekventált részén, a Belváros és Máriaváros határán, eladó egy 73,5m2-es lakóterű, nappali + 3 szobás, első emeleti lakás, 6,5 m2-es erkéllyel, egy mindössze 5 lakásos, zárt udvaros, új építésű társasházban.

Főbb jellemzők:

Téglaépítésű társasház, tégla belső válaszfalakkal

Átadás várható időpontja: 2026. június

Korszerű hőszivattyús fűtés és fan-coil hűtés

3 rétegű hőszigetelt nyílászárók redőnnyel

15 cm vastag homlokzati szigetelés

Választható burkolatok:

Hidegburkolat 8.000 Ft/m2-ig

Melegburkolat 7.000 Ft/m2-ig

Garázsvásárlási lehetőség: 9.900.000 Ft

Zárt udvari gépkocsibeálló vásárlási lehetősége: 2.000.000 Ft​

Figyelem az adatlap megbízónktól kapott adatok alapján készült, pontosságáért felelősséget nem tudunk vállalni!
Az iroda legfrissebb, aktuális kínálatát a HOUSE36 saját weboldalán találja!

Hirdetés feltöltve: 2025. 11. 04. Utoljára módosítva: 2025. 11. 04.

4 szobás téglalakások ára Kecskeméten

Ebből az összehasonlításból megtudhatod, hogyan viszonyul a lakás ára a környékbeli téglalakások átlagos árához. Ez nem azt jelenti, hogy ennyivel olcsóbb vagy drágább, mint amennyit a lakás ér, hanem hogy ennyivel tér el a környékbeli átlagtól.

Ennek a m² ára
Kecskemét m² ár
1258 e Ft
951 e Ft -32%
Ennek az ára
Kecskemét átlagár
91.8 M Ft m Ft
96.4 m Ft 5%

Az ingatlan elhelyezkedése

Cím: Kecskemét, 2. emelet

Eladó téglalakások a környékről

Eladó téglalakás
Eladó téglalakás

Baja

77.9 M Ft
5 szoba
200 m2
Eladó téglalakás
Eladó téglalakás

Kecskemét

145 M Ft
3 szoba
79 m2
Eladó téglalakás
Eladó téglalakás

Bácsalmás

35.99 M Ft
3 szoba
120 m2
Eladó téglalakás
Eladó téglalakás

Baja

38.9 M Ft
3 szoba
92 m2
Eladó téglalakás
Eladó téglalakás

Baja

41.9 M Ft
3 szoba
64 m2
Eladó téglalakás
Eladó téglalakás

Bácsalmás

7.49 M Ft
3 szoba
77 m2
Eladó téglalakás
Eladó téglalakás

Kecskemét

99 M Ft
5 szoba
129 m2
Eladó téglalakás
Eladó téglalakás

Kecskemét

64.5 M Ft
1 szoba
37 m2
Eladó téglalakás
Eladó téglalakás

Kecskemét, Kossuth-város, Bakócz Tamás utca 1

82.5 M Ft
3 szoba
66 m2
Eladó téglalakás
Eladó téglalakás

Kecskemét

24.9 M Ft
1 szoba
37 m2
Eladó téglalakás
Eladó téglalakás

Kecskemét, Kossuth-város, Bakócz Tamás utca 1

81 M Ft
3 szoba
60 m2
Eladó téglalakás
Eladó téglalakás

Kecskemét, Kossuth-város, Bakócz Tamás utca 1

78.9 M Ft
2 szoba
56 m2
Eladó téglalakás
Eladó téglalakás

Kecskemét, Kossuth-város, Bakócz Tamás utca 1

85.7 M Ft
3 szoba
62 m2
Eladó téglalakás
Eladó téglalakás

Baja, Jelky András tér

65 M Ft
3 szoba
75 m2
Eladó téglalakás
Eladó téglalakás

Bácsalmás

7.49 M Ft
3 szoba
77 m2
Eladó téglalakás
Eladó téglalakás

Baja

41.9 M Ft
4 szoba
111 m2
Eladó téglalakás
Eladó téglalakás

Baja, Wesselényi utca

149.5 M Ft
1 szoba
620 m2
Eladó téglalakás
Eladó téglalakás

Kecskemét

84.2 M Ft
2 szoba
55 m2
Eladó téglalakás
Eladó téglalakás

Kecskemét

86 M Ft
2 szoba
58 m2
Eladó téglalakás
Eladó téglalakás

Kecskemét

69.9 M Ft
2 + 1 szoba
83 m2
Eladó téglalakás
Eladó téglalakás

Kecskemét

99 M Ft
5 szoba
129 m2
Eladó téglalakás
Eladó téglalakás

Felsőszentiván

23.9 M Ft
3 szoba
76 m2
Eladó téglalakás
Eladó téglalakás

Kecskemét, Kossuth-város, Bakócz Tamás utca 1

88.4 M Ft
3 szoba
67 m2
Eladó téglalakás
Eladó téglalakás

Kecskemét, Kossuth-város, Bakócz Tamás utca 1

77 M Ft
2 szoba
57 m2

Falusi CSOK ingatlanok

Eladó családi ház
Eladó családi ház

Tab

46.9 M Ft
4 szoba
173 m2
Eladó családi ház
Eladó családi ház

Vaskút

19 M Ft
3 szoba
225 m2
Eladó családi ház
Eladó családi ház

Varbóc

7.9 M Ft
2 szoba
86 m2
Eladó családi ház
Eladó családi ház

Bugac

15 M Ft
3 szoba
52 m2
Eladó családi ház
Eladó családi ház

Tengőd

32 M Ft
4 szoba
118 m2
Eladó családi ház
Eladó családi ház

Pécsely, Szőlő Dülő

499 M Ft
4 + 2 szoba
183 m2
Eladó családi ház
Eladó családi ház

Nyáregyháza

67 M Ft
3 szoba
74 m2
Eladó családi ház
Eladó családi ház

Onga

65 M Ft
5 szoba
168 m2