River Life

Eladó téglalakás
Kazincbarcika, 4. emelet

+ 14 kép 1/17
17 700 000 Ft17.7 M Ft 421 429 Ft/m2
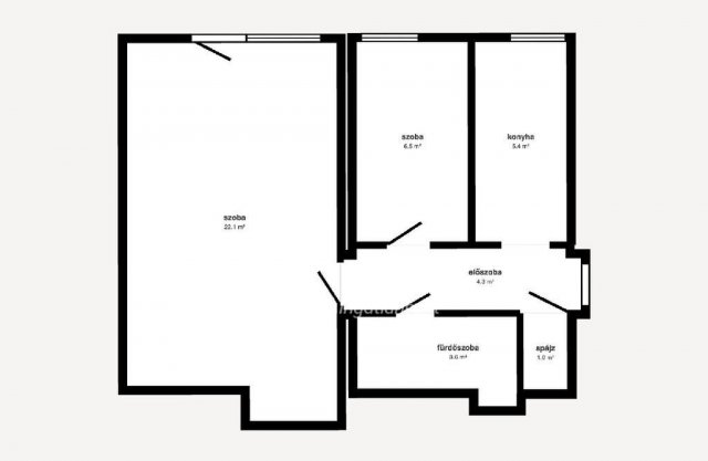
1 + 1 szoba
42 m²
4. emelet
építés éve:1973

Részletes adatok

Állapot: Felújítandó
Fűtés: Távfűtés
Emelet: 4. emelet
Energetikai besorolás: Nem adta meg a hirdető

Az OTP Bank lakáshitel ajánlataFizetett hirdetés

+36 70 550
Szoboszlai Péter
OTP Ingatlanpont Miskolc Szemere

Érdekel az OTP Bank kedvezményes lakáshitel ajánlata? *

* A kérdésre „Igen” válasz bejelölése esetén, az „Üzenet küldése” gombra kattintva kijelentem, hogy az OTP Bank Nyrt. Adatkezelési tájékoztatójának tartalmát megismertem és tudomásul vettem.

Eladó téglalakás leírása

Eladó Kazincbarcika frekventált és közkedvelt részén, a Pollack Mihály úton egy kiváló adottságokkal rendelkező, 42 négyzetméteres, másfél szobás társasházi lakás, amely külön nyíló szobáinak köszönhetően rendkívül praktikus és jól kihasználható életteret biztosít lakói számára. Az ingatlan egyik legnagyobb értéke a felső emeleti elhelyezkedésből adódó lenyűgöző panoráma, amely egyedülálló hangulatot kölcsönöz a mindennapoknak, miközben a lakás műszaki felszereltsége is figyelemre méltó, hiszen modern műanyag nyílászárókkal és egyedi mérővel felszerelt távhővel rendelkezik, így a rezsiköltségek alacsonyak és pontosan tervezhetők. A belső terek tiszták, rendezettek és azonnal költözhető állapotban vannak, ugyanakkor az ingatlan kiváló alapot nyújt egy saját igény szerinti esztétikai felújításhoz is, amivel valódi álomotthonná vagy értékálló befektetéssé formálható. A környék infrastruktúrája párját ritkító, hiszen a közvetlen közelben megtalálható a Pollack Mihály Általános Iskola, a Barcika Fitness Centrum, a Spar szupermarket, valamint különböző szaküzletek és kényelmi szolgáltatások, mint a Foxpost és Packeta automaták, a parkolás pedig közvetlenül a ház előtt teljesen ingyenes és biztonságos. Ez a tehermentes ingatlan a város egyik legdinamikusabban fejlődő pontján helyezkedik el, ahol a közeli játszóterek, zöldfelületek és a kiváló tömegközlekedési kapcsolatok garantálják a kényelmet, ezért bátran ajánlom fiatal pároknak első lakásnak vagy befektetőknek a könnyű kiadhatóság miatt.

OTP Banki hátterünknek köszönhetően finanszírozási igényekben (pl. Otthon Start Hitelprogram , Babaváró, Falusi CSOK, CSOK Plusz, Lakáshitel, Személyi kölcsön stb.), illetve biztosítások tekintetében is díjmentesen, soron kívüli ügyintézéssel segítem ügyfeleim! Kérem tekintse meg, virtuális sétámat is. Hívása során hivatkozzon az M324120 referenciaszámra!

Hirdetés feltöltve: 2026. 04. 03. Utoljára módosítva: 2026. 04. 03.

2 szobás téglalakások ára Kazincbarcikán

Ebből az összehasonlításból megtudhatod, hogyan viszonyul a lakás ára a környékbeli téglalakások átlagos árához. Ez nem azt jelenti, hogy ennyivel olcsóbb vagy drágább, mint amennyit a lakás ér, hanem hogy ennyivel tér el a környékbeli átlagtól.

Ennek a m² ára
Kazincbarcika m² ár
421 e Ft
441 e Ft 4%
Ennek az ára
Kazincbarcika átlagár
17.7 M Ft m Ft
24.2 m Ft 27%

Az ingatlan elhelyezkedése

Cím: Kazincbarcika, 4. emelet

Eladó téglalakások a környékről

Miskolc
Eladó téglalakás

Miskolc

65.34 M Ft
3 szoba
60 m²
Miskolc
Eladó téglalakás

Miskolc

54.9 M Ft
3 szoba
122 m²
Kazincbarcika
Eladó téglalakás

Kazincbarcika

18 M Ft
2 szoba
60 m²
Kazincbarcika
Eladó téglalakás

Kazincbarcika

15.9 M Ft
1 szoba
44 m²
Kazincbarcika
Eladó téglalakás

Kazincbarcika

29.5 M Ft
2 szoba
62 m²
Kazincbarcika
Eladó téglalakás

Kazincbarcika

15.9 M Ft
1 szoba
44 m²
Kazincbarcika
Eladó téglalakás

Kazincbarcika

17 M Ft
2 szoba
57 m²
Kazincbarcika, Május 1 út
Eladó téglalakás

Kazincbarcika

21 M Ft
1 szoba
45 m²
Kazincbarcika, Építők útja 40
Eladó téglalakás

Kazincbarcika

14.8 M Ft
2 szoba
50 m²
Miskolc
Eladó téglalakás

Miskolc

69.7 M Ft
3 szoba
60 m²
Sárospatak, Tompa Mihály utca
Eladó téglalakás

Sárospatak

23.9 M Ft
2 szoba
62 m²
Kazincbarcika, Mátyás Király út
Eladó téglalakás

Kazincbarcika

29.99 M Ft
1 + 2 szoba
51 m²
Tiszaújváros, Verebély utca
Eladó téglalakás

Tiszaújváros

23.9 M Ft
1 + 1 szoba
39 m²
Kazincbarcika, Építők útja
Eladó téglalakás

Kazincbarcika

21.5 M Ft
2 szoba
49 m²
Putnok
Eladó téglalakás

Putnok

13.6 M Ft
3 szoba
123 m²
Miskolc
Eladó téglalakás

Miskolc

75.982 M Ft
3 szoba
77 m²
Kazincbarcika
Eladó téglalakás

Kazincbarcika

20 M Ft
1 szoba
44 m²
Kazincbarcika
Eladó téglalakás

Kazincbarcika

15.9 M Ft
1 szoba
44 m²
Kazincbarcika
Eladó téglalakás

Kazincbarcika

15.9 M Ft
1 szoba
44 m²
Kazincbarcika
Eladó téglalakás

Kazincbarcika

15.9 M Ft
1 szoba
44 m²
Kazincbarcika, Építők útja
Eladó téglalakás

Kazincbarcika

25.9 M Ft
2 szoba
54 m²
Miskolc
Eladó téglalakás

Miskolc

9.99 M Ft
2 szoba
59 m²
Sátoraljaújhely
Eladó téglalakás

Sátoraljaújhely

17 M Ft
2 szoba
52 m²
Miskolc
Eladó téglalakás

Miskolc

65.34 M Ft
1 + 1 szoba
40 m²

Falusi CSOK ingatlanok

Úrkút
Eladó családi ház

Úrkút

94.9 M Ft
4 szoba
186 m²
Darnózseli
Eladó családi ház

Darnózseli

69.9 M Ft
4 szoba
104 m²
Ceglédbercel
Eladó családi ház

Ceglédbercel

65.9 M Ft
3 szoba
97 m²
Berzence, Mátyás utca
Eladó családi ház

Berzence

26.8 M Ft
3 szoba
94 m²
Bakóca
Eladó családi ház

Bakóca

500 M Ft
13 szoba
1860 m²
Szigetcsép
Eladó családi ház

Szigetcsép

110 M Ft
3 szoba
137 m²
Tóalmás
Eladó családi ház

Tóalmás

31.5 M Ft
2 szoba
43 m²
Magyarpolány
Eladó családi ház

Magyarpolány

90 M Ft
2 szoba
70 m²