River Life

Eladó téglalakás
Kapuvár, 3. emelet

+ 10 kép 1/13
59 900 000 Ft59.9 M Ft 587 255 Ft/m2
3 szoba
102 m2
3. emelet
építés éve:2019

Részletes adatok

Állapot: Újszerű
Fűtés: Gázkazán
Energetikai besorolás: Nem adta meg a hirdető

Az OTP Bank lakáshitel ajánlataFizetett hirdetés

+36 30 372
Bors Andrea
referens

Érdekel az OTP Bank kedvezményes lakáshitel ajánlata? *

* A kérdésre „Igen” válasz bejelölése esetén, az „Üzenet küldése” gombra kattintva kijelentem, hogy az OTP Bank Nyrt. Adatkezelési tájékoztatójának tartalmát megismertem és tudomásul vettem.

Eladó téglalakás leírása

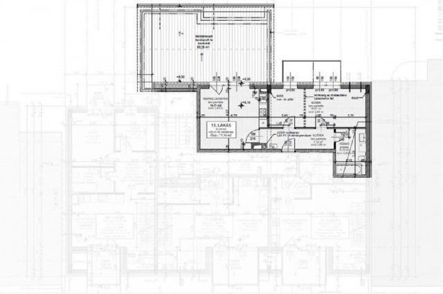
Kérlek rajtam keresztül egyeztess. Győr-Moson-Sopron vármegyében Kapuváron a város frekventált részén kínálok megvételre harmadik emeleti, 50 m2-es 2019-ben épített tégla szerkezetű lakást. Az ingatlan egy amerikai konyha+nappali+étkező helységből, 2 külön bejáratú, teljes értékű, tágas szobából, fürdőszobából, közlekedőből, valamint egy 50 m2-es teraszból áll. A szobák parketta burkolatúak, a többi helyiség járólap borítású. Az otthon melegéről és a meleg vízről gázkazán gondoskodik padlófűtés hőleadással. A lakás nyílászárói redőnnyel ellátottak. Nyáron a redőnyöknek köszönhetően a lakás hűvös marad. A lakáshoz a ház előtt ingyenes parkolóhely biztosított, mely a vételár részét képezi. További parkolási lehetőség a ház melletti parkolóban lehetséges térítés ellenében. Ajánlom mindenkinek, aki egy alacsony rezsi költségű, energia igényű lakásban, szép, családias, csendes belvárosi részen kíván élni, nyugodt környezetben.

Referenciaszám: M316218

Hirdetés feltöltve: 2025. 10. 28. Utoljára módosítva: 2025. 11. 13.

3 szobás téglalakások ára Kapuváron

Ebből az összehasonlításból megtudhatod, hogyan viszonyul a lakás ára a környékbeli téglalakások átlagos árához. Ez nem azt jelenti, hogy ennyivel olcsóbb vagy drágább, mint amennyit a lakás ér, hanem hogy ennyivel tér el a környékbeli átlagtól.

Ennek a m² ára
Kapuvár m² ár
587 e Ft
143 e Ft -311%
Ennek az ára
Kapuvár átlagár
59.9 M Ft m Ft
11.2 m Ft -436%

Az ingatlan elhelyezkedése

Cím: Kapuvár, 3. emelet

Eladó ingatlanok a környékről

Eladó téglalakás
Eladó téglalakás

Sopron

96.9 M Ft
3 szoba
72 m2
Eladó családi ház
Eladó családi ház

Magyarkeresztúr

24.9 M Ft
3 szoba
94 m2
Eladó téglalakás
Eladó téglalakás

Nagycenk

63.9 M Ft
1 + 2 szoba
62 m2
Eladó téglalakás
Eladó téglalakás

Győr

38.99 M Ft
2 szoba
46 m2
Eladó téglalakás
Eladó téglalakás

Kapuvár

45.5 M Ft
2 + 1 szoba
78 m2
Eladó téglalakás
Eladó téglalakás

Győr

39.49 M Ft
2 szoba
45 m2
Eladó téglalakás
Eladó téglalakás

Kapuvár

59.9 M Ft
3 + 1 szoba
102 m2
Eladó téglalakás
Eladó téglalakás

Sopron, Gólya utca

46.9 M Ft
2 szoba
44 m2
Eladó téglalakás
Eladó téglalakás

Kapuvár

37.9 M Ft
2 szoba
52 m2
Eladó családi ház
Eladó családi ház

Bőny

67.8 M Ft
1 + 3 szoba
81 m2
Eladó téglalakás
Eladó téglalakás

Győr

38.99 M Ft
2 szoba
43 m2
Eladó téglalakás
Eladó téglalakás

Hegyeshalom

35.82 M Ft
1 szoba
32 m2
Eladó téglalakás
Eladó téglalakás

Kapuvár

62.99 M Ft
3 szoba
64 m2
Eladó telek
Eladó telek

Győr

199 M Ft
1432 m²
Eladó téglalakás
Eladó téglalakás

Kapuvár

59.9 M Ft
3 + 1 szoba
102 m2
Eladó téglalakás
Eladó téglalakás

Győr

48.99 M Ft
3 szoba
57 m2
Eladó téglalakás
Eladó téglalakás

Hegyeshalom

40.3 M Ft
1 szoba
46 m2
Eladó téglalakás
Eladó téglalakás

Kapuvár

39.99 M Ft
1 + 1 szoba
64 m2
Eladó telek
Eladó telek

Levél

9.9 M Ft
2222 m²
Eladó téglalakás
Eladó téglalakás

Győr

38.99 M Ft
2 szoba
43 m2
Eladó téglalakás
Eladó téglalakás

Hegyeshalom

34.99 M Ft
3 szoba
60 m2
Eladó téglalakás
Eladó téglalakás

Mosonmagyaróvár

31.8 M Ft
1 szoba
38 m2
Eladó téglalakás
Eladó téglalakás

Kapuvár, Fő tér.21

49.99 M Ft
2 szoba
64 m2
Eladó téglalakás
Eladó téglalakás

Kapuvár, Erzsébet Királyné

31.598 M Ft
1 szoba
37 m2

Falusi CSOK ingatlanok

Eladó családi ház
Eladó családi ház

Öskü

77.7 M Ft
3 szoba
192 m2
Eladó családi ház
Eladó családi ház

Mórichida

44.9 M Ft
3 szoba
89 m2
Eladó családi ház
Eladó családi ház

Kemeneshőgyész

6.9 M Ft
3 szoba
124 m2
Eladó családi ház
Eladó családi ház

Mezőfalva

39 M Ft
3 szoba
77 m2
Eladó családi ház
Eladó családi ház

Magyarszék

48.5 M Ft
3 + 1 szoba
86 m2
Eladó családi ház
Eladó családi ház

Adásztevel

8.9 M Ft
2 szoba
63 m2
Eladó családi ház
Eladó családi ház

Erdősmárok

87 M Ft
6 szoba
140 m2
Eladó családi ház
Eladó családi ház

Zengővárkony

35 M Ft
3 szoba
87 m2