City Pearl

Eladó téglalakás
Hajdúnánás, földszint

+ 16 kép 1/19
46 300 000 Ft46.3 M Ft 1 052 273 Ft/m2
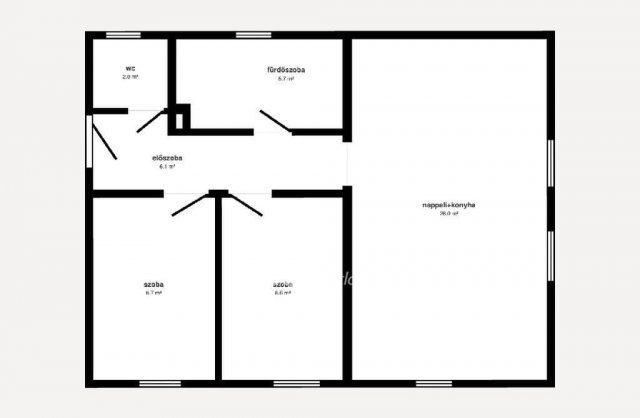
2 szoba
44 m²
földszint
építés éve:2009

Részletes adatok

Állapot: Felújított
Fűtés: Gázkazán
Emelet: földszint
Energetikai besorolás: Nem adta meg a hirdető

Az OTP Bank lakáshitel ajánlataFizetett hirdetés

+36 70 615
Kiss Gyula
OTPIP Nyíregyháza Hunyadi u.

Érdekel az OTP Bank kedvezményes lakáshitel ajánlata? *

* A kérdésre „Igen” válasz bejelölése esetén, az „Üzenet küldése” gombra kattintva kijelentem, hogy az OTP Bank Nyrt. Adatkezelési tájékoztatójának tartalmát megismertem és tudomásul vettem.

Eladó téglalakás leírása

Eladó 2 szobás, kiváló állapotú lakás Hajdúnánás szívében - akár garázzsal is!

Hajdúnánás központjában kínáljuk ezt a 44 nm-es, téglaépítésű, 2 szobás, modern lakást, ahol minden fontos szolgáltatás és üzlet gyalogosan elérhető, a tökéletes elhelyezkedés biztosítja a kényelmet mindennapokra.

Az ingatlan 2009-ben épült, folyamatosan karbantartott, és 2022-ben korszerű gázkazánnal lett felszerelve. A klímaberendezés még komfortosabbá teszi a lakást a nyári hónapokban.

A lakáshoz 17 nm-es garázs is tartozik, amely elektromos nyitású, így a parkolás és tárolás is kényelmes megoldott. Az ingatlan alacsony fenntartású, ideális választás saját otthonként vagy befektetés céljára.

A bútorok az ingatlan méreteihez készültek, így igény szerint megegyezés tárgyát képezhetik. Azonnal költözhető, így akár már holnaptól élvezheti a lakás előnyeit.

Ne hagyja ki ezt a kiváló lehetőséget Hajdúnánás központjában!

OTP Banki hátterünknek köszönhetően finanszírozási igényekben (pl. Otthon Start Hitelprogram, Babaváró, Falusi CSOK, CSOK Plusz, Lakáshitel, Személyi kölcsön stb.), illetve biztosítások tekintetében is díjmentesen, soron kívüli ügyintézéssel segítem ügyfeleim! Referenciaszám: M321815

Virtuáris séta:

Hirdetés feltöltve: 2026. 04. 01. Utoljára módosítva: 2026. 04. 02.

Az ingatlan elhelyezkedése

Cím: Hajdúnánás, földszint

Eladó ingatlanok a környékről

Debrecen
Eladó téglalakás

Debrecen

105.5 M Ft
2 szoba
70 m²
Debrecen
Eladó családi ház

Debrecen

23 M Ft
1 szoba
30 m²
Debrecen, Belváros, Hatvan köz
Eladó téglalakás

Debrecen

120.891 M Ft
3 szoba
103 m²
Hajdúdorog
Eladó családi ház

Hajdúdorog

55 M Ft
2 + 1 szoba
80 m²
Debrecen, Belváros, Hatvan köz
Eladó téglalakás

Debrecen

118.936 M Ft
4 szoba
107 m²
Debrecen, Belváros, Hatvan köz
Eladó téglalakás

Debrecen

83.943 M Ft
2 szoba
64 m²
Debrecen
Eladó panellakás

Debrecen

85 M Ft
3 szoba
72 m²
Derecske
Eladó téglalakás

Derecske

61.132 M Ft
4 szoba
72 m²
Debrecen, Belváros, Hatvan köz
Eladó téglalakás

Debrecen

118.936 M Ft
4 szoba
107 m²
Debrecen, Belváros, Hatvan köz
Eladó téglalakás

Debrecen

75.213 M Ft
1 szoba
81 m²
Hajdúsámson
Eladó telek

Hajdúsámson

6.9 M Ft
1490 m²
0 m²
Debrecen
Eladó panellakás

Debrecen

66.5 M Ft
4 szoba
70 m²
Hajdúnánás
Eladó téglalakás

Hajdúnánás

46.3 M Ft
2 szoba
44 m²
Hajdúszoboszló
Eladó téglalakás

Hajdúszoboszló

49.99 M Ft
1 szoba
25 m²
Hajdúszoboszló, József Attila utca
Eladó téglalakás

Hajdúszoboszló

137.5 M Ft
2 szoba
106 m²
Hajdúnánás
Eladó téglalakás

Hajdúnánás

42 M Ft
2 + 1 szoba
75 m²
Hajdúnánás
Eladó téglalakás

Hajdúnánás

42 M Ft
2 + 1 szoba
75 m²
Hajdúszoboszló
Eladó téglalakás

Hajdúszoboszló

49.9 M Ft
1 szoba
25 m²
Debrecen, Belváros, Hatvan köz
Eladó téglalakás

Debrecen

70.703 M Ft
1 szoba
64 m²
Püspökladány
Eladó téglalakás

Püspökladány

39.9 M Ft
1 szoba
336 m²
Hajdúnánás
Eladó téglalakás

Hajdúnánás

46.3 M Ft
2 szoba
44 m²
Debrecen
Eladó garázs

Debrecen

15 M Ft
15 m²
Debrecen
Eladó téglalakás

Debrecen

77.9 M Ft
2 szoba
54 m²
Hajdúszoboszló
Eladó téglalakás

Hajdúszoboszló

69 M Ft
2 szoba
45 m²

Falusi CSOK ingatlanok

Ostffyasszonyfa
Eladó családi ház

Ostffyasszonyfa

37.9 M Ft
5 szoba
494 m²
Balatonakali
Eladó ikerház

Balatonakali

560 M Ft
4 szoba
140 m²
Kálmánháza
Eladó családi ház

Kálmánháza

54.9 M Ft
3 szoba
138 m²
Mályi
Eladó családi ház

Mályi

105 M Ft
6 szoba
267 m²
Sződ
Eladó családi ház

Sződ

102.9 M Ft
4 szoba
92 m²
Bag
Eladó családi ház

Bag

110 M Ft
5 szoba
320 m²
Kővágószőlős
Eladó téglalakás

Kővágószőlős

24 M Ft
2 szoba
52 m²
Törtel
Eladó családi ház

Törtel

39 M Ft
1 + 1 szoba
118 m²