Astora Olive Club House

Eladó téglalakás
Győr, 1. emelet

+ 2 kép 1/5
68 710 950 Ft68.711 M Ft 1 090 650 Ft/m2
3 szoba
63 m²
1. emelet

Részletes adatok

Telekméret: 63 m2
Fűtés: Egyéb
Emelet: 1. emelet
Közmű: Víz, Villany, Csatorna
Komfort: Összkomfortos
Energetikai besorolás: Nem adta meg a hirdető

Az OTP Bank lakáshitel ajánlataFizetett hirdetés

+36 70 886
Neizer Éva
Trendi Ingatlan

Érdekel az OTP Bank kedvezményes lakáshitel ajánlata? *

* A kérdésre „Igen” válasz bejelölése esetén, az „Üzenet küldése” gombra kattintva kijelentem, hogy az OTP Bank Nyrt. Adatkezelési tájékoztatójának tartalmát megismertem és tudomásul vettem.

Eladó téglalakás leírása

Azonnal birtokba vehető lakás eladó!
Győr belvárosától 10 perces autóútra, Szitásdomb új építésű részén 25 lakásos társasházban nappali + 2 szobás lakás eladó.
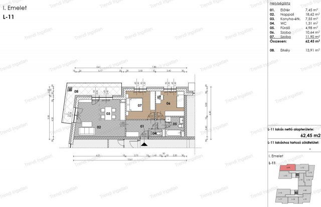
Az 1. emeleten található 62,45 m²-es lakásban amerikai konyhás nappali, 2 szoba, fürdőszoba, külön WC, közlekedő, előtér kerül kialakításra. Nappaliból 13,91 m²-es erkély nyílik.
A lakás fűtéskész ára: 68.710.950 Ft. Kulcsrakész befejezés kérhető.
Gépkocsibeálló ára: 1.000.000 Ft + Áfa/db. A lakáshoz 2 db gépkocsibeállót kell vásárolni.
A tárasház 30 cm-es falazóelemből, 20 cm-es homlokzati szigeteléssel épült. A műanyag, hang-és hőszigetelt, Internorm nyílászárók kívül antracit színűek. Az ár tartalmazza az alumínium elektromos redőny előkészítését és a redőny dobok beépítését. Az ingatlan hűtése/fűtése hőszivattyúval történik, egyedi hőmennyiségmérővel és hőmérséklet szabályozó termosztáttal, így nincs szükség klímára. Melegvíz előállítás is hőszivattyúval megoldott. A társasház udvaran térkövezett gépkocsibeállók kerültek kialakításra.
Tárasház Szitásdomb új kialakítású részén épült. A közelben boltok, pékség, babauszoda, szépségszalon, játszótér található. A környéken új és újszerű családi házak, társasházak épültek/épülnek. Győr-Belvárosa, az Ipari Park, az AUDI, az autópálya elkerülő könnyen elérhető.
Bővebb információkért forduljon hozzám bizalommal.
Hétköznap és hétvégén is várom hívását!
Díjmentes, bankfüggetlen hitelügyintézéssel állunk rendelkezésére.
A hirdetésben feltüntetett képek illusztrációk.

Hirdetés feltöltve: 2026. 02. 13. Utoljára módosítva: 2026. 05. 12.

3 szobás téglalakások ára Győrött

Ebből az összehasonlításból megtudhatod, hogyan viszonyul a lakás ára a környékbeli téglalakások átlagos árához. Ez nem azt jelenti, hogy ennyivel olcsóbb vagy drágább, mint amennyit a lakás ér, hanem hogy ennyivel tér el a környékbeli átlagtól.

Ennek a m² ára
Győr m² ár
1091 e Ft
1090 e Ft 0%
Ennek az ára
Győr átlagár
68.711 M Ft m Ft
78.7 m Ft 13%

Az ingatlan elhelyezkedése

Cím: Győr, 1. emelet

Eladó téglalakások a környékről

Győr
Eladó téglalakás

Győr

54.99 M Ft
3 szoba
64 m²
Győr
Eladó téglalakás

Győr

114 M Ft
4 szoba
94 m²
Győr
Eladó téglalakás

Győr

199.99 M Ft
3 + 1 szoba
160 m²
Győr
Eladó téglalakás

Győr

38.99 M Ft
2 szoba
46 m²
Győr, Gyárváros, TT L7 40/36+5
Eladó téglalakás

Győr

47.99 M Ft
1 szoba
40 m²
Győr
Eladó téglalakás

Győr

199.99 M Ft
3 + 1 szoba
160 m²
Győr
Eladó téglalakás

Győr

48.99 M Ft
3 szoba
57 m²
Győr
Eladó téglalakás

Győr

89.9 M Ft
5 szoba
115 m²
Győr
Eladó téglalakás

Győr

114 M Ft
4 szoba
94 m²
Győr
Eladó téglalakás

Győr

82.6 M Ft
4 szoba
101 m²
Győr
Eladó téglalakás

Győr

38.99 M Ft
2 szoba
43 m²
Győr, Sziget, Knézich utca
Eladó téglalakás

Győr

79 M Ft
3 szoba
98 m²
Győr
Eladó téglalakás

Győr

38.99 M Ft
2 szoba
43 m²
Győr
Eladó téglalakás

Győr

54.99 M Ft
3 szoba
64 m²
Sopron
Eladó téglalakás

Sopron

109 M Ft
5 szoba
130 m²
Győr
Eladó téglalakás

Győr

56.9 M Ft
2 szoba
107 m²
Hegyeshalom
Eladó téglalakás

Hegyeshalom

21.9 M Ft
63 m²
Győr
Eladó téglalakás

Győr

38.99 M Ft
2 szoba
46 m²
Nagycenk
Eladó téglalakás

Nagycenk

59.9 M Ft
1 + 2 szoba
54 m²
Sopron
Eladó téglalakás

Sopron

73.9 M Ft
2 szoba
49 m²
Győr
Eladó téglalakás

Győr

48.99 M Ft
3 szoba
57 m²
Győr
Eladó téglalakás

Győr

130 M Ft
3 szoba
72 m²
Győr
Eladó téglalakás

Győr

38.99 M Ft
2 szoba
43 m²
Győr
Eladó téglalakás

Győr

48.99 M Ft
3 szoba
57 m²

Falusi CSOK ingatlanok

Nyírjákó
Eladó családi ház

Nyírjákó

19 M Ft
3 szoba
115 m²
Tornyiszentmiklós
Eladó családi ház

Tornyiszentmiklós

29.9 M Ft
3 szoba
110 m²
Bag
Eladó családi ház

Bag

79.9 M Ft
5 szoba
124 m²
Nemesnádudvar
Eladó családi ház

Nemesnádudvar

29.9 M Ft
3 szoba
145 m²
Kaposgyarmat
Eladó családi ház

Kaposgyarmat

695 M Ft
6 szoba
610 m²
Verpelét, Liget út 12
Eladó családi ház

Verpelét

44 M Ft
3 szoba
68 m²
Győrság
Eladó családi ház

Győrság

89.9 M Ft
4 szoba
92 m²
Dunaegyháza
Eladó családi ház

Dunaegyháza

29.49 M Ft
3 szoba
70 m²