NapForrás 20 - Buda

Eladó téglalakás
Győr, Családi ház

+ 3 kép 1/6
57 990 000 Ft57.99 M Ft 966 500 Ft/m2
3 szoba
60 m2
Családi ház

Részletes adatok

Telekméret: 60 m2
Fűtés: Egyéb
Emelet: 1. emelet
Közmű: Víz, Villany, Csatorna
Energetikai besorolás: Nem adta meg a hirdető

Az OTP Bank lakáshitel ajánlataFizetett hirdetés

+36 70 886
Neizer Éva
Trendi Ingatlan

Érdekel az OTP Bank kedvezményes lakáshitel ajánlata? *

* A kérdésre „Igen” válasz bejelölése esetén, az „Üzenet küldése” gombra kattintva kijelentem, hogy az OTP Bank Nyrt. Adatkezelési tájékoztatójának tartalmát megismertem és tudomásul vettem.

Eladó téglalakás leírása

2026-ban átadás! Már csak 2 szabad lakás van!

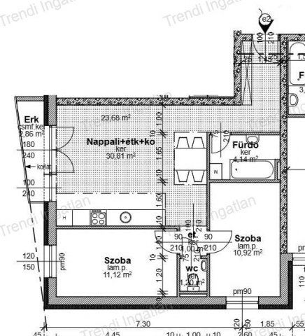
Győr-Belvárosától pár perces autóútra, Szitásdomb új kialakítású részén új építésű 29 lakásos társasházban nappali + 2 szobás lakás eladó.

Az 1. emeleten található 59,20 nm-es ingatlanban amerikai konyhás nappali, 2 szoba, fürdőszoba, külön WC, közlekedő, előtér kerül kialakításra. A nappaliból 2,86 nm-es erkély nyílik.

Az ingatlan fűtéskész ára: 57.990.000 Ft. Kulcsrakész befejezés kérhető.
Gépkocsibeálló ára: 1.700.000 Ft
Lehetőség van tároló vásárlására is, ára: 1.500.000 Ft-tól.

A társasház Szitásdomb új lakóparkjában épül. A földszinti lakások terasszal, az emeleti lakások erkéllyel/terasszal rendelkeznek. A társasház zárt udvarán felszíni parkolók kerülnek kialakításra. A társasház 30 cm-es falazóelemből, 20 cm-es homlokzati hőszigeteléssel épül. A műanyag, hőszigetelt nyílászárók 6 légkamrásak, 3 rétegű üvegezéssel rendelkeznek. Az ár tartalmazza a redőny előkészítését lefutókkal, az elektromos kiépítés felár ellenében kérhető. A társasház fűtését hőszivattyú biztosítja. Lakásonként egyedi hőmennyiségmérő, a fürdőszobában törölközőszárító radiátor kerül. Klímakiépítés igény esetén felár ellenében kérhető.

A társasház átadásának tervezett időpontja: 2026 nyár

Bővebb információkért keressen bizalommal!
Hétköznap és hétvégén is várom hívását!

A hirdetésben feltüntetett képek illusztrációk.

Hirdetés feltöltve: 2026. 01. 16.

3 szobás téglalakások ára Győrött

Ebből az összehasonlításból megtudhatod, hogyan viszonyul a lakás ára a környékbeli téglalakások átlagos árához. Ez nem azt jelenti, hogy ennyivel olcsóbb vagy drágább, mint amennyit a lakás ér, hanem hogy ennyivel tér el a környékbeli átlagtól.

Ennek a m² ára
Győr m² ár
967 e Ft
1023 e Ft 6%
Ennek az ára
Győr átlagár
57.99 M Ft m Ft
73.5 m Ft 21%

Az ingatlan elhelyezkedése

Cím: Győr, Családi ház

Eladó téglalakások a környékről

Eladó téglalakás
Eladó téglalakás

Győr

57.99 M Ft
3 szoba
57 m2
Eladó téglalakás
Eladó téglalakás

Győr

115.875 M Ft
4 szoba
115 m2
Eladó téglalakás
Eladó téglalakás

Sopron

105.99 M Ft
5 szoba
122 m2
Eladó téglalakás
Eladó téglalakás

Sopron, Gólya utca

46.9 M Ft
2 szoba
44 m2
Eladó téglalakás
Eladó téglalakás

Győr

85 M Ft
4 szoba
112 m2
Eladó téglalakás
Eladó téglalakás

Győr

38.99 M Ft
2 szoba
46 m2
Eladó téglalakás
Eladó téglalakás

Győr

48.99 M Ft
3 szoba
57 m2
Eladó téglalakás
Eladó téglalakás

Győr

199.99 M Ft
3 + 1 szoba
160 m2
Eladó téglalakás
Eladó téglalakás

Győr

95 M Ft
4 szoba
94 m2
Eladó téglalakás
Eladó téglalakás

Győr

55.844 M Ft
2 szoba
55 m2
Eladó téglalakás
Eladó téglalakás

Győr

57 M Ft
2 szoba
57 m2
Eladó téglalakás
Eladó téglalakás

Győr

48.99 M Ft
3 szoba
57 m2
Eladó téglalakás
Eladó téglalakás

Nagycenk

63.9 M Ft
1 + 2 szoba
62 m2
Eladó téglalakás
Eladó téglalakás

Győr

71.978 M Ft
3 szoba
71 m2
Eladó téglalakás
Eladó téglalakás

Győr

56.447 M Ft
2 szoba
56 m2
Eladó téglalakás
Eladó téglalakás

Győr

38.99 M Ft
2 szoba
43 m2
Eladó téglalakás
Eladó téglalakás

Győr

98.745 M Ft
4 szoba
98 m2
Eladó téglalakás
Eladó téglalakás

Nagycenk

59.9 M Ft
1 + 2 szoba
54 m2
Eladó téglalakás
Eladó téglalakás

Győr

38.99 M Ft
2 szoba
43 m2
Eladó téglalakás
Eladó téglalakás

Mosonmagyaróvár

31.9 M Ft
2 + 1 szoba
59 m2
Eladó téglalakás
Eladó téglalakás

Győr

54.99 M Ft
3 szoba
64 m2
Eladó téglalakás
Eladó téglalakás

Sopron

96.9 M Ft
3 szoba
72 m2
Eladó téglalakás
Eladó téglalakás

Győr

95 M Ft
4 szoba
94 m2
Eladó téglalakás
Eladó téglalakás

Győr

98.5 M Ft
3 szoba
96 m2

Falusi CSOK ingatlanok

Eladó családi ház
Eladó családi ház

Csemő

110 M Ft
5 szoba
171 m2
Eladó családi ház
Eladó családi ház

Ceglédbercel

67 M Ft
5 szoba
174 m2
Eladó családi ház
Eladó családi ház

Alattyán

8.5 M Ft
1 + 1 szoba
70 m2
Eladó családi ház
Eladó családi ház

Balatonfenyves

430 M Ft
4 szoba
274 m2
Eladó családi ház
Eladó családi ház

Elek

18 M Ft
4 szoba
180 m2
Eladó ikerház
Eladó ikerház

Bodajk

64.9 M Ft
5 szoba
108 m2
Eladó családi ház
Eladó családi ház

Szentbékkálla, Szentbékkálla

63.9 M Ft
2 szoba
143 m2
Eladó családi ház
Eladó családi ház

Balatonszárszó

178 M Ft
6 szoba
260 m2