Eladó téglalakás
Győr, 1. emelet 
Részletes adatok
Az OTP Bank lakáshitel ajánlataFizetett hirdetés
Induló törlesztőrészlet
101 262 Ft /hóTörlesztőrészlet a 13. hónaptól
129 106 Ft /hóInduló törlesztőrészlet
135 016 Ft /hóTörlesztőrészlet a 13. hónaptól
172 142 Ft /hóA tájékoztatás nem teljes körű és nem minősül ajánlattételnek. Az OTP Évnyerő Lakáshitelei 1 éves türelmi idős kölcsönök, amellyel az első 12 hónapban alacsonyabb a havi törlesztőrészlet. A tőke törlesztését a 13. hónaptól kell megkezdeni.
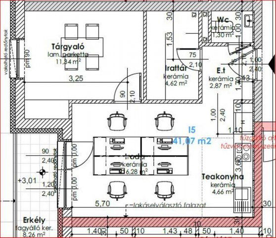
Eladó téglalakás leírása
Győr-Szabadhegy kiváló lokációju városrészében, prémium hőszivattyús padló / mennyezet hűtéssel / fűtéssel és hőszivattyús meleg víz előállítással rendelkező nappali +1 és nappali +2 szobás lakások akár kertkapcsolattal leköthetőek.
Továbbá irodák is, melyek a társasház alapító okirata szerint lakócélra is hasznosíthatóak. 
Az emelt szintű fűtés kész alap szerelt készültség a következőket tartalmazza:
A lakások kültér felé eső határoló főfalai 30-40 cm vastagságú falazóelemek, 15 cm vastag hőszigeteléssel. A födémek helyszíni monolit vasbeton lemezek a két lakószinten. A válaszfalak 10-15 cm vastag falazóelemek. Műanyag homlokzati nyílászárók (bukó, nyíló) 3 rétegű üvegezéssel (Ug = 0,6 az üvegre). Rejtett vakolható lindab redőny tok elektromos mozgatás kábelezéssel redőny nélkül. A tető szigetelése 20-25 cm vastag hőszigetelés.
Burkolat nélküli beton aljzatok. Simított belsővakolat elkészítése. Bádogos szerkezetek, külső PVC párkány. Műanyag, több ponton záródó biztonsági bejárati ajtó.
A belső válaszfalak szabadon változtathatóak a gépészeti gerincvezetékek elhelyezkedését figyelem bevéve , így formálhatja új otthonát az Ön igénye szerint. A társas házi lakások emelt szintű szerkezet kész állapotának elkészülése 2024 vége. Részletes műszaki dokumentációért, bővebb információért vagy megtekintéssel kapcsolatban keressen bizalommal a hét bármely napján!
Állok rendelkezésre ingatlan eladás-vétel, pénzügyi termékek, hitel, CSOK ügyintézésében. Több százas ingatlanállományból biztos megtalálom az Ön igényeinek megfelelőt! Hívjon bizalommal: Komádi Csaba +36706229209
Referencia szám: M260404-ZE
Hirdetés feltöltve: 2025. 10. 31. Utoljára módosítva: 2025. 10. 31.
2 szobás téglalakások ára Győrött
Ebből az összehasonlításból megtudhatod, hogyan viszonyul a lakás ára a környékbeli téglalakások átlagos árához. Ez nem azt jelenti, hogy ennyivel olcsóbb vagy drágább, mint amennyit a lakás ér, hanem hogy ennyivel tér el a környékbeli átlagtól.
Az ingatlan elhelyezkedése
Cím: Győr, 1. emelet
 
 
 
 
 
 
 
 
 
 
 
 
 
 
 
 
 
 
 
 
 
 
 
 
 
 
 
 
 
 
