Seven Pearl

Eladó téglalakás
Győr, 1. emelet

+ 2 kép 1/5
59 005 750 Ft59.006 M Ft 951 706 Ft/m2
3 szoba
62 m2
1. emelet

Részletes adatok

Telekméret: 62 m2
Fűtés: Egyéb
Közmű: Víz, Villany, Csatorna
Energetikai besorolás: Nem adta meg a hirdető

Az OTP Bank lakáshitel ajánlataFizetett hirdetés

+36 70 886
Neizer Éva
Trendi Ingatlan

Érdekel az OTP Bank kedvezményes lakáshitel ajánlata? *

* A kérdésre „Igen” válasz bejelölése esetén, az „Üzenet küldése” gombra kattintva kijelentem, hogy az OTP Bank Nyrt. Adatkezelési tájékoztatójának tartalmát megismertem és tudomásul vettem.

Eladó téglalakás leírása

Győr belvárosától 10 perces autóútra, Szitásdomb II. Lakóparkban 2025 decemberi átadással 25 lakásos társasházban magas minőségi tartalommal épülő lakások eladók.

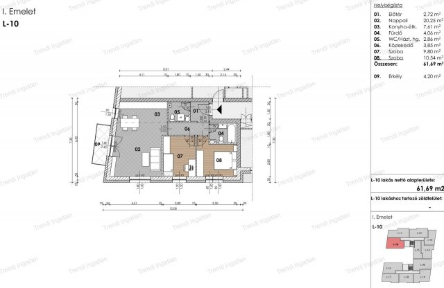
Az 1. emeleten található 61,69 m²-es lakásban amerikai konyhás nappali, 2 szoba, fürdőszoba, háztartási helyiség WC-vel, közlekedő, előtér kerül kialakításra. Nappaliból 4,20 m²-es erkély nyílik.

A lakás fűtéskész ára: 59.005.750 Ft. Kulcsrakész befejezés kérhető.
Gépkocsibeálló ára: 1.000.000 Ft + Áfa/db. A lakáshoz 2 db gépkocsibeállót kell vásárolni.

MŰSZAKI JELLEMZŐK:
A tárasház 30 cm-es falazóelemből, 20 cm-es homlokzati szigeteléssel épül. A műanyag, hang-és hőszigetelt, Internorm nyílászárók kívül antracit színűek. Az ár tartalmazza az alumínium elektromos redőny előkészítését és a redőny dobok beépítését. Az ingatlan hűtése/fűtése hőszivattyúval történik, egyedi hőmennyiségmérővel és hőmérséklet szabályozó termosztáttal, így nincs szükség klímára. Melegvíz előállítás is hőszivattyúval megoldott. A társasház udvaran térkövezett gépkocsibeállók kerülnek kialakításra.

KÖRNYÉK JELLEMZŐI:
Tárasház új kialakítású részen, a Szitásdomb II. Lakóparkban épül. A közelben boltok, pékség, babauszoda, szépségszalon, játszótér található. A környéken új és újszerű családi házak, társasházak épültek/épülnek. Győr-Belvárosa, az Ipari Park, az AUDI, az autópálya elkerülő könnyen elérhető.

ELŐNYÖK:
Modern, új építésű társasház, ami minőségi anyagokból épül.
Új lakópark, ahol csak új építésű ingatlanok találhatóak.
2025 év végi átadás.
Belváros, az Ipari Park, az autópálya elkerülő könnyen elérhető.

Ha szeretné megtekinteni a helyszínt, vagy bővebb tájékoztatást szeretne kérni, várom hívását akár hétvégén is!

Díjmentes, bankfüggetlen hitelügyintézéssel állunk rendelkezésére.

A hirdetésben feltüntetett képek illusztrációk.

Hirdetés feltöltve: 2025. 05. 06. Utoljára módosítva: 2025. 11. 03.

3 szobás téglalakások ára Győrött

Ebből az összehasonlításból megtudhatod, hogyan viszonyul a lakás ára a környékbeli téglalakások átlagos árához. Ez nem azt jelenti, hogy ennyivel olcsóbb vagy drágább, mint amennyit a lakás ér, hanem hogy ennyivel tér el a környékbeli átlagtól.

Ennek a m² ára
Győr m² ár
952 e Ft
1023 e Ft 7%
Ennek az ára
Győr átlagár
59.006 M Ft m Ft
73.5 m Ft 20%

Az ingatlan elhelyezkedése

Cím: Győr, 1. emelet

Eladó téglalakások a környékről

Eladó téglalakás
Eladó téglalakás

Győr

48.99 M Ft
3 szoba
57 m2
Eladó téglalakás
Eladó téglalakás

Győr

98.5 M Ft
3 szoba
96 m2
Eladó téglalakás
Eladó téglalakás

Győr

85 M Ft
4 szoba
112 m2
Eladó téglalakás
Eladó téglalakás

Győr

85 M Ft
4 szoba
112 m2
Eladó téglalakás
Eladó téglalakás

Nagycenk

63.9 M Ft
1 + 2 szoba
62 m2
Eladó téglalakás
Eladó téglalakás

Győr

57 M Ft
2 szoba
57 m2
Eladó téglalakás
Eladó téglalakás

Győr

38.99 M Ft
2 szoba
46 m2
Eladó téglalakás
Eladó téglalakás

Győr

71.978 M Ft
3 szoba
71 m2
Eladó téglalakás
Eladó téglalakás

Győr

199.99 M Ft
3 + 1 szoba
160 m2
Eladó téglalakás
Eladó téglalakás

Győr

55.388 M Ft
2 szoba
54 m2
Eladó téglalakás
Eladó téglalakás

Sopron

73.9 M Ft
2 szoba
49 m2
Eladó téglalakás
Eladó téglalakás

Győr

48.99 M Ft
3 szoba
57 m2
Eladó téglalakás
Eladó téglalakás

Sopron

109 M Ft
5 szoba
130 m2
Eladó téglalakás
Eladó téglalakás

Győr

38.99 M Ft
2 szoba
43 m2
Eladó téglalakás
Eladó téglalakás

Sopron

9.9 M Ft
320 m2
Eladó téglalakás
Eladó téglalakás

Győr

98.5 M Ft
3 szoba
96 m2
Eladó téglalakás
Eladó téglalakás

Győr

55.844 M Ft
2 szoba
55 m2
Eladó téglalakás
Eladó téglalakás

Győr

95 M Ft
4 szoba
94 m2
Eladó téglalakás
Eladó téglalakás

Győr

38.99 M Ft
2 szoba
43 m2
Eladó téglalakás
Eladó téglalakás

Győr

38.99 M Ft
2 szoba
43 m2
Eladó téglalakás
Eladó téglalakás

Győr

115.875 M Ft
4 szoba
115 m2
Eladó téglalakás
Eladó téglalakás

Győr

38.99 M Ft
2 szoba
46 m2
Eladó téglalakás
Eladó téglalakás

Győr

199.99 M Ft
3 + 1 szoba
160 m2
Eladó téglalakás
Eladó téglalakás

Sopron

84.99 M Ft
3 + 1 szoba
56 m2

Falusi CSOK ingatlanok

Eladó családi ház
Eladó családi ház

Jakabszállás

69.99 M Ft
1 + 4 szoba
91 m2
Eladó családi ház
Eladó családi ház

Bakonyszentiván

9.19 M Ft
2 szoba
89 m2
Eladó családi ház
Eladó családi ház

Tárkány

35 M Ft
2 szoba
72 m2
Eladó családi ház
Eladó családi ház

Badacsonytomaj, Kodály Zoltán utca

185 M Ft
6 + 1 szoba
210 m2
Eladó családi ház
Eladó családi ház

Dág, Petőfi Sándor utca

36.9 M Ft
4 szoba
105 m2
Eladó családi ház
Eladó családi ház

Úrkút

94.9 M Ft
4 szoba
186 m2
Eladó családi ház
Eladó családi ház

Magyarszék

48.5 M Ft
3 + 1 szoba
86 m2
Eladó családi ház
Eladó családi ház

Nagyhegyes

75.9 M Ft
3 + 1 szoba
120 m2