River Life

Eladó téglalakás
Fonyód, 2. emelet

Figyelem!

Ez az ingatlan a 2019.07.01-től induló falusi CSOK által támogatott településen található

+ 10 kép 1/13
59 999 000 Ft59.999 M Ft 1 666 639 Ft/m2
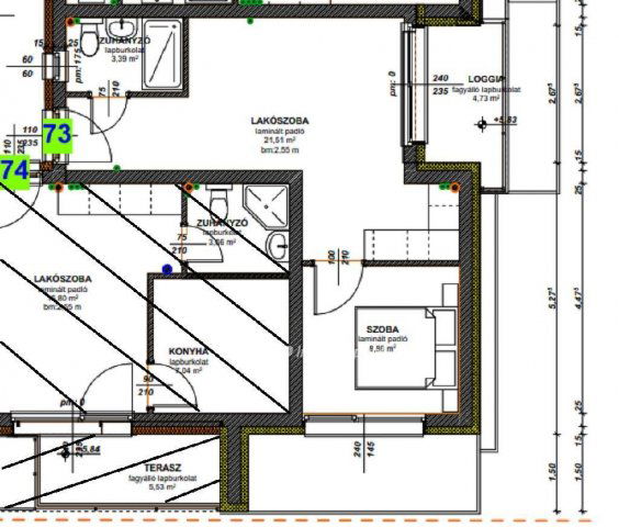
1 + 1 szoba
36 m2
2. emelet
építés éve:2025

Részletes adatok

Fűtés: Egyéb
Extrák: Lift
Energetikai besorolás: Nem adta meg a hirdető

Az OTP Bank lakáshitel ajánlataFizetett hirdetés

+36 70 334
Pál Miklós
referens

Érdekel az OTP Bank kedvezményes lakáshitel ajánlata? *

* A kérdésre „Igen” válasz bejelölése esetén, az „Üzenet küldése” gombra kattintva kijelentem, hogy az OTP Bank Nyrt. Adatkezelési tájékoztatójának tartalmát megismertem és tudomásul vettem.

Eladó téglalakás leírása

A ütem második emelet 73, 1+1 szoba. Balaton déli partjának egyik leghosszabb szabad strandjának közelében, Fonyódon új építésű lakóparkban kínálunk ingatlanokat kedvező áron. Az 50 lakásból, apartmanból, nyaralóból álló modern épület luxus színvonalú és meghatározó szereplője a környéknek. A tervezés során a magas műszaki tartalom mellett fontos szempont volt, hogy jól funkcionáló, élhető terek legyenek kialakítva elegáns megjelenésű épületben. Minden lakáshoz tartozik terasz, a földszinti lakásokhoz saját használatú zöld terület biztosított. A fűtésről és a lakás hűtéséről fűtő-hűtő hőszivattyú gondoskodik.
A napozó tetőn közösségi tér a jó használhatóságot biztosítja, ezen kívül jakuzzi és szauna kerül kialakításra Balatonra néző panorámával.
A projekt átadása a tervek szerint: 2026. II. negyedéve.
A lakás besorolás: Társasház A lakásvásárláshoz államilag támogatott hitelek, CSOK, kedvezményes hitelek és lakástámogatási termékek igényelhetőek, ennek elérésében díjmentes szolgáltatásunkkal segítjük a vásárlást!
Érdeklődni: Otp Ingatlanpont Kft. Pál Miklós 70 3341099

Referencia szám: M299008-ZE

Hirdetés feltöltve: 2025. 12. 10.

2 szobás téglalakások ára Fonyódon

Ebből az összehasonlításból megtudhatod, hogyan viszonyul a lakás ára a környékbeli téglalakások átlagos árához. Ez nem azt jelenti, hogy ennyivel olcsóbb vagy drágább, mint amennyit a lakás ér, hanem hogy ennyivel tér el a környékbeli átlagtól.

Ennek a m² ára
Fonyód m² ár
1667 e Ft
1392 e Ft -20%
Ennek az ára
Fonyód átlagár
59.999 M Ft m Ft
63.8 m Ft 6%

Az ingatlan elhelyezkedése

Cím: Fonyód, 2. emelet

Eladó téglalakások a környékről

Eladó téglalakás
Eladó téglalakás

Balatonföldvár

125.4 M Ft
4 szoba
114 m2
Eladó téglalakás
Eladó téglalakás

Fonyód

92.923 M Ft
3 szoba
62 m2
Eladó téglalakás
Eladó téglalakás

Fonyód

49.99 M Ft
1 szoba
29 m2
Eladó téglalakás
Eladó téglalakás

Fonyód

199 M Ft
4 + 2 szoba
120 m2
Eladó téglalakás
Eladó téglalakás

Fonyód

61.99 M Ft
3 szoba
109 m2
Eladó téglalakás
Eladó téglalakás

Siófok, Ezustparti utca

86.9 M Ft
3 szoba
60 m2
Eladó téglalakás
Eladó téglalakás

Balatonfenyves

127.65 M Ft
2 szoba
51 m2
Eladó téglalakás
Eladó téglalakás

Balatonfenyves

135.05 M Ft
2 szoba
59 m2
Eladó téglalakás
Eladó téglalakás

Fonyód

81.9 M Ft
5 szoba
141 m2
Eladó téglalakás
Eladó téglalakás

Fonyód

102.5 M Ft
2 szoba
57 m2
Eladó téglalakás
Eladó téglalakás

Balatonfenyves

149 M Ft
2 szoba
59 m2
Eladó téglalakás
Eladó téglalakás

Fonyód

79.35 M Ft
2 szoba
53 m2
Eladó téglalakás
Eladó téglalakás

Siófok

49.9 M Ft
2 szoba
41 m2
Eladó téglalakás
Eladó téglalakás

Balatonfenyves

938.75 M Ft
3 szoba
145 m2
Eladó téglalakás
Eladó téglalakás

Balatonfenyves

563.75 M Ft
4 szoba
114 m2
Eladó téglalakás
Eladó téglalakás

Balatonfenyves

218.75 M Ft
2 szoba
66 m2
Eladó téglalakás
Eladó téglalakás

Fonyód

55 M Ft
3 szoba
85 m2
Eladó téglalakás
Eladó téglalakás

Balatonfenyves

191.4 M Ft
3 szoba
66 m2
Eladó téglalakás
Eladó téglalakás

Fonyód

101.54 M Ft
3 + 1 szoba
86 m2
Eladó téglalakás
Eladó téglalakás

Balatonfenyves

79 M Ft
1 szoba
35 m2
Eladó téglalakás
Eladó téglalakás

Fonyód

52.417 M Ft
2 szoba
30 m2
Eladó téglalakás
Eladó téglalakás

Siófok, Ezustparti utca

84.9 M Ft
3 szoba
58 m2
Eladó téglalakás
Eladó téglalakás

Siófok, Ezustparti utca

76.4 M Ft
3 szoba
58 m2
Eladó téglalakás
Eladó téglalakás

Balatonfenyves

78.975 M Ft
1 szoba
35 m2

Falusi CSOK ingatlanok

Eladó családi ház
Eladó családi ház

Hajdúbagos

69.9 M Ft
5 szoba
230 m2
Eladó téglalakás
Eladó téglalakás

Balatonszemes

119.9 M Ft
2 szoba
81 m2
Eladó családi ház
Eladó családi ház

Darnózseli

49.9 M Ft
5 szoba
150 m2
Eladó családi ház
Eladó családi ház

Madaras

5.9 M Ft
3 szoba
90 m2
Eladó családi ház
Eladó családi ház

Iváncsa

73.9 M Ft
1 + 3 szoba
97 m2
Eladó családi ház
Eladó családi ház

Szabadbattyán

30 M Ft
4 szoba
75 m2
Eladó családi ház
Eladó családi ház

Kenyeri

39.9 M Ft
3 szoba
94 m2
Eladó családi ház
Eladó családi ház

Törtel

25.9 M Ft
5 szoba
95 m2

Falusi CSOK ingatlanok

Eladó családi ház
Eladó családi ház

Pécsvárad

140 M Ft
2 szoba
79 m2
Eladó családi ház
Eladó családi ház

Kondorfa, Fővég utca

24.9 M Ft
3 szoba
102 m2
Eladó családi ház
Eladó családi ház

Fertőd

189.9 M Ft
4 szoba
175 m2
Eladó családi ház
Eladó családi ház

Balatonfenyves

430 M Ft
4 szoba
274 m2
Eladó téglalakás
Eladó téglalakás

Nagyharsány

22.5 M Ft
3 szoba
71 m2
Eladó családi ház
Eladó családi ház

Pétfürdő

74.9 M Ft
3 szoba
89 m2
Eladó családi ház
Eladó családi ház

Somogygeszti

38.6 M Ft
3 + 1 szoba
98 m2
Eladó téglalakás
Eladó téglalakás

Balatonszemes

119.9 M Ft
2 szoba
81 m2