Astora Olive Club House

Eladó téglalakás
Fonyód, 1. emelet

Figyelem!

Ez az ingatlan a 2019.07.01-től induló falusi CSOK által támogatott településen található

+ 8 kép 1/11
73 400 000 Ft73.4 M Ft 1 310 714 Ft/m2
2 szoba
56 m2
1. emelet
építés éve:2025

Részletes adatok

Telekméret: 56 m2
Fűtés: Egyéb
Közmű: Víz, Villany, Csatorna
Energetikai besorolás: Nem adta meg a hirdető

Az OTP Bank lakáshitel ajánlataFizetett hirdetés

+36 70 778
Szűcs Gergely
City Cartel Balaton

Érdekel az OTP Bank kedvezményes lakáshitel ajánlata? *

* A kérdésre „Igen” válasz bejelölése esetén, az „Üzenet küldése” gombra kattintva kijelentem, hogy az OTP Bank Nyrt. Adatkezelési tájékoztatójának tartalmát megismertem és tudomásul vettem.

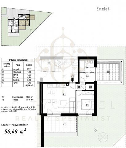
Eladó téglalakás leírása

Fonyód kedvelt, állandóan lakott részén ÚJ ÉPÍTÉSŰ első emeleti lakás eladó!

A City Cartel Ingatlaniroda eladásra kínál egy 56 m²-es, modern kialakítású lakást egy 4 lakásos, exkluzív társasházban. Az ingatlan jelenleg szerkezetkész, de kulcsrakész állapotban kerül átadásra, így még lehetőség van bizonyos belső kialakítások személyre szabására.

A lakás elosztása:

- gardrób

- tágas, amerikai konyhás nappali

- 1 hálószoba

- 1 kádas fürdőszoba Wc-vel

- 13 m²-es fedett és 11 m2-es nem fedett terasz, amely kiváló helyszín pihenéshez vagy vendégfogadáshoz

Műszaki tartalom:

- modern hőszivattyús rendszer

- padlófűtés

- mennyezeti hűtés-fűtés, a teljes lakás komfortos klímájáért

A Balaton partja kb. 2 km távolságra található, így a nyugalom és a tó közelségének tökéletes kombinációját kínálja.

Akció az előértékesítés keretében: AJÁNDÉK gépkocsibeálló!

Ideális választás állandó lakhatásra, nyaralónak vagy befektetésnek egyaránt.

További információkért írjon, vagy hívjon, a hét bármely napján az alábbi elérhetőségeim egyikén!

Irodáink:
8600 Siófok, Fő tér 6. (Sió Pláza -1. szint)
8640 Fonyód, Ady Endre u. 5. (Balaton Áruház földszint)
8638 Balatonlelle, Rákóczi út 276.

Kövess minket Facebook-on is: @citycartelbalaton!

Hirdetés feltöltve: 2025. 11. 26. Utoljára módosítva: 2025. 11. 27.

2 szobás téglalakások ára Fonyódon

Ebből az összehasonlításból megtudhatod, hogyan viszonyul a lakás ára a környékbeli téglalakások átlagos árához. Ez nem azt jelenti, hogy ennyivel olcsóbb vagy drágább, mint amennyit a lakás ér, hanem hogy ennyivel tér el a környékbeli átlagtól.

Ennek a m² ára
Fonyód m² ár
1311 e Ft
1376 e Ft 5%
Ennek az ára
Fonyód átlagár
73.4 M Ft m Ft
63.3 m Ft -16%

Az ingatlan elhelyezkedése

Cím: Fonyód, 1. emelet

Eladó téglalakások a környékről

Eladó téglalakás
Eladó téglalakás

Fonyód

52.417 M Ft
2 szoba
30 m2
Eladó téglalakás
Eladó téglalakás

Balatonfenyves

79 M Ft
1 szoba
35 m2
Eladó téglalakás
Eladó téglalakás

Fonyód

79.35 M Ft
2 szoba
53 m2
Eladó téglalakás
Eladó téglalakás

Balatonfenyves

213.4 M Ft
3 szoba
73 m2
Eladó téglalakás
Eladó téglalakás

Balatonszemes, Ady E. utca 6

132.9 M Ft
3 szoba
62 m2
Eladó téglalakás
Eladó téglalakás

Fonyód

49.99 M Ft
1 szoba
29 m2
Eladó téglalakás
Eladó téglalakás

Fonyód

55 M Ft
3 szoba
85 m2
Eladó téglalakás
Eladó téglalakás

Siófok, Ezustparti utca

76.4 M Ft
3 szoba
58 m2
Eladó téglalakás
Eladó téglalakás

Balatonfenyves

149 M Ft
2 szoba
59 m2
Eladó téglalakás
Eladó téglalakás

Balatonfenyves

127.65 M Ft
2 szoba
51 m2
Eladó téglalakás
Eladó téglalakás

Balatonfenyves

218.75 M Ft
2 szoba
66 m2
Eladó téglalakás
Eladó téglalakás

Balatonföldvár

125.4 M Ft
4 szoba
114 m2
Eladó téglalakás
Eladó téglalakás

Fonyód

199 M Ft
4 + 2 szoba
120 m2
Eladó téglalakás
Eladó téglalakás

Siófok, Ezustparti utca

86.9 M Ft
3 szoba
60 m2
Eladó téglalakás
Eladó téglalakás

Fonyód

101.54 M Ft
3 + 1 szoba
86 m2
Eladó téglalakás
Eladó téglalakás

Fonyód

81.9 M Ft
5 szoba
141 m2
Eladó téglalakás
Eladó téglalakás

Fonyód

64 M Ft
4 + 1 szoba
120 m2
Eladó téglalakás
Eladó téglalakás

Fonyód

199 M Ft
4 + 2 szoba
120 m2
Eladó téglalakás
Eladó téglalakás

Balatonfenyves

563.75 M Ft
4 szoba
114 m2
Eladó téglalakás
Eladó téglalakás

Siófok, Ezustparti utca

84.9 M Ft
3 szoba
58 m2
Eladó téglalakás
Eladó téglalakás

Siófok

54.99 M Ft
1 szoba
41 m2
Eladó téglalakás
Eladó téglalakás

Fonyód

92.923 M Ft
3 szoba
62 m2
Eladó téglalakás
Eladó téglalakás

Fonyód

59.99 M Ft
2 szoba
36 m2
Eladó téglalakás
Eladó téglalakás

Fonyód

55 M Ft
3 szoba
85 m2

Falusi CSOK ingatlanok

Eladó családi ház
Eladó családi ház

Sály, Kossuth Lajos 128

30.48 M Ft
6 szoba
160 m2
Eladó családi ház
Eladó családi ház

Ipolyvece

18.9 M Ft
3 + 1 szoba
91 m2
Eladó családi ház
Eladó családi ház

Dunaszekcső

27.5 M Ft
3 szoba
128 m2
Eladó családi ház
Eladó családi ház

Nemesvid, Templom utca

16 M Ft
2 szoba
76 m2
Eladó családi ház
Eladó családi ház

Kondorfa, Fővég utca

24.9 M Ft
3 szoba
102 m2
Eladó családi ház
Eladó családi ház

Bag

110 M Ft
5 szoba
320 m2
Eladó családi ház
Eladó családi ház

Újlengyel

108 M Ft
3 szoba
80 m2
Eladó családi ház
Eladó családi ház

Alattyán

8.5 M Ft
1 + 1 szoba
70 m2

Falusi CSOK ingatlanok

Eladó családi ház
Eladó családi ház

Sellye

21.6 M Ft
2 szoba
72 m2
Eladó téglalakás
Eladó téglalakás

Nagyharsány

22.5 M Ft
3 szoba
71 m2
Eladó családi ház
Eladó családi ház

Mikebuda

68.5 M Ft
2 szoba
90 m2
Eladó családi ház
Eladó családi ház

Farmos

38.9 M Ft
2 szoba
46 m2
Eladó családi ház
Eladó családi ház

Belvárdgyula

58.65 M Ft
5 szoba
164 m2
Eladó családi ház
Eladó családi ház

Zengővárkony

35 M Ft
3 szoba
87 m2
Eladó téglalakás
Eladó téglalakás

Balatonszemes

125.2 M Ft
2 szoba
50 m2
Eladó családi ház
Eladó családi ház

Táborfalva

59.9 M Ft
3 szoba
84 m2