BAM Living

Eladó téglalakás
Fonyód, 1. emelet

Figyelem!

Ez az ingatlan a 2019.07.01-től induló falusi CSOK által támogatott településen található

+ 8 kép 1/11
82 300 000 Ft82.3 M Ft 1 306 349 Ft/m2
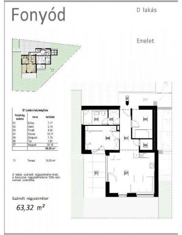
1 + 2 szoba
63 m2
1. emelet
építés éve:2025

Részletes adatok

Fűtés: Egyéb
Energetikai besorolás: Nem adta meg a hirdető

Az OTP Bank lakáshitel ajánlataFizetett hirdetés

+36 70 327
Fehér András
referens

Érdekel az OTP Bank kedvezményes lakáshitel ajánlata? *

* A kérdésre „Igen” válasz bejelölése esetén, az „Üzenet küldése” gombra kattintva kijelentem, hogy az OTP Bank Nyrt. Adatkezelési tájékoztatójának tartalmát megismertem és tudomásul vettem.

Eladó téglalakás leírása

Somogy vármegye Fonyód településén, nyugodt környéken, a Panoráma lakóparkban eladó egy új építésű ingatlan. A lakópark jól megközelíthető elkerített területen található. Jelenleg az épület szerkezetkész, tetőszerkezettel, azaz kb. 60 %-os készültségi fokon áll. A végső állapot kialakításába bizonyos mértékig és költségkeretig a vevőnek van beleszólása.
Fonyód központ, piac, kikötő 6-7 perc autóval.
Ha valaki gyorsan megrendeli, a karácsonyt már ott töltheti.
Megtekintés kapcsán vagy érdeklődéssel forduljanak hozzánk bizalommal!

Hirdetés feltöltve: 2025. 10. 29. Utoljára módosítva: 2026. 01. 13.

3 szobás téglalakások ára Fonyódon

Ebből az összehasonlításból megtudhatod, hogyan viszonyul a lakás ára a környékbeli téglalakások átlagos árához. Ez nem azt jelenti, hogy ennyivel olcsóbb vagy drágább, mint amennyit a lakás ér, hanem hogy ennyivel tér el a környékbeli átlagtól.

Ennek a m² ára
Fonyód m² ár
1306 e Ft
1198 e Ft -9%
Ennek az ára
Fonyód átlagár
82.3 M Ft m Ft
81.4 m Ft -1%

Az ingatlan elhelyezkedése

Cím: Fonyód, 1. emelet

Eladó téglalakások a környékről

Eladó téglalakás
Eladó téglalakás

Balatonfenyves

127.65 M Ft
2 szoba
51 m2
Eladó téglalakás
Eladó téglalakás

Balatonfenyves

938.75 M Ft
3 szoba
145 m2
Eladó téglalakás
Eladó téglalakás

Fonyód

75.788 M Ft
3 szoba
51 m2
Eladó téglalakás
Eladó téglalakás

Fonyód

57.99 M Ft
2 szoba
46 m2
Eladó téglalakás
Eladó téglalakás

Balatonfenyves

78.975 M Ft
1 szoba
35 m2
Eladó téglalakás
Eladó téglalakás

Fonyód

101.54 M Ft
3 + 1 szoba
86 m2
Eladó téglalakás
Eladó téglalakás

Fonyód

81.638 M Ft
2 szoba
55 m2
Eladó téglalakás
Eladó téglalakás

Siófok, Ezustparti utca

84.9 M Ft
3 szoba
58 m2
Eladó téglalakás
Eladó téglalakás

Fonyód

47.99 M Ft
1 szoba
27 m2
Eladó téglalakás
Eladó téglalakás

Balatonfenyves

124.9 M Ft
3 szoba
67 m2
Eladó téglalakás
Eladó téglalakás

Fonyód

61.99 M Ft
3 szoba
109 m2
Eladó téglalakás
Eladó téglalakás

Balatonfenyves

218.75 M Ft
2 szoba
66 m2
Eladó téglalakás
Eladó téglalakás

Siófok

49.9 M Ft
2 szoba
41 m2
Eladó téglalakás
Eladó téglalakás

Fonyód

55 M Ft
3 szoba
85 m2
Eladó téglalakás
Eladó téglalakás

Balatonföldvár

125.4 M Ft
4 szoba
114 m2
Eladó téglalakás
Eladó téglalakás

Fonyód

79.35 M Ft
2 szoba
53 m2
Eladó téglalakás
Eladó téglalakás

Fonyód

55 M Ft
3 szoba
85 m2
Eladó téglalakás
Eladó téglalakás

Balatonfenyves

213.4 M Ft
3 szoba
73 m2
Eladó téglalakás
Eladó téglalakás

Fonyód

199 M Ft
4 + 2 szoba
120 m2
Eladó téglalakás
Eladó téglalakás

Fonyód

75.788 M Ft
2 szoba
51 m2
Eladó téglalakás
Eladó téglalakás

Fonyód

99 M Ft
3 szoba
75 m2
Eladó téglalakás
Eladó téglalakás

Fonyód

101.54 M Ft
3 + 1 szoba
86 m2
Eladó téglalakás
Eladó téglalakás

Fonyód

99 M Ft
3 szoba
75 m2
Eladó téglalakás
Eladó téglalakás

Fonyód

92.923 M Ft
3 szoba
62 m2

Falusi CSOK ingatlanok

Eladó ikerház
Eladó ikerház

Balatonkeresztúr, Bolygó utca

59.9 M Ft
4 szoba
83 m2
Eladó családi ház
Eladó családi ház

Szentbékkálla, Szentbékkálla

63.9 M Ft
2 szoba
143 m2
Eladó családi ház
Eladó családi ház

Fonyód

89.9 M Ft
7 szoba
151 m2
Eladó családi ház
Eladó családi ház

Sükösd

40 M Ft
3 szoba
112 m2
Eladó családi ház
Eladó családi ház

Tabdi

95 M Ft
45 szoba
1490 m2
Eladó családi ház
Eladó családi ház

Eplény

99.9 M Ft
6 szoba
163 m2
Eladó családi ház
Eladó családi ház

Enese

82.9 M Ft
4 szoba
90 m2
Eladó családi ház
Eladó családi ház

Nagypall, Szabadság utca

35.9 M Ft
3 szoba
125 m2

Falusi CSOK ingatlanok

Eladó családi ház
Eladó családi ház

Bozsok

290 M Ft
6 szoba
370 m2
Eladó családi ház
Eladó családi ház

Csengőd

42 M Ft
2 szoba
81 m2
Eladó családi ház
Eladó családi ház

Enese

82.9 M Ft
4 szoba
90 m2
Eladó családi ház
Eladó családi ház

Tabdi

95 M Ft
45 szoba
1490 m2
Eladó családi ház
Eladó családi ház

Nagypall, Szabadság utca

35.9 M Ft
3 szoba
125 m2
Eladó családi ház
Eladó családi ház

Bucsa

23 M Ft
3 szoba
90 m2
Eladó családi ház
Eladó családi ház

Szabadbattyán

163.99 M Ft
5 szoba
255 m2
Eladó családi ház
Eladó családi ház

Ceglédbercel

67 M Ft
4 szoba
165 m2