Eladó téglalakás
Fonyód, 1. emelet

Figyelem!

Ez az ingatlan a 2019.07.01-től induló falusi CSOK által támogatott településen található

+ 8 kép 1/11
73 400 000 Ft73.4 M Ft 1 310 714 Ft/m2
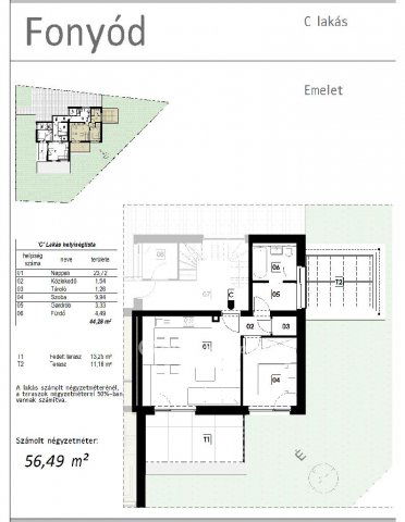
1 + 1 szoba
56 m2
1. emelet
építés éve:2025

Részletes adatok

Fűtés: Egyéb
Energetikai besorolás: Nem adta meg a hirdető

Az OTP Bank lakáshitel ajánlataFizetett hirdetés

+36 70 327
Fehér András
referens

Érdekel az OTP Bank kedvezményes lakáshitel ajánlata? *

* A kérdésre „Igen” válasz bejelölése esetén, az „Üzenet küldése” gombra kattintva kijelentem, hogy az OTP Bank Nyrt. Adatkezelési tájékoztatójának tartalmát megismertem és tudomásul vettem.

Eladó téglalakás leírása

Somogy vármegye Fonyód településén, nyugodt környéken, a Panoráma lakóparkban eladó egy új építésű ingatlan. A lakópark jól megközelíthető elkerített területen található. Jelenleg az épület szerkezetkész, tetőszerkezettel, azaz kb. 60 %-os készültségi fokon áll. A végső állapot kialakításába bizonyos mértékig és költségkeretig a vevőnek van beleszólása.
Fonyód központ, piac, kikötő 6-7 perc autóval.
Ha valaki gyorsan megrendeli, a karácsonyt már ott töltheti.
Megtekintés kapcsán vagy érdeklődéssel forduljanak hozzánk bizalommal!

Hirdetés feltöltve: 2025. 10. 28. Utoljára módosítva: 2025. 10. 28.

2 szobás téglalakások ára Fonyódon

Ebből az összehasonlításból megtudhatod, hogyan viszonyul a lakás ára a környékbeli téglalakások átlagos árához. Ez nem azt jelenti, hogy ennyivel olcsóbb vagy drágább, mint amennyit a lakás ér, hanem hogy ennyivel tér el a környékbeli átlagtól.

Ennek a m² ára
Fonyód m² ár
1311 e Ft
1376 e Ft 5%
Ennek az ára
Fonyód átlagár
73.4 M Ft m Ft
63.8 m Ft -15%

Az ingatlan elhelyezkedése

Cím: Fonyód, 1. emelet

Eladó téglalakások a környékről

Eladó téglalakás
Eladó téglalakás

Siófok

83.5 M Ft
3 szoba
66 m2
Eladó téglalakás
Eladó téglalakás

Balatonfenyves

191.4 M Ft
3 szoba
66 m2
Eladó téglalakás
Eladó téglalakás

Fonyód

52.417 M Ft
2 szoba
30 m2
Eladó téglalakás
Eladó téglalakás

Fonyód

92.923 M Ft
3 szoba
62 m2
Eladó téglalakás
Eladó téglalakás

Fonyód

55 M Ft
3 szoba
85 m2
Eladó téglalakás
Eladó téglalakás

Siófok

122 M Ft
3 szoba
65 m2
Eladó téglalakás
Eladó téglalakás

Fonyód

79.35 M Ft
2 szoba
53 m2
Eladó téglalakás
Eladó téglalakás

Fonyód

81.638 M Ft
2 szoba
55 m2
Eladó téglalakás
Eladó téglalakás

Fonyód

55 M Ft
3 szoba
85 m2
Eladó téglalakás
Eladó téglalakás

Siófok

49.9 M Ft
2 szoba
41 m2
Eladó téglalakás
Eladó téglalakás

Balatonfenyves

127.65 M Ft
2 szoba
51 m2
Eladó téglalakás
Eladó téglalakás

Fonyód

81.9 M Ft
5 szoba
141 m2
Eladó téglalakás
Eladó téglalakás

Balatonfenyves

563.75 M Ft
4 szoba
114 m2
Eladó téglalakás
Eladó téglalakás

Fonyód

59.99 M Ft
2 szoba
46 m2
Eladó téglalakás
Eladó téglalakás

Fonyód

59.99 M Ft
2 szoba
36 m2
Eladó téglalakás
Eladó téglalakás

Fonyód

47.99 M Ft
1 szoba
27 m2
Eladó téglalakás
Eladó téglalakás

Siófok, Ezustparti utca

86.9 M Ft
3 szoba
60 m2
Eladó téglalakás
Eladó téglalakás

Balatonfenyves

135.05 M Ft
2 szoba
59 m2
Eladó téglalakás
Eladó téglalakás

Balatonfenyves

124.9 M Ft
3 szoba
67 m2
Eladó téglalakás
Eladó téglalakás

Balatonfenyves

79 M Ft
1 szoba
35 m2
Eladó téglalakás
Eladó téglalakás

Balatonfenyves

78.975 M Ft
1 szoba
35 m2
Eladó téglalakás
Eladó téglalakás

Fonyód

101.54 M Ft
3 + 1 szoba
86 m2
Eladó téglalakás
Eladó téglalakás

Balatonfenyves

109 M Ft
2 szoba
45 m2
Eladó téglalakás
Eladó téglalakás

Siófok, Ezustparti utca

76.4 M Ft
3 szoba
58 m2

Falusi CSOK ingatlanok

Eladó családi ház
Eladó családi ház

Pannonhalma

124.9 M Ft
4 szoba
126 m2
Eladó családi ház
Eladó családi ház

Hernádnémeti

19.9 M Ft
2 szoba
62 m2
Eladó családi ház
Eladó családi ház

Jakabszállás, Nyár utca

64.63 M Ft
1 szoba
132 m2
Eladó családi ház
Eladó családi ház

Kadarkút

39.9 M Ft
5 + 1 szoba
150 m2
Eladó családi ház
Eladó családi ház

Kisnána

27.9 M Ft
4 szoba
180 m2
Eladó családi ház
Eladó családi ház

Bácsbokod

12.9 M Ft
3 szoba
90 m2
Eladó családi ház
Eladó családi ház

Vaskút

14.9 M Ft
3 szoba
120 m2
Eladó családi ház
Eladó családi ház

Dunaegyháza, Rákóczi Ferenc utca

19.9 M Ft
3 szoba
120 m2

Falusi CSOK ingatlanok

Eladó családi ház
Eladó családi ház

Jakabszállás

62.9 M Ft
4 szoba
91 m2
Eladó családi ház
Eladó családi ház

Lovászpatona

15.9 M Ft
3 szoba
72 m2
Eladó családi ház
Eladó családi ház

Tóalmás

35 M Ft
1 szoba
36 m2
Eladó családi ház
Eladó családi ház

Berzence

69.9 M Ft
6 szoba
257 m2
Eladó családi ház
Eladó családi ház

Újlengyel

110 M Ft
4 szoba
121 m2
Eladó családi ház
Eladó családi ház

Darnózseli

79.9 M Ft
4 szoba
104 m2
Eladó családi ház
Eladó családi ház

Tótszerdahely

55.5 M Ft
4 + 2 szoba
160 m2
Eladó családi ház
Eladó családi ház

Tápióbicske

18 M Ft
7 szoba
104 m2