Oasis Residence

Eladó téglalakás
Fonyód

Figyelem!

Ez az ingatlan a 2019.07.01-től induló falusi CSOK által támogatott településen található

+ 3 kép 1/6
79 900 000 Ft79.9 M Ft 1 109 722 Ft/m2
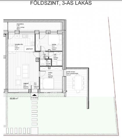
1 + 2 szoba
72 m2
építés éve:2022

Részletes adatok

Fűtés: Egyéb
Parkolás: Garázs
Energetikai besorolás: Nem adta meg a hirdető

Az OTP Bank lakáshitel ajánlataFizetett hirdetés

+36 70 334
Pál Miklós
referens

Érdekel az OTP Bank kedvezményes lakáshitel ajánlata? *

* A kérdésre „Igen” válasz bejelölése esetén, az „Üzenet küldése” gombra kattintva kijelentem, hogy az OTP Bank Nyrt. Adatkezelési tájékoztatójának tartalmát megismertem és tudomásul vettem.

Eladó téglalakás leírása

Fonyód Várhegyen épülő 6 lakásos modern stílusú épületben kínálunk eladásra ingatlanokat 54 nm-128 nm méretben, 1+1 szobástól a 2+2 szobásig. A jól átgondolt élhető terekkel rendelkező luxus színvonalú panorámás lakások 3 szinten (földszint+2 emelet) helyezkednek el. Magas műszaki tartalom jellemzi az elegáns megjelenésű épületet. Az ingatlan egész éves lakhatásra kialakított, de nyaralásra, befektetési célra is kiváló lehetőség. A lakások klimatizálását hőszivattyús rendszer oldja meg.
A projekt átadása a tervek szerint: 2022. év III. negyedéve.

Minden lakáshoz tartozik terasz, ahonnan a Badacsony, Tihany vagy a somogyi lankák panorámája élvezhető. A lakásokhoz tartozó saját kizárólagos használatú parkosított kertben pihenő rész lesz kialakítva.,az első lakásokhoz ajándék Jacuzzival a teraszon!

A lakásvásárláshoz CSOK, kedvezményes hitelek és lakástámogatási termékek igénybe vehetőek! Az áfa a jogosultaknak akár visszaigényelhető, a vásárlás illetékmentes is lehet! A pénzügyi termékek könnyebb elérhetőségében térítésmentesen segítünk igény esetén!

Óvoda, iskola gyalogosan is könnyen megközelíthető, a legközelebbi strand 15 perc sétával elérhető!

Hirdetés feltöltve: 2025. 08. 28. Utoljára módosítva: 2025. 11. 12.

3 szobás téglalakások ára Fonyódon

Ebből az összehasonlításból megtudhatod, hogyan viszonyul a lakás ára a környékbeli téglalakások átlagos árához. Ez nem azt jelenti, hogy ennyivel olcsóbb vagy drágább, mint amennyit a lakás ér, hanem hogy ennyivel tér el a környékbeli átlagtól.

Ennek a m² ára
Fonyód m² ár
1110 e Ft
1159 e Ft 4%
Ennek az ára
Fonyód átlagár
79.9 M Ft m Ft
79.5 m Ft 0%

Az ingatlan elhelyezkedése

Cím: Fonyód

Eladó téglalakások a környékről

Eladó téglalakás
Eladó téglalakás

Siófok, Ezustparti utca

86.9 M Ft
3 szoba
60 m2
Eladó téglalakás
Eladó téglalakás

Balatonfenyves

127.65 M Ft
2 szoba
51 m2
Eladó téglalakás
Eladó téglalakás

Fonyód

75.788 M Ft
2 szoba
51 m2
Eladó téglalakás
Eladó téglalakás

Fonyód

64 M Ft
4 + 1 szoba
120 m2
Eladó téglalakás
Eladó téglalakás

Balatonszemes, Ady E. utca 6

132.9 M Ft
3 szoba
62 m2
Eladó téglalakás
Eladó téglalakás

Fonyód

101.54 M Ft
3 + 1 szoba
86 m2
Eladó téglalakás
Eladó téglalakás

Fonyód

61.99 M Ft
3 szoba
109 m2
Eladó téglalakás
Eladó téglalakás

Balatonfenyves

218.75 M Ft
2 szoba
66 m2
Eladó téglalakás
Eladó téglalakás

Siófok, Ezustparti utca

76.4 M Ft
3 szoba
58 m2
Eladó téglalakás
Eladó téglalakás

Balatonfenyves

109 M Ft
2 szoba
45 m2
Eladó téglalakás
Eladó téglalakás

Balatonfenyves

135.05 M Ft
2 szoba
59 m2
Eladó téglalakás
Eladó téglalakás

Balatonfenyves

191.4 M Ft
3 szoba
66 m2
Eladó téglalakás
Eladó téglalakás

Fonyód

52.417 M Ft
2 szoba
30 m2
Eladó téglalakás
Eladó téglalakás

Fonyód

199 M Ft
4 + 2 szoba
120 m2
Eladó téglalakás
Eladó téglalakás

Balatonfenyves

938.75 M Ft
3 szoba
145 m2
Eladó téglalakás
Eladó téglalakás

Fonyód

75.788 M Ft
3 szoba
51 m2
Eladó téglalakás
Eladó téglalakás

Siófok, Ezustparti utca

84.9 M Ft
3 szoba
58 m2
Eladó téglalakás
Eladó téglalakás

Fonyód

79.35 M Ft
2 szoba
53 m2
Eladó téglalakás
Eladó téglalakás

Fonyód

81.638 M Ft
2 szoba
55 m2
Eladó téglalakás
Eladó téglalakás

Balatonföldvár

125.4 M Ft
4 szoba
114 m2
Eladó téglalakás
Eladó téglalakás

Fonyód

99 M Ft
3 szoba
75 m2
Eladó téglalakás
Eladó téglalakás

Fonyód

59.99 M Ft
2 szoba
36 m2
Eladó téglalakás
Eladó téglalakás

Fonyód

199 M Ft
4 + 2 szoba
120 m2
Eladó téglalakás
Eladó téglalakás

Siófok

54.99 M Ft
1 szoba
41 m2

Falusi CSOK ingatlanok

Eladó családi ház
Eladó családi ház

Vásárosdombó

14.99 M Ft
2 szoba
69 m2
Eladó családi ház
Eladó családi ház

Beremend, 7827 Beremend, Petőfi Sándor utca 10

11.95 M Ft
1 + 1 szoba
124 m2
Eladó családi ház
Eladó családi ház

Elek

18 M Ft
4 szoba
180 m2
Eladó ikerház
Eladó ikerház

Táborfalva

49.9 M Ft
4 szoba
54 m2
Eladó családi ház
Eladó családi ház

Ságvár

64.9 M Ft
3 szoba
70 m2
Eladó családi ház
Eladó családi ház

Kaposgyarmat

695 M Ft
6 szoba
610 m2
Eladó családi ház
Eladó családi ház

Balatonkeresztúr

41.9 M Ft
2 szoba
57 m2
Eladó családi ház
Eladó családi ház

Újlengyel

110 M Ft
4 szoba
121 m2

Falusi CSOK ingatlanok

Eladó családi ház
Eladó családi ház

Ábrahámhegy

139 M Ft
4 szoba
106 m2
Eladó családi ház
Eladó családi ház

Hegyeshalom

85 M Ft
4 + 1 szoba
123 m2
Eladó családi ház
Eladó családi ház

Tömörkény

8.9 M Ft
2 szoba
80 m2
Eladó családi ház
Eladó családi ház

Ónod, Barátság 9

31.999 M Ft
3 szoba
150 m2
Eladó családi ház
Eladó családi ház

Ceglédbercel, Iskola utca

99.99 M Ft
5 szoba
128 m2
Eladó családi ház
Eladó családi ház

Balatonkenese

98 M Ft
5 szoba
138 m2
Eladó családi ház
Eladó családi ház

Sárosd

21.9 M Ft
3 szoba
86 m2
Eladó családi ház
Eladó családi ház

Szigetbecse

69.9 M Ft
4 szoba
70 m2