Avico Greentop

Eladó téglalakás
Érd

+ 17 kép 1/20
115 000 000 Ft115 M Ft 1 064 815 Ft/m2
3 szoba
108 m2
építés éve:2023

Részletes adatok

Fűtés: Egyéb
Emelet: földszint
Energetikai besorolás: A

Az OTP Bank lakáshitel ajánlataFizetett hirdetés

+36 1 690
Drevnó Béla
Duna House Kispest

Érdekel az OTP Bank kedvezményes lakáshitel ajánlata? *

* A kérdésre „Igen” válasz bejelölése esetén, az „Üzenet küldése” gombra kattintva kijelentem, hogy az OTP Bank Nyrt. Adatkezelési tájékoztatójának tartalmát megismertem és tudomásul vettem.

Eladó téglalakás leírása

KULCSRAKÉSZ ÁLLAPOBAN.
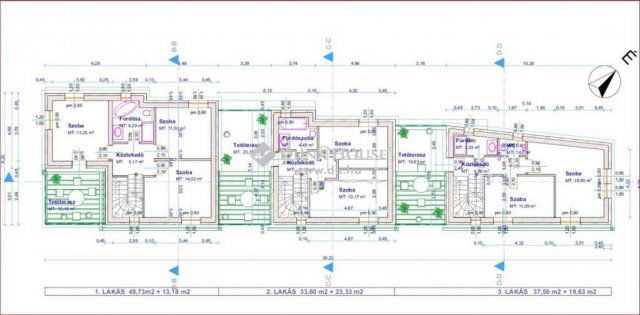
Megvételre kínálunk Érd parkvárosi részén, egy háromlakásos sorházban lévő, bruttó 117.58 nm-es, kétszintes lakást.

A lakás földszintjén, nappali, konyha, étkező, külön wc, tároló, előszoba és garázs található. Az emeleten két szoba, fürdőszoba közlekedő, külön wc és egy intim terasz lett kialakítva.
Az energiaellátást napelemrendszer (előkészítve), a fűtést (padlófűtés) és a melegvizet egy 8 Kw-os, levegős hőszivattyú biztosítja. A fűtés opcionálisan, szobánkénti hőfokszabályzással lehet ellátni. A fűtésrendszerhez igény estén napkollektor kapcsolható.
A lakás hűtésére klíma vagy hőszivattyúra csatlakoztatható fancoil telepíthető. A riasztórendszer, napelem és napkollektor kialakítása a vevő igényeinek megfelelően kerül sor.
Az ablakok redőny-előkészítéssel kerülnek beépítésre, elektromos mozgatásra is kialakítva. Az elektromos hálózat kialakítása lehetővé teszi okos otthon rendszer telepítését is.

A ház szerkezetkész állapotban van, az elektromos hálózat és az alapvezetékek beszerelése már elkészült. A burkolatokat és a szanitereket a saját elképzeléseknek és igényeknek megfelelően lehet kiválasztani.
A tervek szerint a ház lakásai, közel nulla külső energiaigényre vonatkozó követelménynek megfelelően készültek.
Igény szerint a műszaki leírás rendelkezésre áll. A ház társasházként kerül átadásra.

Tömegközlekedés a közelben, bevásárlási lehetőségek, séta távolságban vannak. Iskola, óvoda a közelben biztonságosan elérhető.
Minden állami támogatás igényelhető! CSOK stb.
A Duna House teljes kínálatával kapcsolatban forduljanak hozzám bizalommal!

Bankfüggetlen pénzügyi szakembereink tanácsadással, ügyintézéssel tudják segíteni Önöket álmaik, céljaik megvalósításában!

Vegye igénybe díjmentes konzultációinkat!

https://www.facebook.com/otthonkonnyeden

Referencia szám: LK076027

Hirdetés feltöltve: 2025. 03. 05. Utoljára módosítva: 2026. 01. 06.

3 szobás téglalakások ára Érden

Ebből az összehasonlításból megtudhatod, hogyan viszonyul a lakás ára a környékbeli téglalakások átlagos árához. Ez nem azt jelenti, hogy ennyivel olcsóbb vagy drágább, mint amennyit a lakás ér, hanem hogy ennyivel tér el a környékbeli átlagtól.

Ennek a m² ára
Érd m² ár
1065 e Ft
1206 e Ft 12%
Ennek az ára
Érd átlagár
115 M Ft m Ft
92.7 m Ft -24%

Az ingatlan elhelyezkedése

Cím: Érd

Eladó téglalakások a környékről

Eladó téglalakás
Eladó téglalakás

Érd

115 M Ft
3 szoba
82 m2
Eladó téglalakás
Eladó téglalakás

Érd

230.76 M Ft
4 szoba
163 m2
Eladó téglalakás
Eladó téglalakás

Göd

32.5 M Ft
2 szoba
44 m2
Eladó téglalakás
Eladó téglalakás

Érd

230.76 M Ft
7 szoba
164 m2
Eladó téglalakás
Eladó téglalakás

Érd

248 M Ft
6 szoba
164 m2
Eladó téglalakás
Eladó téglalakás

Érd

189.53 M Ft
5 szoba
164 m2
Eladó téglalakás
Eladó téglalakás

Göd

44.9 M Ft
3 szoba
58 m2
Eladó téglalakás
Eladó téglalakás

Göd

28.9 M Ft
2 szoba
46 m2
Eladó téglalakás
Eladó téglalakás

Érd, Érdliget - Kutyavár, Fürdő utca

214.06 M Ft
7 szoba
175 m2
Eladó téglalakás
Eladó téglalakás

Érd

230.76 M Ft
5 szoba
164 m2
Eladó téglalakás
Eladó téglalakás

Göd

46.5 M Ft
4 szoba
72 m2
Eladó téglalakás
Eladó téglalakás

Érd

194.6 M Ft
3 + 2 szoba
164 m2
Eladó téglalakás
Eladó téglalakás

Göd

27.9 M Ft
2 szoba
43 m2
Eladó téglalakás
Eladó téglalakás

Érd

172.3 M Ft
6 + 1 szoba
164 m2
Eladó téglalakás
Eladó téglalakás

Göd

32.5 M Ft
2 szoba
44 m2
Eladó téglalakás
Eladó téglalakás

Göd

27.9 M Ft
2 szoba
44 m2
Eladó téglalakás
Eladó téglalakás

Érd, Érdliget - Kutyavár, Fürdő utca 7

230.76 M Ft
7 szoba
176 m2
Eladó téglalakás
Eladó téglalakás

Göd, Oázis utca

27.9 M Ft
2 szoba
44 m2
Eladó téglalakás
Eladó téglalakás

Göd

42.9 M Ft
3 szoba
61 m2
Eladó téglalakás
Eladó téglalakás

Érd, Érdliget - Kutyavár, Fürdő utca 7

215.89 M Ft
7 szoba
174 m2
Eladó téglalakás
Eladó téglalakás

Érd

230.76 M Ft
6 szoba
164 m2
Eladó téglalakás
Eladó téglalakás

Érd

189.53 M Ft
7 szoba
165 m2
Eladó téglalakás
Eladó téglalakás

Göd

44.5 M Ft
3 szoba
69 m2
Eladó téglalakás
Eladó téglalakás

Érd

86.9 M Ft
4 szoba
88 m2

Falusi CSOK ingatlanok

Eladó családi ház
Eladó családi ház

Tésenfa, Kossuth utca 23/a

5.55 M Ft
1 + 1 szoba
109 m2
Eladó családi ház
Eladó családi ház

Mezőlak, Arany János utca

35.7 M Ft
3 szoba
104 m2
Eladó családi ház
Eladó családi ház

Orci

119.9 M Ft
6 szoba
200 m2
Eladó családi ház
Eladó családi ház

Gönyű

111.951 M Ft
4 szoba
105 m2
Eladó családi ház
Eladó családi ház

Nyáregyháza

63.9 M Ft
1 + 1 szoba
79 m2
Eladó családi ház
Eladó családi ház

Mályi

84.9 M Ft
4 szoba
100 m2
Eladó családi ház
Eladó családi ház

Iharos

8 M Ft
2 szoba
45 m2
Eladó családi ház
Eladó családi ház

Hahót

64.9 M Ft
5 szoba
118 m2