Astora Olive Club House

Eladó téglalakás
Cegléd, földszint

+ 10 kép 1/13
57 000 000 Ft57 M Ft 919 355 Ft/m2
3 szoba
62 m2
földszint
építés éve:2026

Részletes adatok

Fűtés: Egyéb
Emelet: földszint
Energetikai besorolás: Nem adta meg a hirdető

Az OTP Bank lakáshitel ajánlataFizetett hirdetés

+36 30 345
Bosznainé Hajdú Katalin Éva
OTP Ingatlanpont Kft Kecskemét

Érdekel az OTP Bank kedvezményes lakáshitel ajánlata? *

* A kérdésre „Igen” válasz bejelölése esetén, az „Üzenet küldése” gombra kattintva kijelentem, hogy az OTP Bank Nyrt. Adatkezelési tájékoztatójának tartalmát megismertem és tudomásul vettem.

Eladó téglalakás leírása

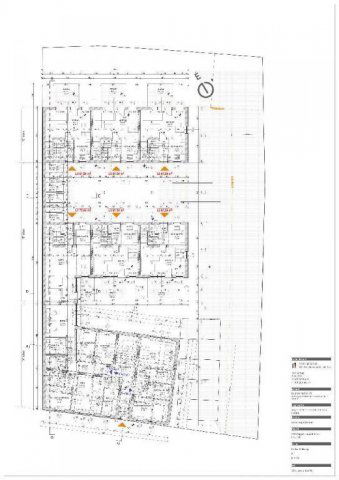
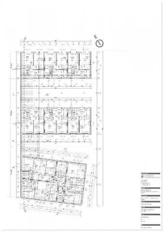
Cegléd bevárosában ÉPÜLŐ új - modern társasházi lakásokat kínálunk eladásra.. A 6 lakásos társasház a város szívében, mégis csendes környezetben valósul meg, így ideális választás mindazok számára, akik szeretnének a központban, de nyugodt környezetben élni.
A lakások mindegyike saját, kertkapcsolatos zöldterülettel és kb. 5 - 8 nm-es terasszal fog rendelkezni, ami kellemes pihenőhelyet kínál a mindennapokban. Minden lakáshoz AJÁNDÉK gépkocsibeálló és tároló is fog tartozni, így a praktikum és a kényelem egyszerre biztosított.

A projekt célja modern, energiahatékony otthonok létrehozása, ahol a korszerű műszaki tartalom és a minőségi kivitelezés garantálja a hosszú távú értékállóságot. A környék infrastruktúrája kiváló: iskola, óvoda, üzletek és közlekedési lehetőségek néhány perc sétára elérhetők.

A várható átadás 2026 év közepe.

Ez a társasház tökéletes választás lehet első otthonnak vagy befektetési célra egyaránt - Cegléd egyik legjobb elhelyezkedésű részén!

Referencia szám: M316737-ZE

Hirdetés feltöltve: 2025. 11. 13. Utoljára módosítva: 2026. 01. 14.

3 szobás téglalakások ára Cegléden

Ebből az összehasonlításból megtudhatod, hogyan viszonyul a lakás ára a környékbeli téglalakások átlagos árához. Ez nem azt jelenti, hogy ennyivel olcsóbb vagy drágább, mint amennyit a lakás ér, hanem hogy ennyivel tér el a környékbeli átlagtól.

Ennek a m² ára
Cegléd m² ár
919 e Ft
842 e Ft -9%
Ennek az ára
Cegléd átlagár
57 M Ft m Ft
61.2 m Ft 7%

Az ingatlan elhelyezkedése

Cím: Cegléd, földszint

Eladó téglalakások a környékről

Eladó téglalakás
Eladó téglalakás

Göd

46.5 M Ft
4 szoba
72 m2
Eladó téglalakás
Eladó téglalakás

Göd

90 M Ft
2 szoba
44 m2
Eladó téglalakás
Eladó téglalakás

Göd

28.9 M Ft
2 szoba
44 m2
Eladó téglalakás
Eladó téglalakás

Göd, Oázis utca

27.9 M Ft
2 szoba
44 m2
Eladó téglalakás
Eladó téglalakás

Cegléd

76.257 M Ft
2 szoba
80 m2
Eladó téglalakás
Eladó téglalakás

Göd

29.5 M Ft
2 szoba
44 m2
Eladó téglalakás
Eladó téglalakás

Cegléd

79.9 M Ft
3 szoba
90 m2
Eladó téglalakás
Eladó téglalakás

Cegléd

64 M Ft
1 szoba
62 m2
Eladó téglalakás
Eladó téglalakás

Göd

42.5 M Ft
3 szoba
65 m2
Eladó téglalakás
Eladó téglalakás

Cegléd

68.3 M Ft
5 szoba
86 m2
Eladó téglalakás
Eladó téglalakás

Cegléd

39.9 M Ft
1 szoba
51 m2
Eladó téglalakás
Eladó téglalakás

Göd

28.9 M Ft
2 szoba
46 m2
Eladó téglalakás
Eladó téglalakás

Göd

28.9 M Ft
2 szoba
46 m2
Eladó téglalakás
Eladó téglalakás

Cegléd

66.8 M Ft
3 szoba
86 m2
Eladó téglalakás
Eladó téglalakás

Cegléd

68 M Ft
5 szoba
86 m2
Eladó téglalakás
Eladó téglalakás

Göd

32.9 M Ft
2 szoba
44 m2
Eladó téglalakás
Eladó téglalakás

Cegléd

68 M Ft
4 szoba
86 m2
Eladó téglalakás
Eladó téglalakás

Cegléd

68.3 M Ft
5 szoba
86 m2
Eladó téglalakás
Eladó téglalakás

Cegléd

68.3 M Ft
5 szoba
86 m2
Eladó téglalakás
Eladó téglalakás

Cegléd

48.8 M Ft
3 szoba
78 m2
Eladó téglalakás
Eladó téglalakás

Göd

32.5 M Ft
2 szoba
44 m2
Eladó téglalakás
Eladó téglalakás

Cegléd

32.8 M Ft
1 + 1 szoba
49 m2
Eladó téglalakás
Eladó téglalakás

Göd

28.9 M Ft
2 szoba
46 m2
Eladó téglalakás
Eladó téglalakás

Göd

66.9 M Ft
4 szoba
94 m2

Falusi CSOK ingatlanok

Eladó családi ház
Eladó családi ház

Palkonya

137 M Ft
6 szoba
160 m2
Eladó családi ház
Eladó családi ház

Bakonyjákó

99.5 M Ft
2 + 3 szoba
148 m2
Eladó családi ház
Eladó családi ház

Vaszar

13.9 M Ft
2 szoba
67 m2
Eladó családi ház
Eladó családi ház

Bogács

36.8 M Ft
2 szoba
64 m2
Eladó családi ház
Eladó családi ház

Balatonkeresztúr, Dózsa György u. 29

145 M Ft
5 szoba
150 m2
Eladó családi ház
Eladó családi ház

Mezőlak, Arany János utca

35.7 M Ft
3 szoba
104 m2
Eladó családi ház
Eladó családi ház

Tésenfa, Kossuth utca 23/a

5.55 M Ft
1 + 1 szoba
109 m2
Eladó családi ház
Eladó családi ház

Bakonybél

84.9 M Ft
5 szoba
211 m2